Hyggeligt træhus tæt på strand og by

Sommerhus - 6 personer - Kornblomstvej - Tversted - 9881 - Bindslev

6 personer
Emne nr.: 102-TV1516
7 overnatninger
Fra DKK 3.560,-
Inkl. rengøring og forsikring
6 personer
Hyggeligt træhus nær Vesterhavet og Tversted med charmerende atmosfære, terrasse og stor naturgrund til afslapning.
  • Soverum 3
  • Badeværelser 1
  • Boligareal 77 m²
  • Grundareal 2.600 m²
  • Husdyr Ikke tilladt
  • Tilbyder miniferie Ja
  • Afstand vand 800 m
  • Afstand indkøb 730 m
  • Brændeovn Ja
  • Vaskemaskine Ja
  • Ikkeryger Ja

Beskrivelse

Er I på udkig efter en fredfyldt oase, hvor I kan koble af med gode bøger, yatzy, lækker mad og gåture til stranden? Så skal I se nærmere på dette hyggelige træhus, der ligger på en lukket vej nær Vesterhavet og Tversted by.

Indendørs
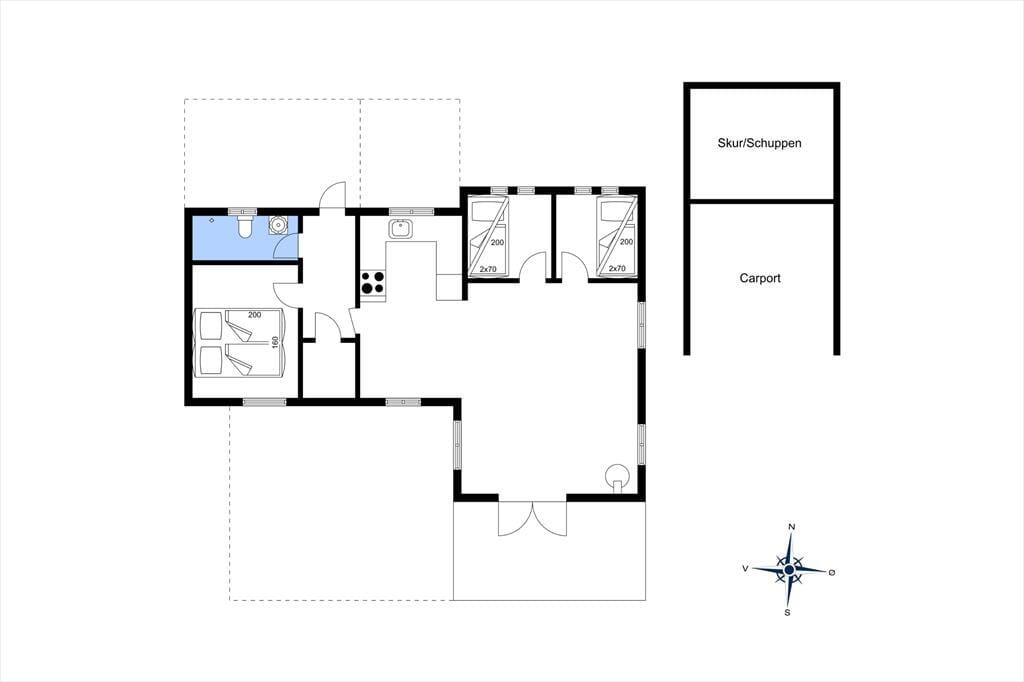
Hvis I er til sommerhuse med sjæl og personlighed, vil I falde for Kornblomstvej 13. Sommerhuset, der måler 77 m2 og har plads til seks personer, blev opført i 1974, og selvom rummene emmer af original charme, fremstår det stadig pænt og velholdt. Et dejligt køkken ligger i åben forbindelsen med stuen, der byder på spisebord, sofaarrangement og sågar en gyngestol ved brændeovnen. Der er hverken tv eller Wi-fi i huset, men I kan selvfølgelig benytte jer af jeres egne devices, hvis I har trådløs forbindelse – og ellers kan I bruge det som en kærkommen anledning til at holde fri fra skærmene og i stedet fordybe jer i avisen, krydsogtværsen og den gode samtale. Fra entréen har I adgang til et badeværelse med bruser og vaskemaskine såvel som et soveværelse med dobbeltseng, og fra stuen har I adgang til yderligere to soveværelser, som begge er med køjeseng.

Udendørs
Med en naturgrund på 2600 m2 har I masser af plads til at spille havespil og slappe af ude i det fri. En god græsplæne breder sig rundt om huset, og mod både syd og nord er der hyggelige terrasser at slå sig ned på. Den sydvendte terrasse er delvist overdækket, så I kan sagtens nyde sommeraftenen ude, selvom duggen falder. Også bilen kan holde i ly under carporten, og hvis I vil lave mad i det fri, er der en grill til rådighed.

Beliggenhed
Sommerhuset ligger i et lukket område, bare 10 minutters gang fra Tversteds bymidte. Her er der blandt andet købmand, cykeludlejning og spisesteder, og på Tannisbugtvej helt nede ved stranden, finder I byens populære ishuse, der lokker både lokale og turister til med iskolde fristelser. En dukkert i Vesterhavet eller en gåtur langs med kysten kan nemt komme på tale, når I bor så tæt på stranden, og med kun et par kilometer til Tversted Klitplantage, kan I også hurtigt komme på skovtur. Et besøg i Ørnereservatet eller en udflugt til Skagen er oplagte ferieaktiviteter – hvis altså ikke I hellere vil tilbringe hele dagen hjemme i sommerhusets hyggelige rammer.

GRATIS! Udlån af trækvogne, barnestole og barnesenge (kan hentes og afleveres på det nærmeste bureau).




Huset har IKKE TV eller WiFi

Faciliteter

  • Hus Info

    • Antal voksne
      6
    • Bruser
    • Byggeår
      1974
    • Grundareal
      2600 m²
    • Husareal
      77 m²
    • WC
  • Afstande

    • Afstand golfbane
      11 km
    • Afstand indkøb
      730 m
    • Afstand restaurant
      700 m
    • Afstand strand
      800 m
  • Energi / Opvarmning

    • Brændeovn
    • Elvarme
  • Hårde hvidevarer

    • Elkedel
    • Emhætte
    • Fryser
      100
    • Kaffemaskine
    • Komfur
    • Køleskab
      219
    • Mikroovn
    • Vaskemaskine
  • Multimedier

    • Ingen Wi-Fi
  • Udenfor

    • Carport
    • Grill
      Kul
    • Havemøbler
    • Liggestole
    • Parasol
    • Parkering på grunden
    • Terrasse
  • Diverse

    • 2 x Køje
      2x70x200
    • Dobbeltseng 160x200
  • Regler

    • Husdyr ikke tilladt
    • Opladning af elbil ikke tilladt
    • Rygning ikke tilladt
  • Pris inklusiv

    • Slutrengøring inkl.
    • Vand inkl.

Miniferie

Der er begrænset mulighed for miniferie hele året, typisk uden for højsæsonen.

Priser og kalender

Kalender

Ankomst
Forrige Næste
   Se om emnet er ledigt på den valgte dato
Ledig
Optaget
   Ankomst mulig
Varighed
Personer

Pris

Periode
Ankomst
Afrejse
Varighed
1 uge
Personer
Ingen personer er valgt

Bemærk

Ankomst er ikke valgt.
Der er ikke valgt personer.
Aftale- og lejebetingelser