Alternative emner
Sommerhus - 6 personer - Friesenstraße - 25826 - St. Peter-Ording
6 personer
Emne nr.: 530-307414
- Soverum 3
- Badeværelser 1
- Boligareal 125 m²
- Husdyr Ikke tilladt
- Tilbyder miniferie Ja
- Sauna Ja
- Internet Ja
- Brændeovn Ja
- Vaskemaskine Ja
- Opvaskemaskine Ja
- Ikkeryger Ja
Beskrivelse
Beskrivelsen foreligger desværre ikke på Dansk. Se teksten på Tysk nedenfor, eller se den maskinoversatte tekst på Dansk.
Reetdachhaus Strandleben
Die Lage
Das Reetdachhaus mit wunderschönen Garten und gemütlichen Terrassen befindet sich im Ortsteil Ording.
Den riesigen Hauptstrand in Ording-Nord, sowie die Promenade von St. Peter-Ording mit seiner neuen Dünen-Therme und der Seebrücke erreichen Sie in ca 5-10 Minuten zu Fuß oder 3 Minuten mit dem Auto.
Das Reetdachhaus mit wunderschönen Garten und gemütlichen Terrassen befindet sich im Ortsteil Ording.
Den riesigen Hauptstrand in Ording-Nord, sowie die Promenade von St. Peter-Ording mit seiner neuen Dünen-Therme und der Seebrücke erreichen Sie in ca 5-10 Minuten zu Fuß oder 3 Minuten mit dem Auto.
Die Unterkunft
Im Erdgeschoss befindet sich der Wohnraum mit einem gemütlichen Essbereich und Zugang zur Terrasse, mit wunderschönem Ausblick über die Wiesen.
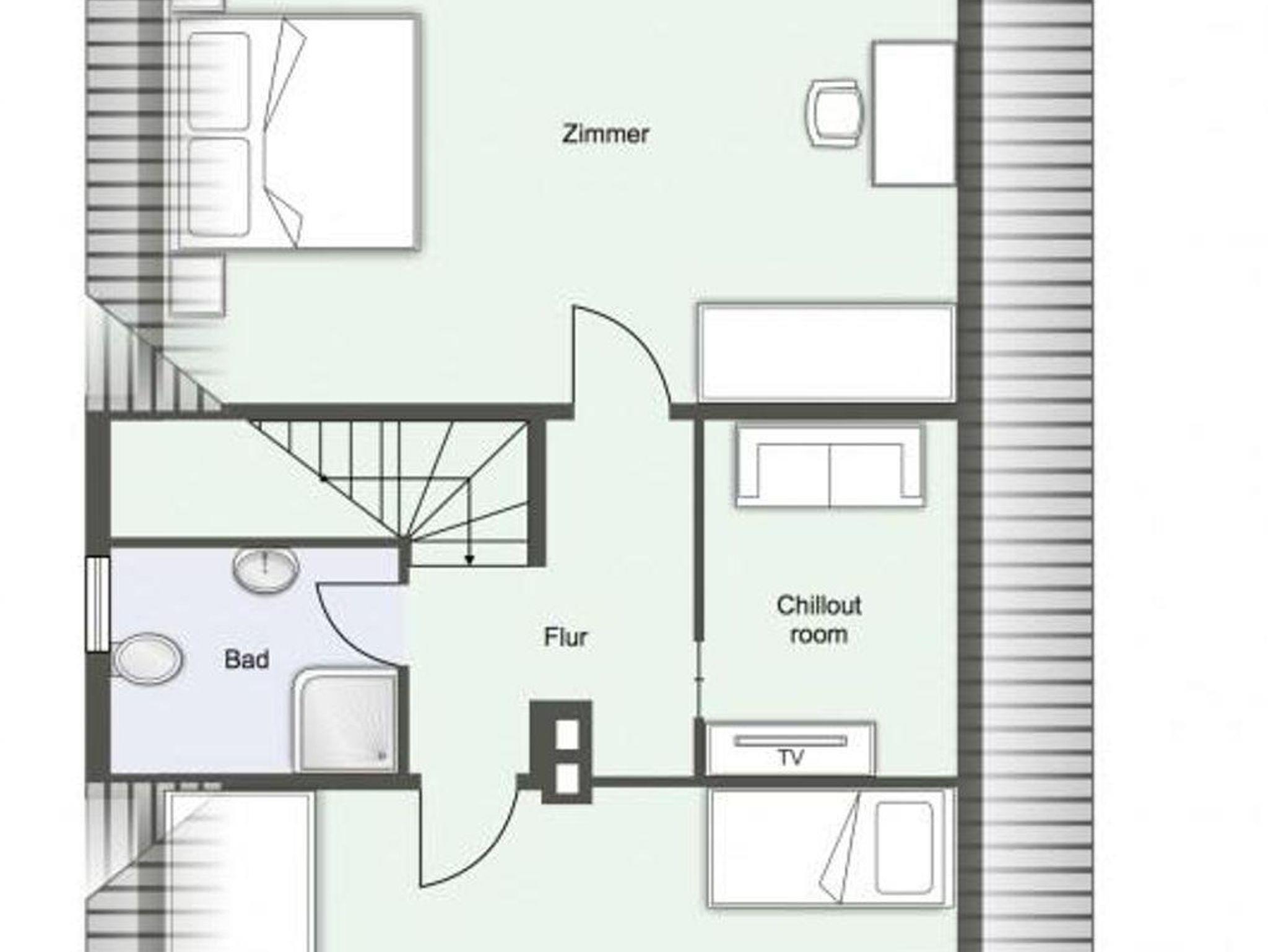
Ein Kamin im Wohnraum bietet ebenso einen warmen Charakter. Die Wohnküche ist mit allen wichtigen Geräten voll ausgestattet und lädt zum gemeinsamen Kochen ein. Im Erdgeschoss ist ebenso ein Doppelschlafzimmer mit großem Einbauschrank, sowie ein Duschbad mit Gäste-WC und einer großzügigen Sauna. Im Empfangsbereicht ist ein Flur mit Garderobe, von hier aus gelangt man in das Obergeschoss. Hier befinden sich 2 Doppelschlafzimmer, eines mit Doppelbett und das Andere mit 2 Einzelbetten. Große Fenster sorgen für viel Licht, in diesem Haus kann der Sonnenauf- bzw. -untergang genossen werden. Außerdem ist im Obergeschoss ein Duschbad und ein Chill-out-room mit einem Schreibtisch.
In dem wunderschönen und liebevoll angelegten Garten und der gemütlichen Terrasse können Sie Ihren Urlaub ab der 1. Minute genießen. Gartenmöbel und ein Strandkorb laden Sie zur Erholung ein.
Zwei Autostellplätze sind direkt am Grundstück.
Im Erdgeschoss befindet sich der Wohnraum mit einem gemütlichen Essbereich und Zugang zur Terrasse, mit wunderschönem Ausblick über die Wiesen.
Ein Kamin im Wohnraum bietet ebenso einen warmen Charakter. Die Wohnküche ist mit allen wichtigen Geräten voll ausgestattet und lädt zum gemeinsamen Kochen ein. Im Erdgeschoss ist ebenso ein Doppelschlafzimmer mit großem Einbauschrank, sowie ein Duschbad mit Gäste-WC und einer großzügigen Sauna. Im Empfangsbereicht ist ein Flur mit Garderobe, von hier aus gelangt man in das Obergeschoss. Hier befinden sich 2 Doppelschlafzimmer, eines mit Doppelbett und das Andere mit 2 Einzelbetten. Große Fenster sorgen für viel Licht, in diesem Haus kann der Sonnenauf- bzw. -untergang genossen werden. Außerdem ist im Obergeschoss ein Duschbad und ein Chill-out-room mit einem Schreibtisch.
In dem wunderschönen und liebevoll angelegten Garten und der gemütlichen Terrasse können Sie Ihren Urlaub ab der 1. Minute genießen. Gartenmöbel und ein Strandkorb laden Sie zur Erholung ein.
Zwei Autostellplätze sind direkt am Grundstück.
Faciliteter
-
Børnefaciliteter
-
Familievenlig
-
-
Grundlæggende faciliteter
-
Størrelse125 m²
-
-
Indkvartering Faciliteter
-
Ikke-ryger hus
-
Internet i det offentlige område
-
Sauna
-
-
Omgivende faciliteter
-
Have til brug
-
Parkeringsplads
-
Strandstol
-
-
Servicefaciliteter
-
Bad / WC
-
Bad/toilet
-
CD afspiller
-
Dyr ikke tilladt
-
Flere soveværelser
-
Hårtørrer
-
Ikke-rygere
-
Internet - WiFi
-
Kaffemaskine
-
Kakkelovn
-
Komfur
-
Køleskab
-
Mikroovn
-
Mulighed for fryser
-
Opvaskemaskine
-
Ovn
-
Pejs/brændovn
-
På jorden
-
Radio
-
Sengetøj
-
Separat køkken
-
Strandstol (personlig)
-
Stue
-
Terrasse
-
Toaster
-
TV - fladskærm
-
Vandvarmer
-
Vaskemaskine
-
WC-toilet
-
Miniferie
Der er begrænset mulighed for miniferie hele året, typisk uden for højsæsonen.
Priser og kalender
Kalender
Varighed
Personer
Pris
Periode
- Ankomst
- Afrejse
- Varighed
- 1 uge
Personer
Ingen personer er valgt
Bemærk
Ankomst er ikke valgt.
Der er ikke valgt personer.