Alternative emner
Feriecenter - 13 personer - XL- Reetdachhaus, Urlaub mit Hund, Ferien für 11 Personen - 18230 - Rerik
13 personer
heraf 2 børn (0-3 år)
Emne nr.: 530-588492
- Soverum 6
- Badeværelser 4
- Boligareal 190 m²
- Husdyr 1
- Tilbyder miniferie Ja
- Afstand vand 1.500 m
- Afstand indkøb 1.500 m
- Internet Ja
- Parabol/kabel TV Ja
- Brændeovn Ja
- Handicapvenligt Ja
- Indhegnet område Ja
- Vaskemaskine Ja
- Tørretumbler Ja
- Opvaskemaskine Ja
- Ikkeryger Ja
- Energivenligt Ja
Beskrivelse
Beskrivelsen foreligger desværre ikke på Dansk. Se teksten på Tysk nedenfor, eller se den maskinoversatte tekst på Dansk.
L7 Ferienhaus Strandhafer Ostseebad Rerik - XL, XL 8-Raum-Ferienhaus mit Kamin (max. 11 Personen)
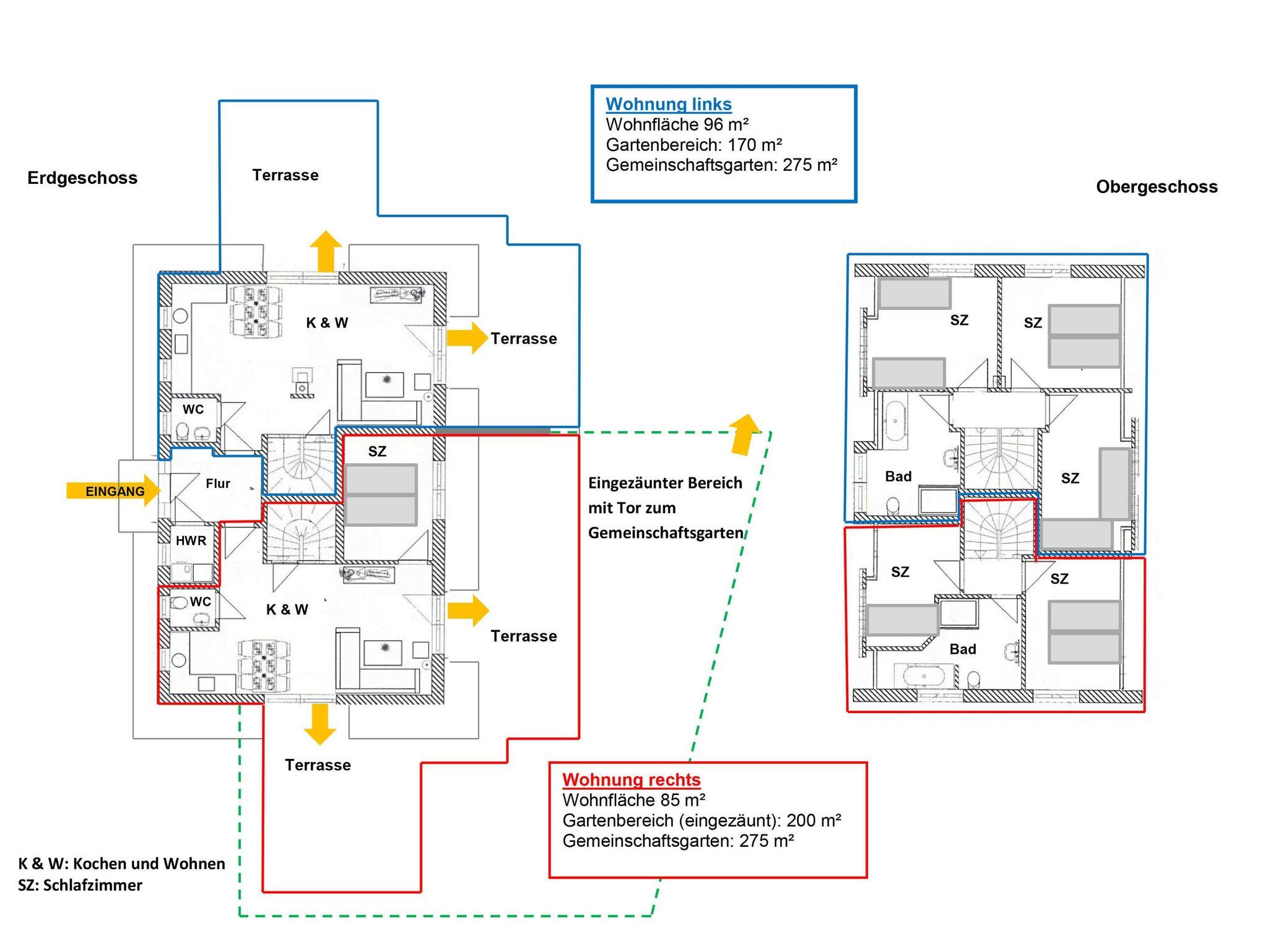
XL Reetdach-Ferienhaus im Ferienpark Ostseebad Rerik mit 2 Doppelhaushälften, die auch zusammen für XL Ostseeurlaub gebucht werden können. Die Doppelhaushälfte links ist für 6 Personen geeignet, die Doppelhaushälfte rechts für 5 Personen = insgesamt gibt es bei XL Buchung genügend Platz für 11 Personen.
Gemeinschaftlicher Eingang, gemeinschaftliche Nutzung von Waschmaschine und Trockner.
Insgesamt finden Sie hier 6 separate Schlafzimmer (3x je 1 Doppelbett + 2x je 2 Einzelbetten + 1x 1 Einzelbett). In der linken Haushälfte befindet sich ein Kamin, wo man einen erlebnisreichen Tag gemütlich ausklingen lassen kann.
Sonnen- Terrassen mit Gartenmöbeln (Sitz-/ Essgruppe und Lounge Garnitur) sowie abschließbarer Schuppen mit Ladestation für E-Bikes für alle Gäste nutzbar.
Kinderfreundliche Ausstattung:
Babybett (Reisebett ohne Bettwäsche), Hochstuhl, kindersichere Steckdosen, Treppenschutzgitter, großer, eingezäunter Garten. Zusätzlich gibt es einen Gemeinschaftsgarten mit Strandkorb und Sandkasten, der bitte tierfrei bleibt.
Ostseeurlaub mit Hund:
Im Ferienhaus sind Haustiere willkommen. Je Haus bietet ein eingezäunter Garten Schutz. Ein zusätzlicher Gemeinschaftsgarten für Kinder ist eingezäunt und bleibt tierfrei! Gebühr je Haustier und Tag 10 EUR. Ihr Hund darf nicht unbeaufsichtigt im Ferienhaus bleiben. Gassi- und Auslaufwege starten direkt am Haus Richtung Wald, Feld oder Strand.
Ausstattung des Ferienhauses:
Waschmaschine, Trockner, WLAN, Elektro- Tisch- Grill, Parkplatz. Smart-TV´s für Streamingdienste Sky, Netflix & Amazon Prime u.a.
Reetdach-/ Schilfdachhäuser:
Da es sich in dem Wohngebiet um Häuser mit Reet handelt, ist das Abfeuern von Feuerwerk und Silvesterraketen verboten. Rauchen im Haus nicht gestattet.
Extra- Service auf Wunsch (Gebühr):
Wäschepaket & Handtücher gg. Gebühr buchbar - ohne Kinderbettwäsche - bei Anreise NICHT bezogen
Gemeinschaftlicher Eingang, gemeinschaftliche Nutzung von Waschmaschine und Trockner.
Insgesamt finden Sie hier 6 separate Schlafzimmer (3x je 1 Doppelbett + 2x je 2 Einzelbetten + 1x 1 Einzelbett). In der linken Haushälfte befindet sich ein Kamin, wo man einen erlebnisreichen Tag gemütlich ausklingen lassen kann.
Sonnen- Terrassen mit Gartenmöbeln (Sitz-/ Essgruppe und Lounge Garnitur) sowie abschließbarer Schuppen mit Ladestation für E-Bikes für alle Gäste nutzbar.
Kinderfreundliche Ausstattung:
Babybett (Reisebett ohne Bettwäsche), Hochstuhl, kindersichere Steckdosen, Treppenschutzgitter, großer, eingezäunter Garten. Zusätzlich gibt es einen Gemeinschaftsgarten mit Strandkorb und Sandkasten, der bitte tierfrei bleibt.
Ostseeurlaub mit Hund:
Im Ferienhaus sind Haustiere willkommen. Je Haus bietet ein eingezäunter Garten Schutz. Ein zusätzlicher Gemeinschaftsgarten für Kinder ist eingezäunt und bleibt tierfrei! Gebühr je Haustier und Tag 10 EUR. Ihr Hund darf nicht unbeaufsichtigt im Ferienhaus bleiben. Gassi- und Auslaufwege starten direkt am Haus Richtung Wald, Feld oder Strand.
Ausstattung des Ferienhauses:
Waschmaschine, Trockner, WLAN, Elektro- Tisch- Grill, Parkplatz. Smart-TV´s für Streamingdienste Sky, Netflix & Amazon Prime u.a.
Reetdach-/ Schilfdachhäuser:
Da es sich in dem Wohngebiet um Häuser mit Reet handelt, ist das Abfeuern von Feuerwerk und Silvesterraketen verboten. Rauchen im Haus nicht gestattet.
Extra- Service auf Wunsch (Gebühr):
Wäschepaket & Handtücher gg. Gebühr buchbar - ohne Kinderbettwäsche - bei Anreise NICHT bezogen
Reetdach-Ferienhaus mit Kamin im Ostseebad Rerik für max 11 Personen + 2 Babys auf 190m² Wohnfläche plus eingezäuntem Garten. Haustiere willkommen.
Insgesamt 6 separate Schlafräume (3x Doppelbett + 2x je 2 Einzelbetten + 1x 1 Einzelbett). 2 Bäder mit Dusche/ WC und Badewanne im Obergeschoss. 2 zusätzliche WC im Erdgeschoss. Große Sonnenterrassen mit Gartenmöbeln (Sitz-/ Essgruppen und Lounge Garnitur). Abschließbarer Fahrrad-Schuppen mit Ladestation für E-Bikes am Haus. Waschmaschine und Trockner. Elektro- Tisch-Grill und Kamin.
Im Erdgeschoss 2 großzügige Wohn-/ Essbereiche, ein Kamin, Esstisch und integrierte Küche mit Backofen, 4-Platten-Herd, Mikrowelle, Geschirrspüler, Kühl-/ Gefrierkombination, Kaffeemaschine. 2x Gäste-WC. Schlafraum 1 mit Doppelbett.
Im Obergeschoss insgesamt 5 Schlafräume, Babybett aufstellbar. Davon Schlafraum 2 und 3 mit Doppelbett & TV. Schlafraum 4 und 5 mit 2 Einzelbetten. Schlafraum 6 mit 1 Einzelbett.
2x Bad mit Dusche/ WC sowie Badewanne.
Kinderfreundliche Ausstattung:
Babybett (Reisebett) ohne Bettwäsche & ohne Handtücher, Hochstuhl, kindersichere Steckdosen, Treppenschutzgitter, großer, eingezäunter Garten für jede Wohnung vorhanden. Zusätzlich gibt es einen Gemeinschaftsgarten (mit Strandkorb und Sandkasten), in dem keine Haustiere zulässig sind.
Ostseeurlaub mit Hund:
Im Ferienhaus sind Haustiere willkommen. Jede Haushälfte verfügt über einen eigenen eingezäunten Garten. Ein zusätzlicher Gemeinschaftsgarten für Kinder ist eingezäunt und bleibt allerdings tierfrei! Gebühr je Haustier und Tag 10 EUR. Ihr Hund darf nicht unbeaufsichtigt im Ferienhaus bleiben.
Ausstattung des Ferienhauses:
Waschmaschine, Trockner, WLAN, Parkplätze
Feuer, Silvester und Grillen:
Da es sich in dem Wohngebiet um Häuser mit Reet/Schilfdach handelt, ist das Abfeuern von Feuerwerk und Silvesterraketen verboten! Rauchen im Haus nicht gestattet.
Service auf Wunsch (Gebühr):
Wäschepaket (Bettwäsche = bei Anreise NICHT bezogen, Handtücher, Küchentuch). Kinderbettwäsche bitte selbst mitbringen.
Insgesamt 6 separate Schlafräume (3x Doppelbett + 2x je 2 Einzelbetten + 1x 1 Einzelbett). 2 Bäder mit Dusche/ WC und Badewanne im Obergeschoss. 2 zusätzliche WC im Erdgeschoss. Große Sonnenterrassen mit Gartenmöbeln (Sitz-/ Essgruppen und Lounge Garnitur). Abschließbarer Fahrrad-Schuppen mit Ladestation für E-Bikes am Haus. Waschmaschine und Trockner. Elektro- Tisch-Grill und Kamin.
Im Erdgeschoss 2 großzügige Wohn-/ Essbereiche, ein Kamin, Esstisch und integrierte Küche mit Backofen, 4-Platten-Herd, Mikrowelle, Geschirrspüler, Kühl-/ Gefrierkombination, Kaffeemaschine. 2x Gäste-WC. Schlafraum 1 mit Doppelbett.
Im Obergeschoss insgesamt 5 Schlafräume, Babybett aufstellbar. Davon Schlafraum 2 und 3 mit Doppelbett & TV. Schlafraum 4 und 5 mit 2 Einzelbetten. Schlafraum 6 mit 1 Einzelbett.
2x Bad mit Dusche/ WC sowie Badewanne.
Kinderfreundliche Ausstattung:
Babybett (Reisebett) ohne Bettwäsche & ohne Handtücher, Hochstuhl, kindersichere Steckdosen, Treppenschutzgitter, großer, eingezäunter Garten für jede Wohnung vorhanden. Zusätzlich gibt es einen Gemeinschaftsgarten (mit Strandkorb und Sandkasten), in dem keine Haustiere zulässig sind.
Ostseeurlaub mit Hund:
Im Ferienhaus sind Haustiere willkommen. Jede Haushälfte verfügt über einen eigenen eingezäunten Garten. Ein zusätzlicher Gemeinschaftsgarten für Kinder ist eingezäunt und bleibt allerdings tierfrei! Gebühr je Haustier und Tag 10 EUR. Ihr Hund darf nicht unbeaufsichtigt im Ferienhaus bleiben.
Ausstattung des Ferienhauses:
Waschmaschine, Trockner, WLAN, Parkplätze
Feuer, Silvester und Grillen:
Da es sich in dem Wohngebiet um Häuser mit Reet/Schilfdach handelt, ist das Abfeuern von Feuerwerk und Silvesterraketen verboten! Rauchen im Haus nicht gestattet.
Service auf Wunsch (Gebühr):
Wäschepaket (Bettwäsche = bei Anreise NICHT bezogen, Handtücher, Küchentuch). Kinderbettwäsche bitte selbst mitbringen.
Vor Ort
Ortsübliche Kurtaxe plus Schlüsselkaution 25 EUR bar bei Anreise. Die Schlüssel-Kaution wird bei Anreise bar hinterlegt und bei Abreise bar ausgezahlt. Keine ec- oder Kreditkartenzahlung.
Ortsübliche Kurtaxe plus Schlüsselkaution 25 EUR bar bei Anreise. Die Schlüssel-Kaution wird bei Anreise bar hinterlegt und bei Abreise bar ausgezahlt. Keine ec- oder Kreditkartenzahlung.
Vores gæsteanmeldelser Eksterne anmeldelser
Faciliteter
-
Afstande
-
Til badepladsen/vandmassen1,5 km
-
Til bageren1,5 km
-
Til busstoppestedet1,5 km
-
Til centrum1,5 km
-
Til cykelstien500 m
-
Til lægen1,5 km
-
Til motorvejen25 km
-
Til pengeautomaten/banken1,5 km
-
Til restauranten1,5 km
-
Til stranden1,5 km
-
Til supermarkedet1,5 km
-
Til sygehuset/klinikken22 km
-
Til togstationen12 km
-
Til turistinformationen1,5 km
-
Til vandrestien500 m
-
-
Aktivitetsfaciliteter
-
Cykeludlejning
-
Cykelvenlig
-
Minigolf
-
Ridning
-
Surfing
-
Vognture
-
-
Børnefaciliteter
-
Familievenlig
-
Småbørns udstyr
-
-
Grundlæggende faciliteter
-
Byggeår2018
-
Størrelse190 m²
-
År renoveret2020
-
-
Indkvartering Faciliteter
-
Avancerede rengøringsmetoder i brug
-
BBQ
-
Bevidst undgåelse af spild
-
Cykelrum aflåselig
-
Cykelvenlig
-
El-cykel ladestation
-
Energibesparende belysning
-
Handicapvenlig
-
Ikke-ryger hus
-
Internet i det offentlige område
-
Klasse A husholdningsapparater
-
Kontaktløs ind-/udtjekning
-
Tilgængelighed
-
Vandrer venlig
-
Vaskeservice
-
Økologiske rengøringsmidler
-
-
Mad faciliteter
-
Brødservice
-
Morgenmad muligt
-
-
Omgivende faciliteter
-
Cykelrum
-
Grunden er indhegnet
-
Have til brug
-
Parkeringsplads
-
Siddeplads i haven
-
Surfskole
-
-
Servicefaciliteter
-
Bad / WC
-
Bad/toilet
-
Badekar
-
Bruser
-
Brødservice
-
Dobbeltseng
-
Dyr på forespørgsel
-
Ekstra badeværelse
-
Enkeltseng
-
Flere soveværelser
-
Fælles bad
-
Fælleskøkken
-
Gæstetoilet
-
Handicapvenlig
-
Husdyr tilladt eller efter anmodning
-
Højstol
-
Håndklæder
-
Ikke-rygere
-
Insektsmiddel/gaze
-
Internet - WiFi
-
Kabel/Sat
-
Kaffemaskine
-
Køkken (åbent)
-
Køleskab
-
Mikroovn
-
Morgenmadsservice
-
Mulighed for fryser
-
Opvarmet
-
Opvaskemaskine
-
Ovn
-
Pejs/brændovn
-
Pude
-
Rejseseng/krybbe
-
Rengøringsmidler
-
Sengetøj
-
Separate senge
-
Smart-Tv
-
Streamingtjenester
-
Stueetage
-
Terrasse
-
Toaster
-
Toiletpapir
-
TV
-
TV - fladskærm
-
Tørretumbler
-
Vandvarmer
-
Vaskemaskine
-
Miniferie
Der er mulighed for miniferie hele året.
Priser og kalender
Kalender
Varighed
Pris
Periode
- Ankomst
- Afrejse
- Varighed
- 1 uge
Personer
Op til 13 personer
heraf 2 børn (0-3 år)
Bemærk
Ankomst er ikke valgt.