Alternative emner
Feriecenter - 7 personer - XL- Reetdachhaus, Urlaub mit Hund, Ferien für 11 Personen - 18230 - Rerik
7 personer
heraf 1 barn (0-3 år)
Emne nr.: 530-343798
- Soverum 3
- Badeværelser 2
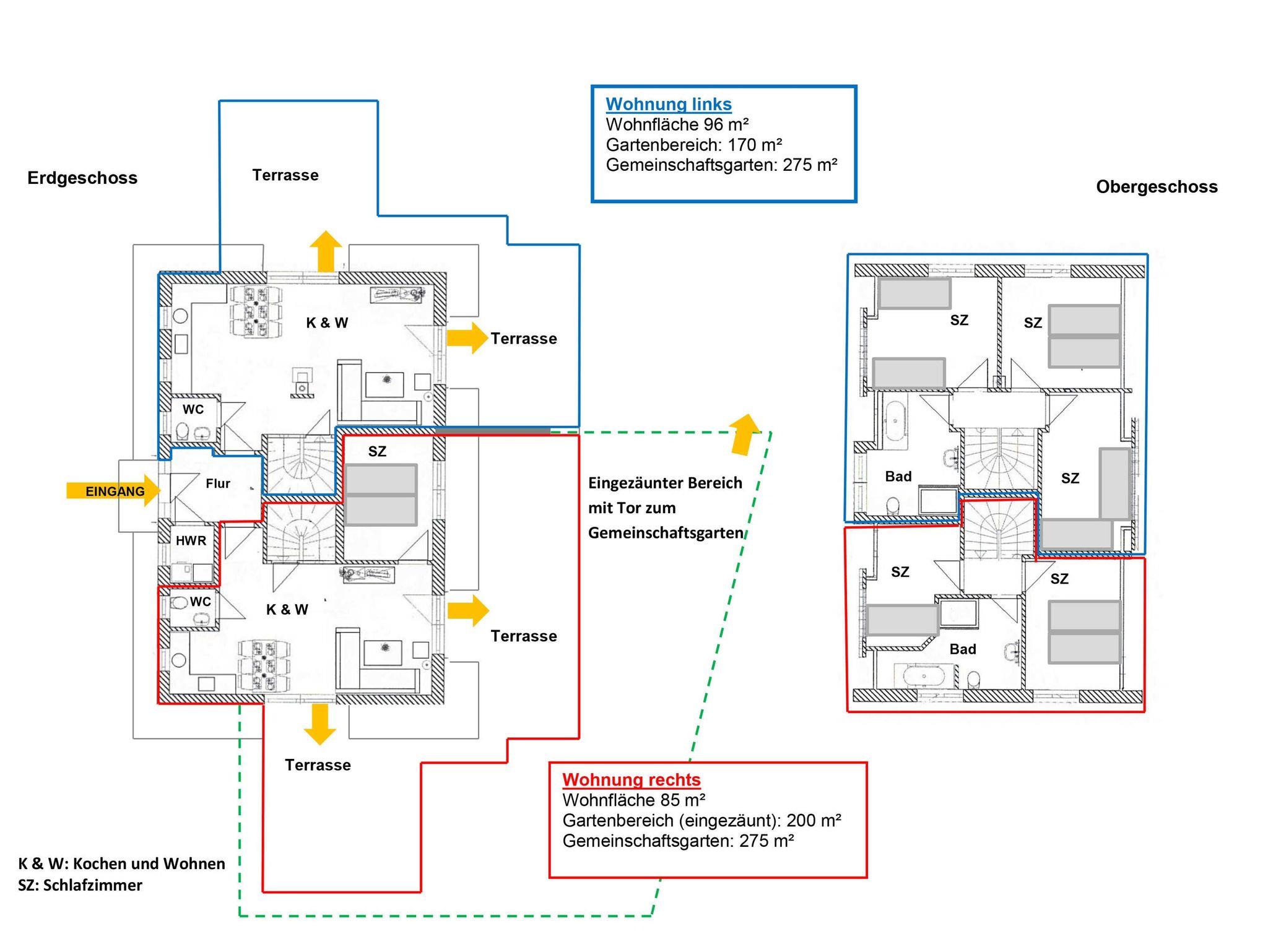
- Boligareal 96 m²
- Husdyr 1
- Tilbyder miniferie Ja
- Afstand vand 1.500 m
- Afstand indkøb 1.500 m
- Internet Ja
- Parabol/kabel TV Ja
- Brændeovn Ja
- Handicapvenligt Ja
- Indhegnet område Ja
- Vaskemaskine Ja
- Tørretumbler Ja
- Opvaskemaskine Ja
- Ikkeryger Ja
- Energivenligt Ja
Beskrivelse
Beskrivelsen foreligger desværre ikke på Dansk. Se teksten på Tysk nedenfor, eller se den maskinoversatte tekst på Dansk.
L7 Ferienhaus Strandhafer Ostseebad Rerik - XL, 4-Raum-Ferienhaus mit Kamin (max. 6 Personen) - links
XL Reetdach-Ferienhaus im Ferienpark Ostseebad Rerik mit 2 Doppelhaushälften, die auch zusammen für XL Ostseeurlaub gebucht werden können. Die Doppelhaushälfte links ist für 6 Personen geeignet, die Doppelhaushälfte rechts für 5 Personen = insgesamt gibt es bei XL Buchung genügend Platz für 11 Personen.
Gemeinschaftlicher Eingang, gemeinschaftliche Nutzung von Waschmaschine und Trockner.
Insgesamt finden Sie hier 6 separate Schlafzimmer (3x je 1 Doppelbett + 2x je 2 Einzelbetten + 1x 1 Einzelbett). In der linken Haushälfte befindet sich ein Kamin, wo man einen erlebnisreichen Tag gemütlich ausklingen lassen kann.
Sonnen- Terrassen mit Gartenmöbeln (Sitz-/ Essgruppe und Lounge Garnitur) sowie abschließbarer Schuppen mit Ladestation für E-Bikes für alle Gäste nutzbar.
Kinderfreundliche Ausstattung:
Babybett (Reisebett ohne Bettwäsche), Hochstuhl, kindersichere Steckdosen, Treppenschutzgitter, großer, eingezäunter Garten. Zusätzlich gibt es einen Gemeinschaftsgarten mit Strandkorb und Sandkasten, der bitte tierfrei bleibt.
Ostseeurlaub mit Hund:
Im Ferienhaus sind Haustiere willkommen. Je Haus bietet ein eingezäunter Garten Schutz. Ein zusätzlicher Gemeinschaftsgarten für Kinder ist eingezäunt und bleibt tierfrei! Gebühr je Haustier und Tag 10 EUR. Ihr Hund darf nicht unbeaufsichtigt im Ferienhaus bleiben. Gassi- und Auslaufwege starten direkt am Haus Richtung Wald, Feld oder Strand.
Ausstattung des Ferienhauses:
Waschmaschine, Trockner, WLAN, Elektro- Tisch- Grill, Parkplatz. Smart-TV´s für Streamingdienste Sky, Netflix & Amazon Prime u.a.
Reetdach-/ Schilfdachhäuser:
Da es sich in dem Wohngebiet um Häuser mit Reet handelt, ist das Abfeuern von Feuerwerk und Silvesterraketen verboten. Rauchen im Haus nicht gestattet.
Extra- Service auf Wunsch (Gebühr):
Wäschepaket & Handtücher gg. Gebühr buchbar - ohne Kinderbettwäsche - bei Anreise NICHT bezogen
Gemeinschaftlicher Eingang, gemeinschaftliche Nutzung von Waschmaschine und Trockner.
Insgesamt finden Sie hier 6 separate Schlafzimmer (3x je 1 Doppelbett + 2x je 2 Einzelbetten + 1x 1 Einzelbett). In der linken Haushälfte befindet sich ein Kamin, wo man einen erlebnisreichen Tag gemütlich ausklingen lassen kann.
Sonnen- Terrassen mit Gartenmöbeln (Sitz-/ Essgruppe und Lounge Garnitur) sowie abschließbarer Schuppen mit Ladestation für E-Bikes für alle Gäste nutzbar.
Kinderfreundliche Ausstattung:
Babybett (Reisebett ohne Bettwäsche), Hochstuhl, kindersichere Steckdosen, Treppenschutzgitter, großer, eingezäunter Garten. Zusätzlich gibt es einen Gemeinschaftsgarten mit Strandkorb und Sandkasten, der bitte tierfrei bleibt.
Ostseeurlaub mit Hund:
Im Ferienhaus sind Haustiere willkommen. Je Haus bietet ein eingezäunter Garten Schutz. Ein zusätzlicher Gemeinschaftsgarten für Kinder ist eingezäunt und bleibt tierfrei! Gebühr je Haustier und Tag 10 EUR. Ihr Hund darf nicht unbeaufsichtigt im Ferienhaus bleiben. Gassi- und Auslaufwege starten direkt am Haus Richtung Wald, Feld oder Strand.
Ausstattung des Ferienhauses:
Waschmaschine, Trockner, WLAN, Elektro- Tisch- Grill, Parkplatz. Smart-TV´s für Streamingdienste Sky, Netflix & Amazon Prime u.a.
Reetdach-/ Schilfdachhäuser:
Da es sich in dem Wohngebiet um Häuser mit Reet handelt, ist das Abfeuern von Feuerwerk und Silvesterraketen verboten. Rauchen im Haus nicht gestattet.
Extra- Service auf Wunsch (Gebühr):
Wäschepaket & Handtücher gg. Gebühr buchbar - ohne Kinderbettwäsche - bei Anreise NICHT bezogen
Reetdach-Ferienhaus im Ostseebad Rerik mit 2 Doppelhaushälften. Die Doppelhaushälfte links (96m²) ist für 6 Personen + 1 Baby geeignet.
Im Erdgeschoss großzügiger Wohn-/ Essbereich mit Kamin, Esstisch und integrierter Küche mit Backofen, 4-Platten-Herd, Mikrowelle, Geschirrspüler, Kühl-/ Gefrierkombination, Kaffeemaschine. Gäste-WC.
Im Obergeschoss insgesamt 3 Schlafzimmer, ein Babybett ist stellbar und vorhanden. Davon ist ein Schlafraum mit Doppelbett (1,80 x 2m) & TV ausgestattet. In den beiden anderen Schlafzimmern stehen jeweils zwei Einzelbetten. Geräumiges Bad mit Dusche/ WC sowie Badewanne.
Eigener eingezäunter Garten (170m²) & Garten zur gemeinschaftlichen Nutzung (275 m²), Terrasse mit Gartenmöbeln (Sitz-/ Essgruppe und Lounge Garnitur) sowie der abschließbare Gemeinschaftsschuppen mit Ladestation für E-Bikes für alle Gäste nutzbar. Elektro- Tisch- Grill vorhanden.
Gemeinschaftlicher Eingang, gemeinschaftliche Nutzung von Waschmaschine und Trockner, die ebenfalls allen Gästen zugänglich sind.
Kinderfreundliche Ausstattung:
Babybett (Reisebett - ohne Kinderbettwäsche!), Hochstuhl, kindersichere Steckdosen, Treppenschutzgitter, großer, eingezäunter Garten für jede Wohnung vorhanden. Zusätzlich gibt es einen Gemeinschaftsgarten mit Strandkorb und Sandkasten), in dem keine Haustiere zulässig sind.
Ostseeurlaub mit Hund:
Im Ferienhaus sind Haustiere willkommen. Je Haus eingezäunter Garten. Ein zusätzlicher Gemeinschaftsgarten für Kinder ist eingezäunt und bleibt bitte tierfrei! Gebühr je Haustier und Tag 10 EUR. Ihr Hund darf nicht unbeaufsichtigt im Ferienhaus bleiben.
Ausstattung Ferienhaus:
Waschmaschine, Trockner, WLAN, Parkplatz. E-Bike-Ladestation.
Grillen, Silvester und Feuer:
Da es sich in dem Wohngebiet um Häuser mit Reet handelt, ist das Abfeuern von Feuerwerk und Silvesterraketen verboten. Das Rauchen ist im Ferienhaus nicht gestattet.
Extra- Service auf Wunsch (Gebühr):
Wäschepaket (Bettwäsche = bei Anreise NICHT bezogen, Handtücher & Geschirrtuch). Kinderbettwäsche bitte selbst mitbringen.
Im Erdgeschoss großzügiger Wohn-/ Essbereich mit Kamin, Esstisch und integrierter Küche mit Backofen, 4-Platten-Herd, Mikrowelle, Geschirrspüler, Kühl-/ Gefrierkombination, Kaffeemaschine. Gäste-WC.
Im Obergeschoss insgesamt 3 Schlafzimmer, ein Babybett ist stellbar und vorhanden. Davon ist ein Schlafraum mit Doppelbett (1,80 x 2m) & TV ausgestattet. In den beiden anderen Schlafzimmern stehen jeweils zwei Einzelbetten. Geräumiges Bad mit Dusche/ WC sowie Badewanne.
Eigener eingezäunter Garten (170m²) & Garten zur gemeinschaftlichen Nutzung (275 m²), Terrasse mit Gartenmöbeln (Sitz-/ Essgruppe und Lounge Garnitur) sowie der abschließbare Gemeinschaftsschuppen mit Ladestation für E-Bikes für alle Gäste nutzbar. Elektro- Tisch- Grill vorhanden.
Gemeinschaftlicher Eingang, gemeinschaftliche Nutzung von Waschmaschine und Trockner, die ebenfalls allen Gästen zugänglich sind.
Kinderfreundliche Ausstattung:
Babybett (Reisebett - ohne Kinderbettwäsche!), Hochstuhl, kindersichere Steckdosen, Treppenschutzgitter, großer, eingezäunter Garten für jede Wohnung vorhanden. Zusätzlich gibt es einen Gemeinschaftsgarten mit Strandkorb und Sandkasten), in dem keine Haustiere zulässig sind.
Ostseeurlaub mit Hund:
Im Ferienhaus sind Haustiere willkommen. Je Haus eingezäunter Garten. Ein zusätzlicher Gemeinschaftsgarten für Kinder ist eingezäunt und bleibt bitte tierfrei! Gebühr je Haustier und Tag 10 EUR. Ihr Hund darf nicht unbeaufsichtigt im Ferienhaus bleiben.
Ausstattung Ferienhaus:
Waschmaschine, Trockner, WLAN, Parkplatz. E-Bike-Ladestation.
Grillen, Silvester und Feuer:
Da es sich in dem Wohngebiet um Häuser mit Reet handelt, ist das Abfeuern von Feuerwerk und Silvesterraketen verboten. Das Rauchen ist im Ferienhaus nicht gestattet.
Extra- Service auf Wunsch (Gebühr):
Wäschepaket (Bettwäsche = bei Anreise NICHT bezogen, Handtücher & Geschirrtuch). Kinderbettwäsche bitte selbst mitbringen.
Vor Ort
Ortsübliche Kurtaxe plus Schlüsselkaution 25 EUR bar bei Anreise. Die Schlüssel-Kaution wird bei Anreise bar hinterlegt und bei Abreise bar ausgezahlt. Keine ec- oder Kreditkartenzahlung.
Ortsübliche Kurtaxe plus Schlüsselkaution 25 EUR bar bei Anreise. Die Schlüssel-Kaution wird bei Anreise bar hinterlegt und bei Abreise bar ausgezahlt. Keine ec- oder Kreditkartenzahlung.
Vores gæsteanmeldelser Eksterne anmeldelser
Faciliteter
-
Afstande
-
Til badepladsen/vandmassen1,5 km
-
Til bageren1,5 km
-
Til busstoppestedet1,5 km
-
Til centrum1,5 km
-
Til cykelstien500 m
-
Til lægen1,5 km
-
Til motorvejen25 km
-
Til pengeautomaten/banken1,5 km
-
Til restauranten1,5 km
-
Til stranden1,5 km
-
Til supermarkedet1,5 km
-
Til sygehuset/klinikken22 km
-
Til togstationen12 km
-
Til turistinformationen1,5 km
-
Til vandrestien500 m
-
-
Aktivitetsfaciliteter
-
Cykeludlejning
-
Cykelvenlig
-
Minigolf
-
Ridning
-
Surfing
-
Vognture
-
-
Børnefaciliteter
-
Familievenlig
-
Småbørns udstyr
-
-
Grundlæggende faciliteter
-
Byggeår2018
-
Størrelse96 m²
-
År renoveret2020
-
-
Indkvartering Faciliteter
-
Avancerede rengøringsmetoder i brug
-
BBQ
-
Bevidst undgåelse af spild
-
Cykelrum aflåselig
-
Cykelvenlig
-
El-cykel ladestation
-
Energibesparende belysning
-
Handicapvenlig
-
Ikke-ryger hus
-
Internet i det offentlige område
-
Klasse A husholdningsapparater
-
Kontaktløs ind-/udtjekning
-
Tilgængelighed
-
Vandrer venlig
-
Vaskeservice
-
Økologiske rengøringsmidler
-
-
Mad faciliteter
-
Brødservice
-
Morgenmad muligt
-
-
Omgivende faciliteter
-
Cykelrum
-
Grunden er indhegnet
-
Have til brug
-
Parkeringsplads
-
Siddeplads i haven
-
Surfskole
-
-
Servicefaciliteter
-
Bad / WC
-
Bad/toilet
-
Badekar
-
Bruser
-
Brødservice
-
Dobbeltseng
-
Dyr på forespørgsel
-
Enkeltseng
-
Flere soveværelser
-
Gæstetoilet
-
Handicapvenlig
-
Husdyr tilladt eller efter anmodning
-
Højstol
-
Håndklæder
-
Ikke-rygere
-
Insektsmiddel/gaze
-
Internet - WiFi
-
Kabel/Sat
-
Kaffemaskine
-
Køkken (åbent)
-
Køleskab
-
Mikroovn
-
Morgenmadsservice
-
Mulighed for fryser
-
Opvarmet
-
Opvaskemaskine
-
Ovn
-
Pejs/brændovn
-
Pude
-
Rejseseng/krybbe
-
Rengøringsmidler
-
Sengetøj
-
Separate senge
-
Smart-Tv
-
Streamingtjenester
-
Stueetage
-
Terrasse
-
Toaster
-
Toiletpapir
-
TV
-
TV - fladskærm
-
Tørretumbler
-
Vandvarmer
-
Vaskemaskine
-
Miniferie
Der er begrænset mulighed for miniferie hele året, typisk uden for højsæsonen.
Priser og kalender
Kalender
Varighed
Personer
Pris
Periode
- Ankomst
- Afrejse
- Varighed
- 1 uge
Personer
Ingen personer er valgt
Bemærk
Ankomst er ikke valgt.
Der er ikke valgt personer.