Alternative emner
Ferielejlighed - 4 personer - Südstrand - 23775 - Großenbrode
4 personer
Emne nr.: 540-169761-134941
- Soverum 2
- Badeværelser 1
- Boligareal 112 m²
- Husdyr Ikke tilladt
- Tilbyder miniferie Nej
- Afstand vand 15 m
- Afstand indkøb 500 m
- Spa Ja
- Sauna Ja
- Internet Ja
- Parabol/kabel TV Ja
- Brændeovn Ja
- Vaskemaskine Ja
- Tørretumbler Ja
- Opvaskemaskine Ja
- Ikkeryger Ja
Beskrivelse
Beskrivelsen foreligger desværre ikke på Dansk. Se teksten på Tysk nedenfor, eller se den maskinoversatte tekst på Dansk.
Ferienwohnung/App. für 4 Gäste mit 112m² in Großenbrode (169761) (1. Stock)
Herzlich willkommen in unserer Ferienwohnung
'Ostseeresidenz 3'. Genießen Sie Ihre Ferien vom ersten Tag an!
Unsere Ferienwohnung liegt in der neu gebauten Ostseeresidenz, die schon durch ihr einzigartiges Design ins Auge fällt, direkt am weißen Südstrand von Großenbrode.
Dieses Feriendomizil ist mit dem FeWoAirClean - Siegel ausgezeichnet.
Diese Wohnung ist im Wohnzimmer mit einem Luftreiniger ausgestattet. Laut Hersteller ist es damit möglich, 99,9 % der Viren und Aerosole aus der Luft zu entfernen.
Hinweise zu weiteren Kosten und Gebühren:
100,- € Sicherheitsleistung wird im Voraus fällig und muss mit der Miete überwiesen werden. Die Sicherheitsleistung wird nach Abreise zurück erstattet.
Strom/Wasser/Heizung sind inklusive.
Bett- und Badwäsche sowie Kaminholz können auf Wunsch kostenpflichtig bestellt werden.
Die Kurabgabe wird vor Anreise fällig.
Sollte nach erfolgter Buchung und durch Beschluss des Landes ein Gesundheitszeugnis o.ä. benötigt werden, so muss der Mieter dieses Attest auf eigene Kosten besorgen und auf Wunsch der Behörden vorlegen.
Ein Tiefgaragenparkplatz steht Ihnen kostenlos zur Verfügung.
Ein Fahrstuhl ist im Haus vorhanden und führt bis in die Tiefgarage.
Sofern verfügbar kann kostenpflichtig ein Fahrradschuppen für 5,- €/ pro Nacht hinzugebucht werden. Da nur eine begrenzte Anzahl zur Verfügung steht, empfehlen wir eine rechtzeitige Reservierung.
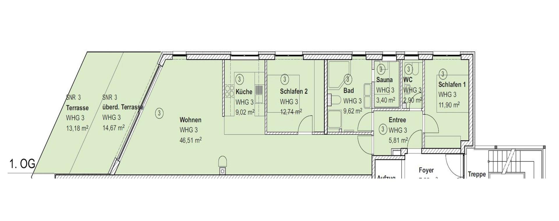
Die Wohnung befindet sich im ersten Stock des Gebäudes, hat Südwest-Lage und bietet vom Balkon und den Panoramafenstern einen traumhaften Meerblick.
Genießen Sie die Sonne und das milde, maritime Klima von unserem mit Relax-Stühlen und Liegen ausgestatteten großen, teilweise überdachten Balkon. Der große, helle Wohnraum mit Kaminofen, der Essbereich mit offener, komplett eingerichteter und viel Stauraum versehener Küche sowie die zwei Schlafräume, jedes mit einem Doppelbett, sind modern, hochwertig und liebevoll eingerichtet. Ausgestattet mit Waschmaschine, Kondenstrockner, Mikrowelle, Induktionsherd, Backofen, Geschirrspüler, Mixer, Kaffeemaschine, Wasserkocher, Kühlschrank mit Tiefkühlfach, Fön, Bügeleisen mit Bügelbrett, Minisafe, Kinderreisebett, Kinderhochstuhl bietet die Wohnung eine außergewöhnlich komplette Ausstattung.
Der großzügige Wellnessbereich mit Whirlpool und Sauna genügt selbst gehobenen Ansprüchen. Ein Gäste-WC mit Waschtisch ist ebenfalls vorhanden. Zu Ihrer Unterhaltung finden Sie einen großen Flachbildfernseher im Wohnzimmer mit Stereoanlage und CD/DVD-Player sowie einen Flachbildfernseher mit Blu-Ray-Player im Schlafzimmer. Unseren Gästen steht ein WLAN-Anschluss kostenfrei zur Verfügung.
Ausgestattet mit Zentral- und Fußbodenheizung sowie dem Kaminofen bietet die Wohnung auch in der kalten Jahreszeit allen Komfort. Für Ihr Fahrzeug steht Ihnen kostenfrei ein Platz in der abgeschlossenen Tiefgarage zur Verfügung.
Unsere Ferienwohnung liegt in der neu gebauten Ostseeresidenz, die schon durch ihr einzigartiges Design ins Auge fällt, direkt am weißen Südstrand von Großenbrode.
Dieses Feriendomizil ist mit dem FeWoAirClean - Siegel ausgezeichnet.
Diese Wohnung ist im Wohnzimmer mit einem Luftreiniger ausgestattet. Laut Hersteller ist es damit möglich, 99,9 % der Viren und Aerosole aus der Luft zu entfernen.
Hinweise zu weiteren Kosten und Gebühren:
100,- € Sicherheitsleistung wird im Voraus fällig und muss mit der Miete überwiesen werden. Die Sicherheitsleistung wird nach Abreise zurück erstattet.
Strom/Wasser/Heizung sind inklusive.
Bett- und Badwäsche sowie Kaminholz können auf Wunsch kostenpflichtig bestellt werden.
Die Kurabgabe wird vor Anreise fällig.
Sollte nach erfolgter Buchung und durch Beschluss des Landes ein Gesundheitszeugnis o.ä. benötigt werden, so muss der Mieter dieses Attest auf eigene Kosten besorgen und auf Wunsch der Behörden vorlegen.
Ein Tiefgaragenparkplatz steht Ihnen kostenlos zur Verfügung.
Ein Fahrstuhl ist im Haus vorhanden und führt bis in die Tiefgarage.
Sofern verfügbar kann kostenpflichtig ein Fahrradschuppen für 5,- €/ pro Nacht hinzugebucht werden. Da nur eine begrenzte Anzahl zur Verfügung steht, empfehlen wir eine rechtzeitige Reservierung.
Die Wohnung befindet sich im ersten Stock des Gebäudes, hat Südwest-Lage und bietet vom Balkon und den Panoramafenstern einen traumhaften Meerblick.
Genießen Sie die Sonne und das milde, maritime Klima von unserem mit Relax-Stühlen und Liegen ausgestatteten großen, teilweise überdachten Balkon. Der große, helle Wohnraum mit Kaminofen, der Essbereich mit offener, komplett eingerichteter und viel Stauraum versehener Küche sowie die zwei Schlafräume, jedes mit einem Doppelbett, sind modern, hochwertig und liebevoll eingerichtet. Ausgestattet mit Waschmaschine, Kondenstrockner, Mikrowelle, Induktionsherd, Backofen, Geschirrspüler, Mixer, Kaffeemaschine, Wasserkocher, Kühlschrank mit Tiefkühlfach, Fön, Bügeleisen mit Bügelbrett, Minisafe, Kinderreisebett, Kinderhochstuhl bietet die Wohnung eine außergewöhnlich komplette Ausstattung.
Der großzügige Wellnessbereich mit Whirlpool und Sauna genügt selbst gehobenen Ansprüchen. Ein Gäste-WC mit Waschtisch ist ebenfalls vorhanden. Zu Ihrer Unterhaltung finden Sie einen großen Flachbildfernseher im Wohnzimmer mit Stereoanlage und CD/DVD-Player sowie einen Flachbildfernseher mit Blu-Ray-Player im Schlafzimmer. Unseren Gästen steht ein WLAN-Anschluss kostenfrei zur Verfügung.
Ausgestattet mit Zentral- und Fußbodenheizung sowie dem Kaminofen bietet die Wohnung auch in der kalten Jahreszeit allen Komfort. Für Ihr Fahrzeug steht Ihnen kostenfrei ein Platz in der abgeschlossenen Tiefgarage zur Verfügung.
Hinweise zu weiteren Kosten und Gebühren:
100,- € Sicherheitsleistung wird im Voraus fällig und muss mit der Miete überwiesen werden. Die Sicherheitsleistung wird nach Abreise zurück erstattet.
Strom/Wasser/Heizung sind inklusive.
Bett- und Badwäsche sowie Kaminholz können auf Wunsch kostenpflichtig bestellt werden.
Die Kurabgabe wird vor Anreise fällig.
Sollte nach erfolgter Buchung und durch Beschluss des Landes ein Gesundheitszeugnis o.ä. benötigt werden, so muss der Mieter dieses Attest auf eigene Kosten besorgen und auf Wunsch der Behörden vorlegen.
Ein Tiefgaragenparkplatz steht Ihnen kostenlos zur Verfügung.
Ein Fahrstuhl ist im Haus vorhanden und führt bis in die Tiefgarage.
Sofern verfügbar kann kostenpflichtig ein Fahrradschuppen für 5,- €/ pro Nacht hinzugebucht werden. Da nur eine begrenzte Anzahl zur Verfügung steht, empfehlen wir eine rechtzeitige Reservierung.
100,- € Sicherheitsleistung wird im Voraus fällig und muss mit der Miete überwiesen werden. Die Sicherheitsleistung wird nach Abreise zurück erstattet.
Strom/Wasser/Heizung sind inklusive.
Bett- und Badwäsche sowie Kaminholz können auf Wunsch kostenpflichtig bestellt werden.
Die Kurabgabe wird vor Anreise fällig.
Sollte nach erfolgter Buchung und durch Beschluss des Landes ein Gesundheitszeugnis o.ä. benötigt werden, so muss der Mieter dieses Attest auf eigene Kosten besorgen und auf Wunsch der Behörden vorlegen.
Ein Tiefgaragenparkplatz steht Ihnen kostenlos zur Verfügung.
Ein Fahrstuhl ist im Haus vorhanden und führt bis in die Tiefgarage.
Sofern verfügbar kann kostenpflichtig ein Fahrradschuppen für 5,- €/ pro Nacht hinzugebucht werden. Da nur eine begrenzte Anzahl zur Verfügung steht, empfehlen wir eine rechtzeitige Reservierung.
Vores gæsteanmeldelser Eksterne anmeldelser
Faciliteter
-
Afstand
-
Afstand strand 0-100m
-
Autobahn3 km
-
Bar/natteliv100 m
-
Busstoppested1 km
-
Bymidte / bymidte1 km
-
Færge15 km
-
Golf15 km
-
Indkøbsfaciliteter500 m
-
Lufthavn130 km
-
Læge1 km
-
Restaurant100 m
-
Strand15 m
-
Togstation75 km
-
Vand15 m
-
-
Bad
-
Badekar
-
Gæstetoilet
-
Hårtørrer
-
-
Generelt udstyr
-
Elevator
-
Ikke-rygere
-
Internet
-
Opvarmet
-
Tørretumbler
-
Vaskemaskine
-
WLAN
-
-
Grundlæggende
-
Gæstetoiletter1
-
Køkkener1
-
Stue1
-
Størrelse112 m²
-
-
Kæledyr
-
Ingen hund
-
Kæledyr er ikke tilladt
-
-
Køkken
-
Blander
-
Fryser
-
Kaffemaskine
-
Køkken
-
Køleskab
-
Mikroovn
-
Opvaskemaskine
-
Ovn
-
Toaster
-
Vandvarmer
-
-
Målgruppe
-
Familien
-
-
Sikkerhed
-
Røgalarm
-
-
Stue/soveplads
-
Barneseng
-
Dobbeltseng
-
DVD afspiller
-
Høj stol
-
Pejs/brændovn
-
Radio
-
TV
-
-
Udendørs
-
Balkon / Loggia
-
Garage/Carport
-
Havestole/liggestole
-
Legetøj
-
Parkering ved objektet
-
-
Udendørs faciliteter
-
Gratis parkering
-
-
Wellness
-
Sauna
-
Spa
-
Priser og kalender
Kalender
Varighed
Pris
Periode
- Ankomst
- Afrejse
- Varighed
- 1 uge
Personer
Op til 4 personer
Bemærk
Ankomst er ikke valgt.