Sommerhus - 4 personer - 26553 - Dornum

4 personer
Emne nr.: 354-DE-26553-68
  • Soverum 2
  • Badeværelser 1
  • Boligareal 98 m²
  • Husdyr Ikke tilladt
  • Tilbyder miniferie Ja
  • Afstand indkøb 5 km
  • Handicapvenligt Ja
  • Vaskemaskine Ja
  • Tørretumbler Ja
  • Opvaskemaskine Ja

Beskrivelse

Beskrivelsen foreligger desværre ikke på Dansk. Se teksten på Tysk nedenfor, eller se den maskinoversatte tekst på Dansk.
Ferienwohnung Nordnest

Haus:
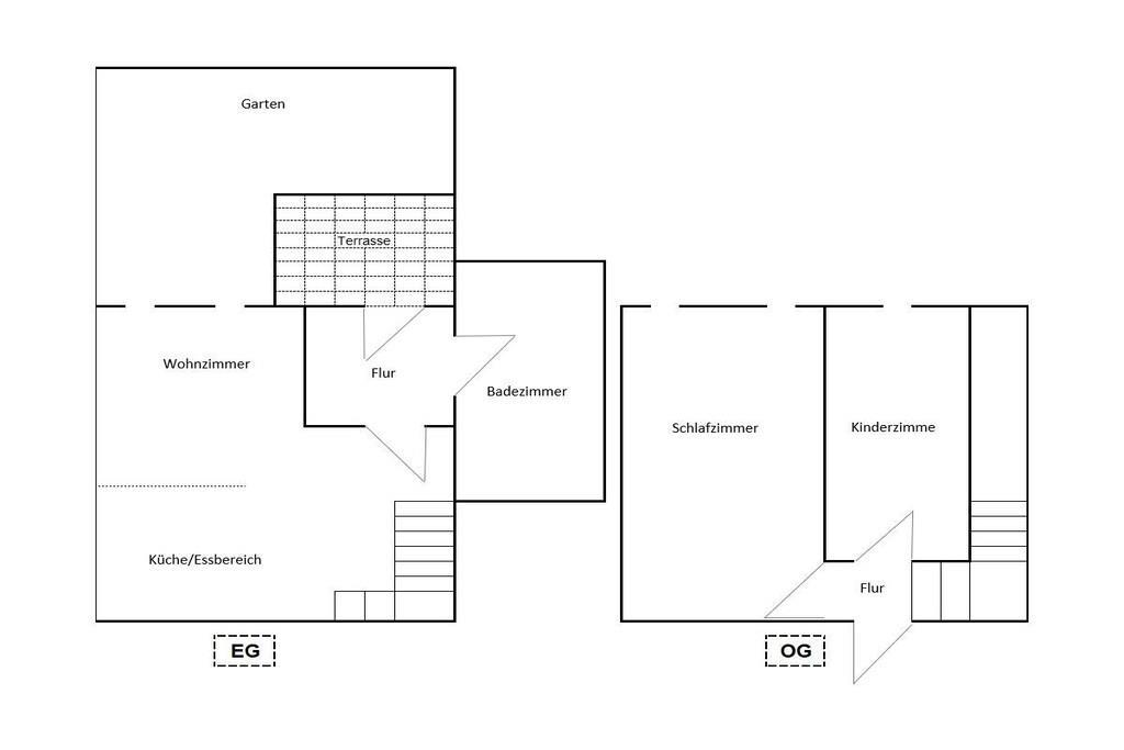
Unsere schöne ca. 98 qm große Nichtraucherwohnung auf 2 Etagen befindet sich auf dem 1862 errichteten und im Jahr 2005 liebevoll renoviert denkmalgeschützten Gulfhof Siebelshörn. Durch die Sanierung entstanden hier 12 Wohneinheiten, die teilweise privat oder als Ferienwohnungen genutzt werden. Das Anwesen liegt inmitten eines Vogelschutzgebietes. Umgeben von Feldern, Gärten mit altem Baumbestand im Ortsteil Dornum Nesse, nahe der ostfriesischen Nordseeküste im Deichhinterland. Die Wohnung teilt sich im EG auf in Wohnzimmer, Küche mit Essbereich und 1 großen Bad mit Toilette, Badewanne und Dusche. Über eine Holztreppe gelangt man in die 2 im DG gelegenen Schlafzimmer (1x Doppelbetten, 1x zwei Einzelbetten).

Vores gæsteanmeldelser Eksterne anmeldelser

Ingen gæsteanmeldelser
4,3
11 eksterne anmeldelser
4,5
februar 2025
Generel:
Vår vistelse på Semesterlägenhet Nordnest var inget mindre än förtjusande! Den rymliga två-rums layouten var perfekt för vår familj på fyra, och den mysiga eldstaden gav en varm känsla under kalla kvällar, Trädgården var en hit med barnen – de älskade att springa runt i det inhägnade området medan vi njöt av en grillfest, Vi uppskattade också det välutrustade köket som gjorde matlagningen till en breeze, Dessutom var de närliggande stränderna bara en kort bilresa bort, vilket gjorde det lätt för oss att njuta av lite sol och kul
4,5
december 2024
Generel:
Et dejligt ophold alt i alt! Lejligheden var ren og komfortabel, med en hyggelig pejs, der gjorde vores aftener specielle, Vi nød at udforske det lokale område, især Nationalpark Niedersächisches Wattenmeer, som kun var en kort køretur væk
4,0
december 2024
Generel:
Vi tilbrakte en uke her og elsket det! Området er rolig, og leiligheten er godt vedlikeholdt, Barna likte stranden ved Dornumersiel, som bare var en kort kjøretur unna, Det var en flott familieferie!
4,0
oktober 2024
Generel:
Tolle Lage in der Nähe des Strandes und der ruhigen Natur, Die Wohnung ist geräumig und sauber, Würde ich auf jeden Fall für Familien empfehlen!
4,5
oktober 2024
Generel:
Super gezellige appartement! Alles was schoon en had al det, vi havde brug for, Elskede pejsen!
4,5
september 2024
Generel:
Nordnest is fantastic! The décor was inviting and homely, We appreciated the thoughtful touches, like the cozy blankets by the fireplace, The location is ideal for exploring the surrounding sights, including the Museum Leben am Meer
4,0
september 2024
Generel:
Ett mycket familjevänligt ställe, Layoutet av lägenheten var perfekt för oss, Vi hade tillräckligt med utrymme för alla, och barnen älskade att leka i trädgården, De närliggande matställena var fantastiska för de kvällar vi inte ville laga mat
4,5
maj 2024
Generel:
Alt var ret godt! WiFi var lidt langsomt til tider, men ikke et stort problem, Værterne var super venlige og sørgede for, at vi havde alt, hvad vi havde brug for, Køkkenet var veludstyret, og vi fik endda mulighed for at vaske tøj, hvilket var en livredder!
4,0
maj 2024
Generel:
Clean and practical accommodation, The hosts were friendly and made us feel at home, The proximity to local dining options, like Café Dolce Vita, was convenient, Overall, a pleasant stay
4,0
april 2024
Generel:
Vi havde en fantastisk tid på Nordnest! Lejligheden var rummelig og perfekt til vores familie på fire, Børnene elskede at lege i den store have, og vi satte pris på det veludstyrede køkken til vores måltider, De nærliggende strande var en bonus for vores sommerferie
4,0
april 2024
Generel:
Lägenheten var charmig och hade allt vi behövde, Trädgården erbjöd ett bra utrymme för avkoppling, och vi njöt av att grilla på terrassen, Det närliggande slottet Jever var en underbar dagstur!

Faciliteter

  • Afstand

    • Banegård
      14 km
    • Busstop
      200 m
    • Centrum
      6 km
    • Diverse
      6 km
    • Doktor
      5 km
    • Færgehavn
      5 km
    • Restauranter
      5 km
    • Shopping
      5 km
  • Andre

    • Hårtørrer
    • Parkering (mod betaling)
    • Radiator
    • Strygebræt
    • Strygejern
    • Tørreskab
  • Byggestatus

    • Top placering
  • Børn

    • Barneseng
    • Højstol
    • Legetøj
    • Trappeport
  • Generel Information

    • Boligareal
      98 m²
  • Handicap - Mål

    • Frihøjde under håndvasken >= 70 cm
  • Hjemmesikkerhed

    • Førstehjælpskasse
  • Køkkenudstyr

    • Blander
    • Elkedel
    • Fryser
    • Grill
    • Kaffemaskine
    • Kogeplade
    • Køleskab
    • Opvaskemaskine
    • Ovn
    • Toaster
    • Æggekoger
  • Offentlige rum

    • Lawn
  • Parkfaciliteter

    • Førstehjælp
    • Grillcenter
    • Internetadgang
  • Rundt om huset

    • Have
    • Havemøbler
    • Terrasse
  • Sanitet / Vask

    • Badekar
    • Bruser
    • Håndvask
    • Tørretumbler
    • Varmt vand
    • Vaskemaskine
  • Type

    • Feriebolig
  • Værelsesudstyr

    • Brandalarm
    • DVD
    • Garderobe
    • Garderobehylde
    • Lænestol
    • Sengetøj
    • Sofa
    • Spejl
    • Spisebord
    • Stereoanlæg
    • Stikdåser
    • Støvsuger
    • TV
    • Viskestykker

Miniferie

Der er mulighed for miniferie hele året.

Priser og kalender

Kalender

Ankomst
Næste
   Se om emnet er ledigt på den valgte dato
Ledig
Optaget
   Ankomst mulig
Varighed

Pris

Periode
Ankomst
Afrejse
Varighed
1 uge
Personer
Op til 4 personer

Bemærk

Ankomst er ikke valgt.
Aftale- og lejebetingelser