Alternative emner
Ferielejlighed - 4 personer - Buch - 92363 - Breitenbrunn
4 personer
Emne nr.: 530-946453
- Soverum 1
- Husdyr Ikke tilladt
- Tilbyder miniferie Ja
- Internet Ja
- Parabol/kabel TV Ja
- Opvaskemaskine Ja
- Ikkeryger Ja
Beskrivelse
Beskrivelsen foreligger desværre ikke på Dansk. Se teksten på Tysk nedenfor, eller se den maskinoversatte tekst på Dansk.
Ferienwohnung Brock - Hof Raimund Götz, Ferienwohnung zur Pferdetränke 1 mit Balkon und himmlischer Aussicht
Brock-Hof die Bio-Erlebnis-Reitanlage eine Oase für Ross & Reiter!
Dort wo andere Urlaub machen im wunderschönen Oberpfälzer Jura, mitten im Herzen des Altmühltals befindet sich die hochmoderne Reitanlage der Familie Götz. Hier findet jeder Reiter und jedes Ross was sein Herz begehrt. Sei es im HIT Aktivstall, in den neun Paddockboxen oder den vier Außenboxen. Für Ihren Vierbeiner haben Sie die Wahl. Fit im HIT Aktivstall oder wohlbehütet in der Boxenhaltung mit täglichem Auslauf in der Herde oder auf Einzelpaddocks. Daniela Cerotta-Götz geht in Sachen Futter kein Risiko ein. Gefüttert wird ausschließlich betriebseigenes Bio-Futter wie Heu, Hafer und Grascobs. Die Fütterung von Müsli und Mineralfutter ist nach Absprache möglich. Sehr beliebt sind neben dem Reitunterricht die erlebnisorientierten Angebote. Hier geht das Spektrum vom Ponyreiten der 3-jährigen über das Turnen auf dem Pferd für die Schulkinder bis hin zu Kindergeburtstagen. Verschiedene Lehrgänge und Veranstaltungen runden das Angebot ab. Auf dem weitläufigen Gelände der Reitanlage mit einer modernen Reithalle, einem beleuchteten Ganzjahresreitplatz und einem Longierzirkel vergeht die tägliche Arbeit mit Ihrem Pferd wie im Flug. Da verwundert es nicht, dass der Reiterhof auch bei Wanderreitern ausgesprochen beliebt ist. Das Ausreitgelände lässt keine Wünsche offen. Seit Sommer 2016 sind nun die renovierten Ferienwohnungen mit je drei Sternen ausgezeichnet. Dem Urlaub auf dem Reiterhof, sei es mit oder ohne eigenen Ross, steht somit nichts mehr entgegen. Unser Ferienhaus wurde anno 2001 gebaut und ursprünglich als Reiterstüberl genutzt.
Im Jahr 2016 wurde der Umbau zu Ferienwohnungen nach zweijähriger Planungs- und Bauphase fertiggestellt. Die Ferienwohnungen für bis zu vier Personen lassen Sie ein Zuhause auf Zeit auf dem Brock-Hof finden.
Konditionen
In der Wohnung finden Sie eine moderne Einrichtung mit Flachbildfernsehern. Handtücher werden gestellt.
Ein Bügeleisen ist ebenfalls in der Wohnung verfügbar.
Es gibt ausreichend Parkmöglichkeiten direkt vor dem Haus.
Generelle Buchungsdauer: 7 Tage mit An-/Abreise am Samstag. Falls unsere Wohnung frei ist, so können Sie auch ganz individuelle Buchungen vornehmen. Bitte kontaktieren Sie uns in diesem Fall telefonisch oder per EMail, wir versuchen Ihren Wunsch entsprechen zu können.
Stornierungen bis 14 Tage vor Anreise sind kostenfrei, Stornierungen zwischen 14-7 Tagen vor der Anreise werden mit 50% der Gesamtkosten berechnet, Stornierungen in den 7 Tagen vor der Anreise werden mit 100% der Gesamtkosten berechnet.
Dort wo andere Urlaub machen im wunderschönen Oberpfälzer Jura, mitten im Herzen des Altmühltals befindet sich die hochmoderne Reitanlage der Familie Götz. Hier findet jeder Reiter und jedes Ross was sein Herz begehrt. Sei es im HIT Aktivstall, in den neun Paddockboxen oder den vier Außenboxen. Für Ihren Vierbeiner haben Sie die Wahl. Fit im HIT Aktivstall oder wohlbehütet in der Boxenhaltung mit täglichem Auslauf in der Herde oder auf Einzelpaddocks. Daniela Cerotta-Götz geht in Sachen Futter kein Risiko ein. Gefüttert wird ausschließlich betriebseigenes Bio-Futter wie Heu, Hafer und Grascobs. Die Fütterung von Müsli und Mineralfutter ist nach Absprache möglich. Sehr beliebt sind neben dem Reitunterricht die erlebnisorientierten Angebote. Hier geht das Spektrum vom Ponyreiten der 3-jährigen über das Turnen auf dem Pferd für die Schulkinder bis hin zu Kindergeburtstagen. Verschiedene Lehrgänge und Veranstaltungen runden das Angebot ab. Auf dem weitläufigen Gelände der Reitanlage mit einer modernen Reithalle, einem beleuchteten Ganzjahresreitplatz und einem Longierzirkel vergeht die tägliche Arbeit mit Ihrem Pferd wie im Flug. Da verwundert es nicht, dass der Reiterhof auch bei Wanderreitern ausgesprochen beliebt ist. Das Ausreitgelände lässt keine Wünsche offen. Seit Sommer 2016 sind nun die renovierten Ferienwohnungen mit je drei Sternen ausgezeichnet. Dem Urlaub auf dem Reiterhof, sei es mit oder ohne eigenen Ross, steht somit nichts mehr entgegen. Unser Ferienhaus wurde anno 2001 gebaut und ursprünglich als Reiterstüberl genutzt.
Im Jahr 2016 wurde der Umbau zu Ferienwohnungen nach zweijähriger Planungs- und Bauphase fertiggestellt. Die Ferienwohnungen für bis zu vier Personen lassen Sie ein Zuhause auf Zeit auf dem Brock-Hof finden.
Konditionen
In der Wohnung finden Sie eine moderne Einrichtung mit Flachbildfernsehern. Handtücher werden gestellt.
Ein Bügeleisen ist ebenfalls in der Wohnung verfügbar.
Es gibt ausreichend Parkmöglichkeiten direkt vor dem Haus.
Generelle Buchungsdauer: 7 Tage mit An-/Abreise am Samstag. Falls unsere Wohnung frei ist, so können Sie auch ganz individuelle Buchungen vornehmen. Bitte kontaktieren Sie uns in diesem Fall telefonisch oder per EMail, wir versuchen Ihren Wunsch entsprechen zu können.
Stornierungen bis 14 Tage vor Anreise sind kostenfrei, Stornierungen zwischen 14-7 Tagen vor der Anreise werden mit 50% der Gesamtkosten berechnet, Stornierungen in den 7 Tagen vor der Anreise werden mit 100% der Gesamtkosten berechnet.
**** Bitte nur Urlaubsgäste ****
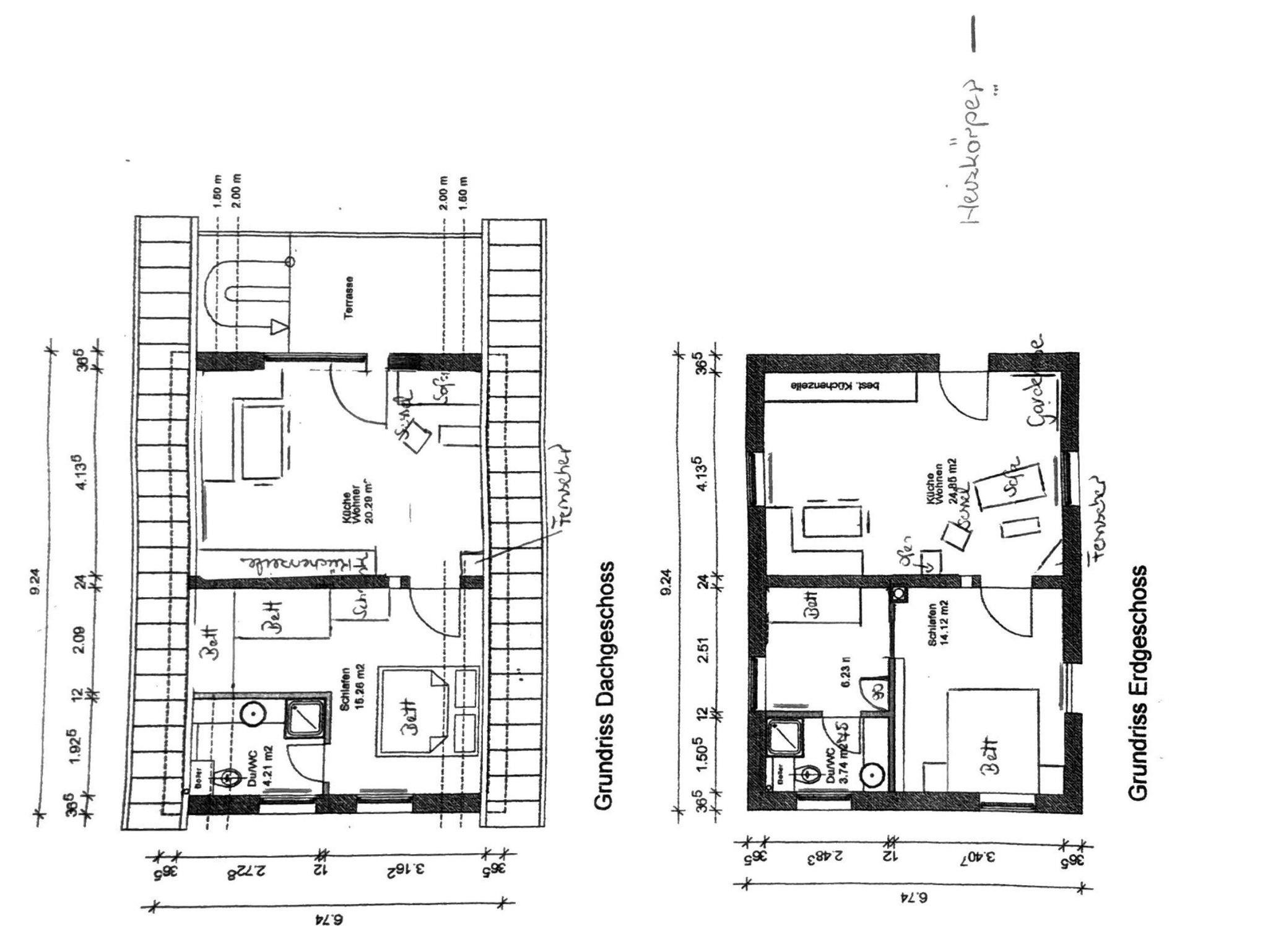
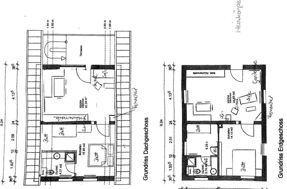
Die himmlische Ferienwohnung Zur Pferdetränke 1 im ersten Stock besitzt einen Balkon und ist 39 qm groß. Sie wurde mit 3 Sternen ausgezeichnet. Parkplätze finden Sie direkt am Hof. Die Ferienwohnung liegt direkt auf einem Reiterhof. Sie ist von der Straße aus nicht direkt zu sehen. Bitte fahren Sie durch die Pferdehofeinfahrt Brock-Hof. Die Ferienwohnung ist für bis zu 4 Personen ausgerichtet.
Nicht nur wenn Sie Pferdeliebhaber sind, wird Ihr Herz vor unserer traumhaften Kulisse beim Aufgehen der Sonne beim Blick aus Ihrer Ferienwohnung höher schlagen. In der Wohnung finden Sie eine moderne Einrichtung u.a. mit Flachbildfernsehern und Geschirrspüler. Handtücher werden gestellt. WLan ist selbstverständlich vorhanden. Ein Bügeleisen ist ebenfalls in der Wohnung verfügbar. Es gibt ausreichend Parkmöglichkeiten direkt vor dem Haus.
Konditionen
In der Wohnung (1 Schlafzimmer mit 1 Doppelbett und 2 Einzelbetten; 1 Wohnküche; 1 Bad) finden Sie eine moderne Einrichtung u.a. mit Flachbildfernsehern und Geschirrspüler. Handtücher werden gestellt. WLan ist selbstverständlich vorhanden.
Ein Bügeleisen ist ebenfalls in der Wohnung verfügbar.
Es gibt ausreichend Parkmöglichkeiten direkt vor dem Haus.
Die Endreinigung ist im Mietpreis enthalten.
Hunde können gerne mitgebracht werden, allerdings müssen wir einen kleinen Aufpreis verlangen.
Preise für die Belegung ab einer Woche Aufenthalt auf Anfrage!
Generelle Buchungsdauer: 7 Tage mit An-/Abreise am Samstag. Falls unsere Wohnung frei ist, so können Sie auch ganz individuelle Buchungen vornehmen. Bitte kontaktieren Sie uns in diesem Fall telefonisch oder per E-Mail, wir versuchen Ihren Wunsch entsprechen zu können.
Bei Anreise nach 21 Uhr fällt eine Gebühr von 30,00 € an.
Der Vermieter behält sich vor bei Ankunft eine Kaution von 150,00 € zu verlangen. Es ist NUR Barzahlung möglich!
Die himmlische Ferienwohnung Zur Pferdetränke 1 im ersten Stock besitzt einen Balkon und ist 39 qm groß. Sie wurde mit 3 Sternen ausgezeichnet. Parkplätze finden Sie direkt am Hof. Die Ferienwohnung liegt direkt auf einem Reiterhof. Sie ist von der Straße aus nicht direkt zu sehen. Bitte fahren Sie durch die Pferdehofeinfahrt Brock-Hof. Die Ferienwohnung ist für bis zu 4 Personen ausgerichtet.
Nicht nur wenn Sie Pferdeliebhaber sind, wird Ihr Herz vor unserer traumhaften Kulisse beim Aufgehen der Sonne beim Blick aus Ihrer Ferienwohnung höher schlagen. In der Wohnung finden Sie eine moderne Einrichtung u.a. mit Flachbildfernsehern und Geschirrspüler. Handtücher werden gestellt. WLan ist selbstverständlich vorhanden. Ein Bügeleisen ist ebenfalls in der Wohnung verfügbar. Es gibt ausreichend Parkmöglichkeiten direkt vor dem Haus.
Konditionen
In der Wohnung (1 Schlafzimmer mit 1 Doppelbett und 2 Einzelbetten; 1 Wohnküche; 1 Bad) finden Sie eine moderne Einrichtung u.a. mit Flachbildfernsehern und Geschirrspüler. Handtücher werden gestellt. WLan ist selbstverständlich vorhanden.
Ein Bügeleisen ist ebenfalls in der Wohnung verfügbar.
Es gibt ausreichend Parkmöglichkeiten direkt vor dem Haus.
Die Endreinigung ist im Mietpreis enthalten.
Hunde können gerne mitgebracht werden, allerdings müssen wir einen kleinen Aufpreis verlangen.
Preise für die Belegung ab einer Woche Aufenthalt auf Anfrage!
Generelle Buchungsdauer: 7 Tage mit An-/Abreise am Samstag. Falls unsere Wohnung frei ist, so können Sie auch ganz individuelle Buchungen vornehmen. Bitte kontaktieren Sie uns in diesem Fall telefonisch oder per E-Mail, wir versuchen Ihren Wunsch entsprechen zu können.
Bei Anreise nach 21 Uhr fällt eine Gebühr von 30,00 € an.
Der Vermieter behält sich vor bei Ankunft eine Kaution von 150,00 € zu verlangen. Es ist NUR Barzahlung möglich!
Faciliteter
-
Afstande
-
Lufthavn80 km
-
Udstilling/konferencecenter74 km
-
-
Aktivitetsfaciliteter
-
Ridning
-
-
Indkvartering Faciliteter
-
Internet i det offentlige område
-
-
Omgivende faciliteter
-
Parkeringsplads
-
-
Servicefaciliteter
-
Bad/toilet
-
Bruser
-
Dobbeltseng
-
Dyr ikke tilladt
-
Enkeltseng
-
Håndklæder
-
Hårtørrer
-
Ikke-rygere
-
Internet - WiFi
-
Kabel/Sat
-
Kaffemaskine
-
Køleskab
-
Opvaskemaskine
-
Ovn
-
Radio
-
Sengetøj
-
Separat køkken
-
Sikkerheds boks
-
Strygebræt
-
Toaster
-
TV
-
WC-toilet
-
Miniferie
Der er begrænset mulighed for miniferie hele året, typisk uden for højsæsonen.
Priser og kalender
Kalender
Varighed
Personer
Pris
Periode
- Ankomst
- Afrejse
- Varighed
- 1 uge
Personer
Ingen personer er valgt
Bemærk
Ankomst er ikke valgt.
Der er ikke valgt personer.