Ferielejlighed - 6 personer - Südstrand - 18609 - Binz (Ostseebad) Ot Prora

6 personer
Emne nr.: 552-220881
  • Soverum 2
  • Badeværelser 2
  • Boligareal 90 m²
  • Husdyr Ikke tilladt
  • Tilbyder miniferie Ja
  • Afstand vand 50 m
  • Afstand indkøb 800 m
  • Internet Ja
  • Parabol/kabel TV Ja
  • Handicapvenligt Ja
  • Udsigt til vand Ja
  • Opvaskemaskine Ja
  • Ikkeryger Ja
  • Ladestander til elbil Ja

Beskrivelse

Beskrivelsen foreligger desværre ikke på Dansk. Se teksten på Tysk nedenfor, eller se den maskinoversatte tekst på Dansk.
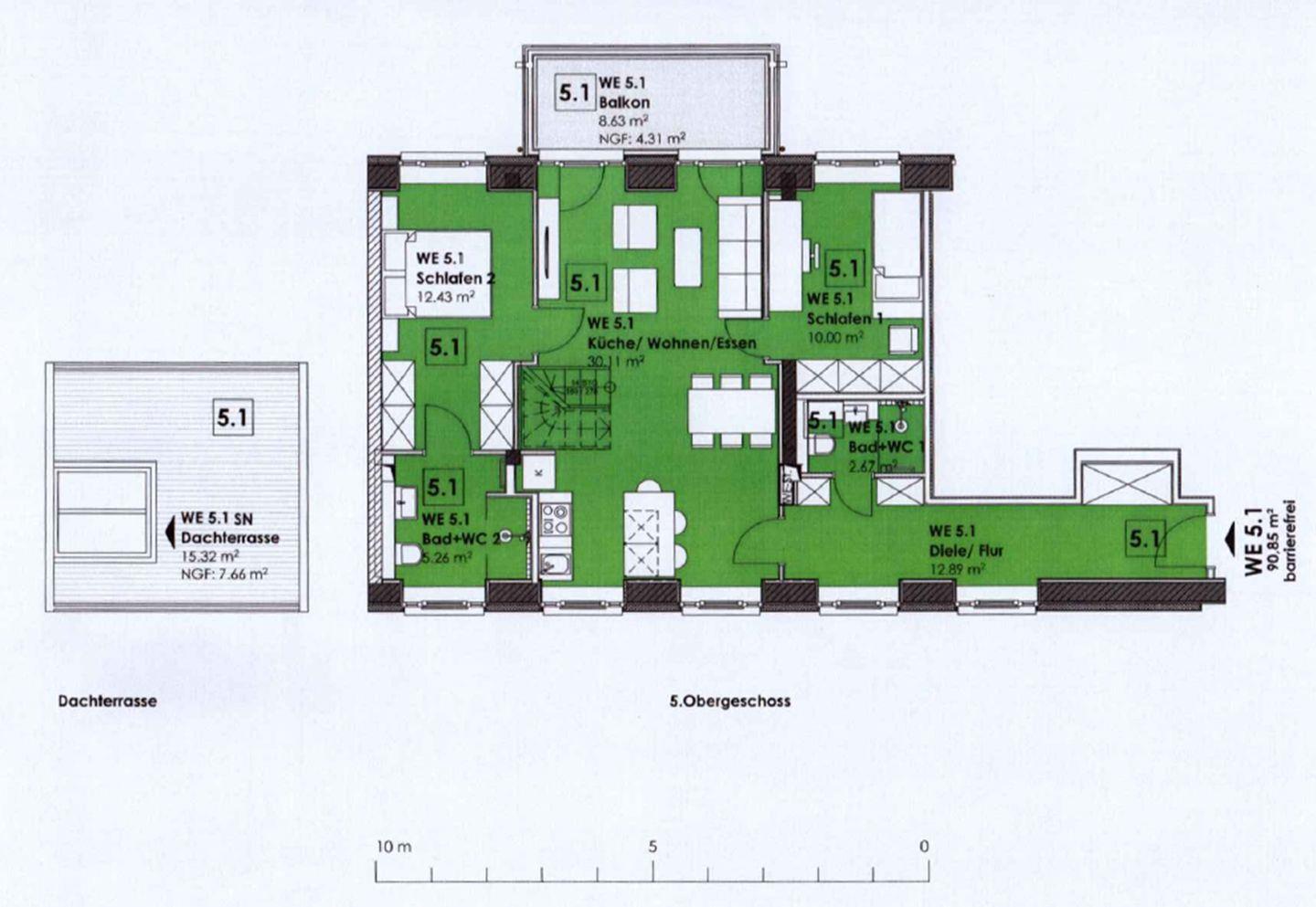
Große 90 m² FeWo im Dachgeschoss mit Panorama-Dachterrasse

Im Haus Zudar erwartet dich eine helle Ferienwohnung nur 50 m vom Meer entfernt. Zwei Schlafzimmer, ein offener Wohnbereich und ein Balkon mit eigenem Strandkorb öffnen den Blick über Dünen und Wasser. Oben bietet die Dachterrasse ein 360°-Panorama. Zwei Bäder, warme Böden, WLAN und der direkte Weg zum Strand begleiten deinen Aufenthalt. Ein Parkplatz steht bereit.

Haus Zudar, 1 Parkplatz Die Räume im Einzelnen: - Schlafzimmer 1: Doppelbett (160x200), TV - Schlafzimmer 2: Doppelbett (160x200), TV - Wohn/Essbereich: Schlafsofa (140x200), Sitzbereich, Essbereich, TV, Zugang zum Balkon - Balkon mit Sitzmöglichkeit, eigne Strandkorb - Vollausgestattete Küche: Kaffeemaschine mit Filter - Dachterrasse: Sitzmöglichkeit mit 360 Grad Panorama - Badezimmer 1: Regendusche, WC, Haartrockner - Badezimmer 2: Badewanne, WC, Haartrockner, Waschmaschine - Aussicht: Dünenlandschaft, Blick Richtung Meer - W-LAN inkl. - Fußbodenheizung - direkter Strandzugang Unser Haus Zudar entwickelt seinen ganz eigenen Charme zur Nähe der in Backstein gehaltenen "Roten Mauer". Hier ist der erste Teil des kilometerlangen Sandstrandes, welcher von Binz nach Prora führt, zu Ende, bevor es nach der "Roten Mauer" wieder weitergeht. Im Haus Zudar befindet sich ein Durchgang zum Strand für unsere Badegäste und für unsere Tierliebhaber geht es direkt weiter an den Hundestrand. Anmerkungen: - Rauchen ist nicht gestattet - Haustiere sind nicht erlaubt Zusätzliche Dienstleistungen, die vor Ort verfügbar sind und bei Bedarf beim Check-In oder später gebucht werden können: 1. Extra Bettwäsche 2. Extra Handtücher 3. Bettwäsche und Handtücher Wechsel während Ihres Aufenthaltes 4. Kinder-Hochstuhl 5. Kinder-Reisebett 6. Strandtücher 7. Zwischenreinigung In größeren Mengen, bitten wir vorab, bei Ihrer Buchung, um eine entsprechende Information. - Private Dachterrasse

Raumaufteilung

  • Schlafzimmer, 2 Personen
    • Kleiderschrank
    • Doppelbett
  • Schlafzimmer, 2 Personen
    • Kleiderschrank
    • Doppelbett
  • Wohnzimmer, 2 Personen
    • Kleine Doppelcouch

Vores gæsteanmeldelser Eksterne anmeldelser

Ingen gæsteanmeldelser
5,0
9 eksterne anmeldelser
5,0
februar 2026
4,7
Generel:
Leider etwas Pech mit der Badewanne der Stopfen war kaputt. Trotz allem eine wunderschöne Wohnung sauber und gepflegt. Komplett ausgestattet ?wir hätten net so viel mitnehmen müssen. Für die Kids sind Bücher und etwas zum spielen da. Dachterrasse schöne Aussicht. Wir werden nächstes Jahr ... wieder hin fahren. weiterlesen
5,0
Generel:
Wunderschöne, sehr saubere Wohnung mit toller Ausstattung in einer top Lage… ?
5,0
5,0
5,0
Generel:
Die Schlafzimmer sollten über eine Verdunklungsmöglichkeit (Vorhänge/dunkle Rollos) verfügen. Die Türklinke im Zugang zur Dachterrasse war teilweise sehr heiß.
5,0
5,0
Generel:
Bei längerem Aufenthalt Seife im Vorratsschrank lagern, damit man selber nachfüllen kann. ... Ein Tiefkühlschrank hat noch gefehlt
5,0

Faciliteter

  • Afstand

    • Afstand indkøb
      800 m
    • Restaurant afstand
      500 m
    • Strandafstand
      50 m
    • Sø afstand
      50 m
  • Aktiviteter

    • Cykling
  • Badeværelse

    • Badekar
    • Badeværelse vindue
    • Bruseantal
      2
    • Bruser
    • Håndvask
    • Hårtørrer
    • WC
  • Grundlæggende

    • Børn velkomne
    • Ikke-ryger
    • Kvadratmeter
      90 m²
    • Værelser
      4
  • Hus

    • Brandalarm
    • CD
    • Digital TV
    • Dobbeltsenge
      2
    • Elevator
    • Familie
    • Flueskærm
    • Fuld længde spejl
    • Førstehjælpskasse
    • Garderobe
    • Handicap tilgængelig
    • Havudsigt
    • HIFI
    • Internet
    • Komfur
    • Lounge siddepladser
    • Lænestol
    • Makeup spejl
    • Mulighed for mørklægning af rummet
    • Persienner
    • Radiator
    • Radio
    • Røgalarm
    • Senge
      6
    • Skoskab
    • Skænk
    • Sofa
    • Sovesofaer
      1
    • Sovesofaer til én
      1
    • Spejl
    • Spil
    • Spisebord
    • Spisepladser
    • Spisestue
    • Strandudsigt
    • Strygebræt
    • Strygejern
    • Stue
    • Støvsuger
    • Terrasse
    • TV
    • TV antal
      3
    • Udsigt over landskabet
    • Underfloor heating
    • Varmt vand
    • Vaskemaskine
    • Vasketøjsstativ
    • WiFi
  • Køkken

    • Elkedel
    • Kaffemaskine
    • Køkken
    • Køkkenredskaber
    • Køleskab
    • Mikroovn
    • Opvask
    • Opvaskemaskine
    • Ovn
    • Toaster
  • Udendørs

    • Elbil opladning
    • Havemøbler
    • Privat P-plads
    • Terrasse

Miniferie

Der er begrænset mulighed for miniferie hele året, typisk uden for højsæsonen.

Priser og kalender

Kalender

Ankomst
Næste
   Se om emnet er ledigt på den valgte dato
Ledig
Optaget
   Ankomst mulig
Varighed
Personer

Pris

Periode
Ankomst
Afrejse
Varighed
1 uge
Personer
Ingen personer er valgt

Bemærk

Ankomst er ikke valgt.
Der er ikke valgt personer.
Aftale- og lejebetingelser