Ferielejlighed - 4 personer - Südstrand - 18609 - Binz (Ostseebad) Ot Prora

4 personer
Emne nr.: 552-220876
  • Soverum 2
  • Badeværelser 2
  • Boligareal 84 m²
  • Husdyr 1
  • Tilbyder miniferie Ja
  • Afstand indkøb 800 m
  • Internet Ja
  • Opvaskemaskine Ja
  • Ikkeryger Ja

Beskrivelse

Beskrivelsen foreligger desværre ikke på Dansk. Se teksten på Tysk nedenfor, eller se den maskinoversatte tekst på Dansk.
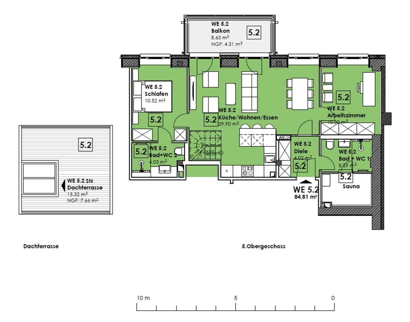
FeWo Malanya: Komfortables Dünen-Apartment 84 m² mit Dachterrasse & Meerblick

Im Haus Zudar erwartet dich eine warme, lichtvolle Ferienwohnung nur 50 m vom Meer entfernt. Zwei Schlafzimmer mit Insektenschutz, ein ruhiger Wohnbereich und ein Balkon über den Dünen begleiten deine Tage. WLAN, warme Böden und zwei Bäder schenken Komfort. Und über all dem öffnet die private Dachterrasse mit Strandkorb und Schaukel einen stillen Blick in den Himmel und aufs Meer. Ein Parkplatz ist inklusive.

Haus Zudar, 1 Parkplatz Die Räume im Einzelnen: - Schlafzimmer 1: Doppelbett (180x200), TV, Insektenschutz - Schlafzimmer 2: Doppelbett (180x200), TV, Insektenschutz - Wohnzimmer: Sofa, TV, Zugang zum Balkon - Balkon mit Sitzmöglichkeiten, Blick Richtung Meer - Vollausgestattete Küche, Kaffeemaschine mit Filter - Badezimmer 1: Regendusche, WC - Badezimmer 2: Regendusche, WC - Dachterrasse: Sonnenschirm und Sitzmöglichkeit, Strandkorb, Schaukel - Internetanschluss (WLAN) inkl. - Fußbodenheizung - Aussicht: Dünenlandschaft, Meer Highlights - private Dachterrasse Das Haus "Zudar" ist eines von 4 sogenannten Liegehäusern im Block III in Prora, welches unser bis hierher neustes "Strandjuwel" ist. Abweichend von den Regelhäusern, gibt es hier eine besonders offene Gestaltung mit einer modernen und transparenten Glasfassade zur Ostsee, sowie eine durchgängige Balkonanlage. Anmerkungen - Max. 2 Hunde sind erlaubt. - Rauchen ist nicht gestattet. Zusätzliche Dienstleistungen, die vor Ort verfügbar sind und bei Bedarf beim Check-In oder später gebucht werden können: 1. Extra Bettwäsche 2. Extra Handtücher 3. Bettwäsche und Handtücher Wechsel während Ihres Aufenthaltes 4. Kinder-Hochstuhl 5. Kinder-Reisebett 6. Strandtücher 7. Zwischenreinigung in größeren Mengen, bitten wir vorab, bei Ihrer Buchung, um eine entsprechende Information. - Strandkorb und Schaukel auf der Dachterrasse

Raumaufteilung

  • Schlafzimmer, 2 Personen
    • Kleiderschrank
    • Doppelbett
  • Schlafzimmer, 2 Personen
    • Kleiderschrank
    • Doppelbett

Vores gæsteanmeldelser Eksterne anmeldelser

Ingen gæsteanmeldelser
4,7
10 eksterne anmeldelser
4,3
Generel:
Wir waren eine Woche im August in der Ferienwohnung Malanyia und haben uns sehr wohl gefühlt. Die Betten waren bequem, die Küche gut ausgestattet, allerdings kochen wir im Urlaub nicht. Es gibt eine Kaffeefiltermaschine und sogar Filter und Kaffee sowie ein wenig Tee waren schon vorhanden. Das Sofa ... ist ein wenig durchgesessen aber wir haben uns trotzdem sehr wohl gefühlt und würden gerne wieder kommen. weiterlesen
4,7
5,0
Generel:
Wir kommen wieder….
5,0
4,3
Generel:
Wir wollten ein paar ruhige Tage „über den Dächern von Prora“ in gehobener Atmosphäre und haben keinen Tag bereut. Der Ostertrubel lag weit unter uns und so konnten wir die Annehmlichkeiten der FeWo weidlich zum entspannen nutzen. ... Mit dem freundlichen Serviceteam vor Ort konnten wir die Dinge, die nach unserer Einschätzung noch für das „Sahnehäubchen“ gefehlt haben, besprechen. weiterlesen
5,0
4,3
5,0
Generel:
Kleine Dusche: Absenkung nicht tief genug, Wasser tritt beim Duschen aus ... Küche: Topflappen empfehlenswert Dachterasse: weniger Möbel, es wirkt zu vollgestellt, es fehlte ein Sonnenschirm weiterlesen
4,7
Generel:
Die Wohnung ist super trotz der hohen Kosten der end Reinigung könnte noch mehr auf Sauberkeit geachtet werden.
5,0

Faciliteter

  • Afstand

    • Afstand indkøb
      800 m
    • Restaurant afstand
      500 m
    • Strandafstand
      50 m
  • Aktiviteter

    • Cykling
  • Badeværelse

    • Bruser
    • Hårtørrer
    • WC
  • Grundlæggende

    • Børn velkomne
    • Ikke-ryger
    • Kvadratmeter
      84 m²
    • Værelser
      3
  • Hus

    • Dobbeltsenge
      2
    • Elevator
    • Flueskærm
    • Garderobe
    • Internet
    • Komfur
    • Radiator
    • Røgalarm
    • Senge
      4
    • Spisebord
    • Støvsuger
    • Terrasse
    • TV
    • Underfloor heating
    • Varmt vand
    • WiFi
  • Køkken

    • Elkedel
    • Fryser
    • Kaffemaskine
    • Køkken
    • Køleskab
    • Mikroovn
    • Opvaskemaskine
    • Ovn
    • Toaster
  • Udendørs

    • Havemøbler
    • Privat P-plads
    • Terrasse

Miniferie

Der er begrænset mulighed for miniferie hele året, typisk uden for højsæsonen.

Priser og kalender

Kalender

Ankomst
Næste
   Se om emnet er ledigt på den valgte dato
Ledig
Optaget
   Ankomst mulig
Varighed
Personer

Pris

Periode
Ankomst
Afrejse
Varighed
1 uge
Personer
Ingen personer er valgt

Bemærk

Ankomst er ikke valgt.
Der er ikke valgt personer.
Aftale- og lejebetingelser