Bondegård - 4 personer - Osterham - 83233 - Bernau Am Chiemsee

4 personer
Emne nr.: 530-313138
  • Husdyr Ikke tilladt
  • Tilbyder miniferie Ja
  • Afstand vand 5 km
  • Internet Ja
  • Parabol/kabel TV Ja
  • Udsigt til vand Ja
  • Opvaskemaskine Ja
  • Ikkeryger Ja

Beskrivelse

Beskrivelsen foreligger desværre ikke på Dansk. Se teksten på Tysk nedenfor, eller se den maskinoversatte tekst på Dansk.
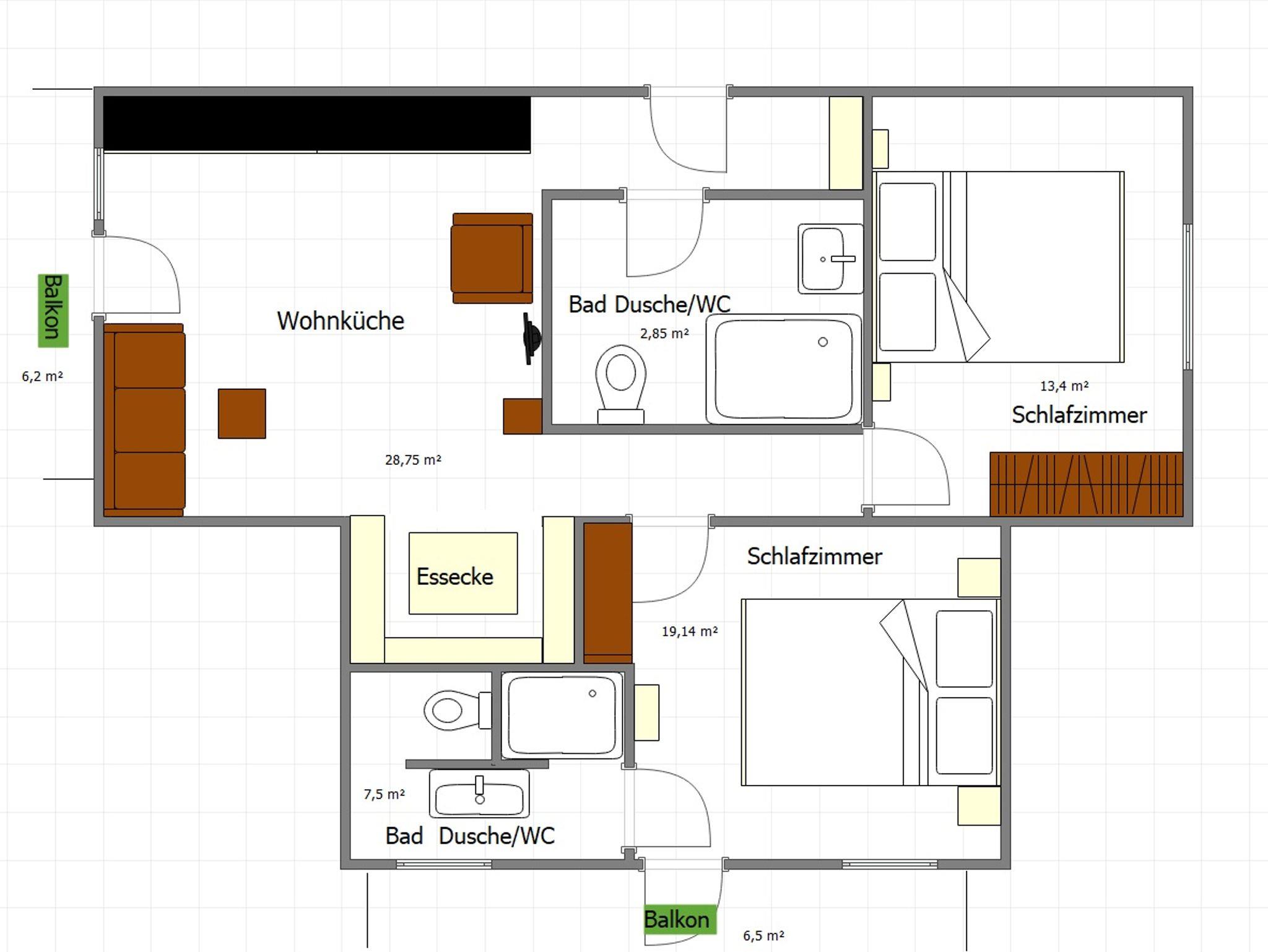
Schneiderhof Urlaub auf dem Bauernhof, Ferienwohnung 3 für 1-4 Personen (75 qm, OG)

Gepflegter, kinderfreundlicher Bauernhof in ruhiger Lage mit freiem Berg- und Seeblick. Separates Gästehaus mit Ferienwohnungen im EG und 1. Stock. Komfortable Ausstattung mit 1 oder 2 Schlafzimmern, Wohnküche, SAT-TV, DU/WC, separates WC, Balkon, Terrasse. Kinderspielplatz, Kinderbett und Hochstuhl, Tischtennis, Streicheltiere, Parkplatz am Haus, Rad- und Wanderwege ab Hof, Semmelservice, Unterstellplatz für Fahrräder, Liegewiese. In allen Wohnungen ist eine Spülmaschine vorhanden.

Konditionen

Info Kurbeitrag: Der Kurbeitrag ist im Gesamtpreis nicht enthalten. Tagesbetrag pro Person ist 1,50 Euro. Angefangene Tage gelten als volle Tage. Die Tage der An- und Abreise werden als ein Aufenthaltstag berechnet. Kinder und Jugendliche bis zum vollendeten 16. Lebensjahr sowie Inhaber eines Schwerbehindertenausweises ab 90 % Grad der Behinderung und deren notwendige Begleitpersonen sind kurbeitragsfrei. Im Kurbeitrag ist die jeweils gültige gesetzliche Mehrwertsteuer enthalten.

Die Wohnung hat ca. 75qm und liegt im 1.Stock.

Sie ist gemütliche und gut ausgestattet, mit schöner Aussicht, kostenloser Internetzugang.
Licens nr.: 270

Faciliteter

  • Afstande

    • Busstoppested
      200 m
    • By/bymidte
      1,5 km
    • Kabelbane
      5 km
    • Se
      5 km
    • Skilift
      30 km
    • Strand
      5 km
    • Togstation
      2 km
  • Aktivitetsfaciliteter

    • At stå på ski
    • Bordtennis
    • Cykelvenlig
    • Langrend
  • Børnefaciliteter

    • Familievenlig
    • Legeplads
  • Indkvartering Faciliteter

    • BBQ
    • Ikke-ryger hus
    • Internet i det offentlige område
    • Rygeområde
    • Vandrer venlig
  • Mad faciliteter

    • Brødservice
  • Omgivende faciliteter

    • Have til brug
    • Parkeringsplads
  • Servicefaciliteter

    • Balkon
    • Bruser
    • Brødservice
    • CD afspiller
    • Dyr ikke tilladt
    • Havudsigt
    • Højstol
    • Håndklæder
    • Hårtørrer
    • Ikke-rygere
    • Internet - WiFi
    • Kabel/Sat
    • Kaffemaskine
    • Komfur
    • Køleskab
    • Mikroovn
    • Mulighed for fryser
    • Opvarmet
    • Opvaskemaskine
    • Ovn
    • Radio
    • Røgalarm
    • Sengetøj
    • Separat køkken
    • Sikkerheds boks
    • Toaster
    • Toiletpapir
    • TV
    • TV - fladskærm
    • Vandvarmer
    • Vækkeur
    • WC-toilet

Miniferie

Der er begrænset mulighed for miniferie hele året, typisk uden for højsæsonen.

Priser og kalender

Kalender

Ankomst
Forrige Næste
  • april 2026
    mationtofr
    1412345
    156789101112
    1613141516171819
    1720212223242526
    1827282930
    19
  • maj 2026
    mationtofr
    18123
    1945678910
    2011121314151617
    2118192021222324
    2225262728293031
    23
   Se om emnet er ledigt på den valgte dato
Ledig
Optaget
   Ankomst mulig
Varighed
Personer

Pris

Periode
Ankomst
Afrejse
Varighed
1 uge
Personer
Ingen personer er valgt

Bemærk

Ankomst er ikke valgt.
Der er ikke valgt personer.
Aftale- og lejebetingelser