- 4 personer - Höje - Hagfors - 68495 - Höje

4 personer
Emne nr.: 172-53869
  • Soverum 2
  • Badeværelser 1
  • Boligareal 75 m²
  • Husdyr Ikke tilladt
  • Tilbyder miniferie Nej
  • Afstand vand 300 m
  • Afstand indkøb 8 km
  • Vaskemaskine Ja
  • Ikkeryger Ja

Beskrivelse

Njut av naturen vid detta vackra hus!

När du har svängt av 62an vid Vedugnsbageriet så är du nära stillheten och en mysig vistelse i Värmlands vackra natur. Den sista biten fram till huset kör du vackert omsluten av träd innan det vackra vita huset tornar upp sig.

Parkera på framsidan eller baksidan, här finns gott om plats att breda ut er på. Baksidan bjuder på en stor härlig gräsmatta perfekt för sommarens lekar. Framsidan har en fin utsikt över ängar och ner mot det gemytliga stenugnsbageriet med generösa öppettider sommartid.

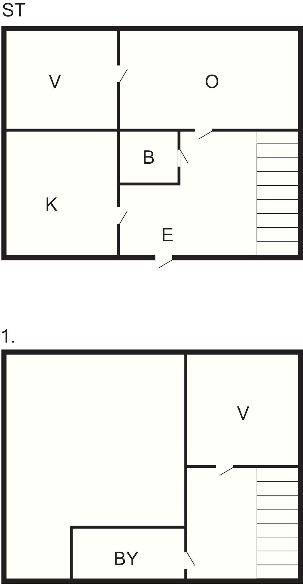
Ifrån hallen når ni husets WC, ovanvåningen, vardagsrummet samt köket. Rakt fram är det stora vardagsrummet med både soffa och fåtölj. Härifrån når ni det första sovrummet (dubbelsäng). Rummet intill är det stora rymliga köket med alla bekvämligheter som ni behöver för er vistelse. En våning upp hittar ni duschrummet med tvättmaskin samt husets andra sovrum (två enkelsängar).

Kakelugnen får dessvärre inte användas.

På gården finns det 3st brunnar som man kan vara lite extra vaksam för.

Förutom stenugnsbageriet 5 minuters promenad bort, så erbjuder denna del av Värmland många fina utflyktsmål. Bland annat ett pannkakshus 4km bort. 3 minuters bilfärd hittar ni en ekologisk gårdsbutik (öppet från midsommar).

Närhet till både Munkfors och Hagfors där alla bekvämligheter finns så som mat, restauranger och bio. Nära till flera badplatser.

1 Opholdsstue: Tv
2 Soveværelser: (2S)+(2S)
Køkken: El-komfur, ovn, køle-frys, mikroovn
Bad/wc: Wc, håndvask
1 Vaskerum: Vaskemaskine, bruser
Og: El-varme, naturgrund 2000 m2, på landet, ikke-ryger hus

Nøgleinformation
  • Nøglen til ferieboligen er til rådighed fra kl. 16:00 på indflytningsdagen.
  • Nøglen udleveres ved huset.

Faciliteter

  • Afstand

    • De også
      50 m
    • Golf
      12 km
    • Indkøb
      8 km
    • Kyst (badestrand)
      300 m
    • Parkering
      5 m
    • Restaurant
      8 km
    • 300 m
    • Ved
      8 km
  • Bad

    • Bruser
    • Håndvask
    • WC
  • Diverse

    • Antal badeværelser
      1
    • Antal soveværelser
      2
    • Boligareal
      75 m²
    • Byggeår
      1928
    • Ikke ryger
    • Nationalt tv
    • Renoveret
      2022
  • Indendørs

    • TV
    • Vaskemaskine
  • Køkken

    • El-komfur
    • Køle-frys
    • Mikroovn
    • Ovn
  • Udendørs

    • Bademuligheder fra bro

Priser og kalender

Kalender

Ankomst
Forrige Næste
  • april 2026
    mationtofr
    1412345
    156789101112
    1613141516171819
    1720212223242526
    1827282930
    19
  • maj 2026
    mationtofr
    18123
    1945678910
    2011121314151617
    2118192021222324
    2225262728293031
    23
   Se om emnet er ledigt på den valgte dato
Ledig
Optaget
   Ankomst mulig
Varighed

Pris

Periode
Ankomst
Afrejse
Varighed
1 uge
Personer
Op til 4 personer

Bemærk

Ankomst er ikke valgt.
Aftale- og lejebetingelser