Alternative emner
Sommerhus - 12 personer - Rovinj - 52210
12 personer
Emne nr.: 310-HR2500.786.1
- Soverum 6
- Badeværelser 3
- Boligareal 160 m²
- Husdyr 1
- Tilbyder miniferie Ja
- Privat swimmingpool Ja
- Internet Ja
- Brændeovn Ja
- Aircondition Ja
- Vaskemaskine Ja
- Opvaskemaskine Ja
Beskrivelse
Beskrivelsen foreligger desværre ikke på Dansk. Se teksten på Engelsk nedenfor, eller se den maskinoversatte tekst på Dansk.
This stylish light flooded holiday villa is located in the Gripole district, just outside Rovinj, and enjoys good road access.Fully enclosed modern and luxuriously furnished holiday villa, absolute privacy, with a private illuminated swimming pool, large terrace with walled wood fired oven and playground
The outside area boasts the 24m² private swimming pool which is surrounded by loungers and a sun shade. This is a great place for a nice cool down on a hot day and at night, this area becomes a romantic space where the illuminated swimming pool competes with the starry skies above. The adjacent covered terrace has a spacious outside dining area furnished with two large wooden tables and matching wooden benches providing enough seating for twelve persons. A large walled wood fired oven invites you to enjoy a barbecue get together and provides a cosy atmosphere. Plenty of firewood is available free of charge. Behind the villa there is a children’s playground. Five parking spaces are available in front of the villa.
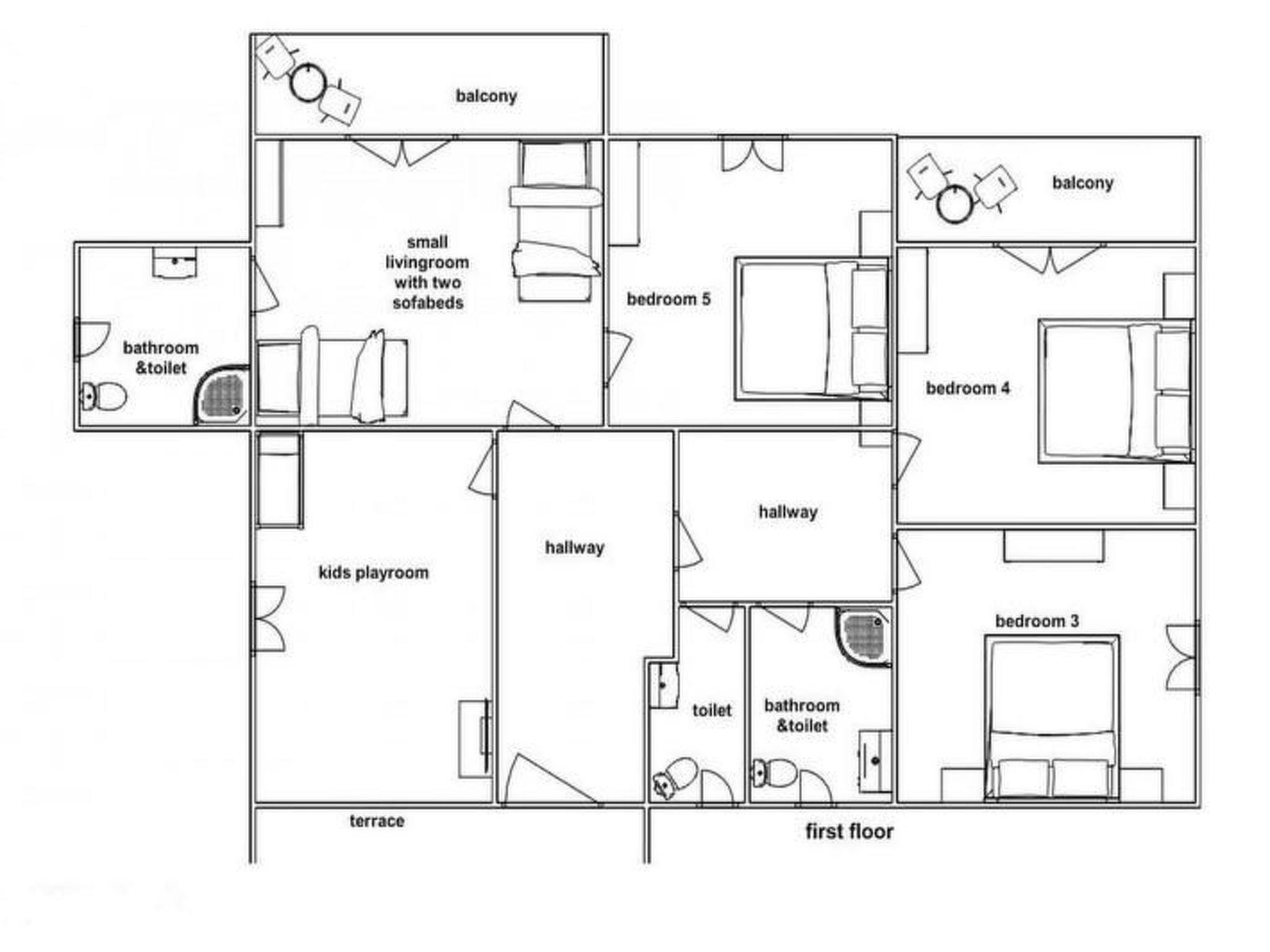
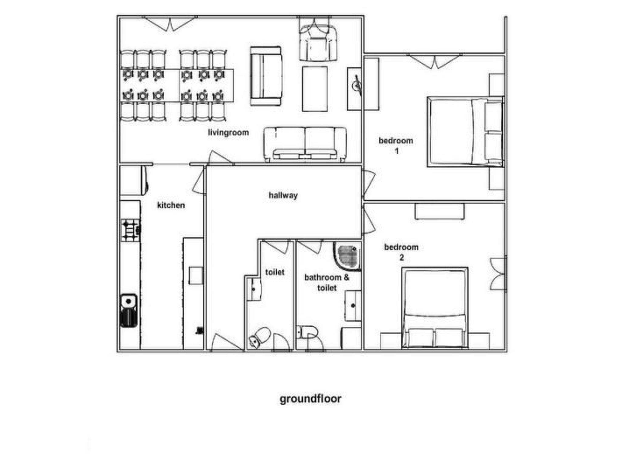
Set in a fully enclosed plot of land measuring 1100 m², the villa features 160 m² of living space and can accommodate up to 12 persons. It was built in 1975 and has only recently been renovated in 2012, when it was decorated with much attention to detail. Each room has its own identity with individual colour schemes. The villa is spread over two floors which are connected by outdoor staircases. The ground floor hosts the air conditioned living-/dining area, the kitchen, one of the three bathrooms and two of the five bedrooms. The living area has a comfortable cream leather couch with two matching armchairs, coffee table, cable and satellite TV, and DVD player. From the dining area furnished with a large wooden table and twelve chairs you can walk straight into the modern kitchen. The bright and airy kitchen is complete with fridge, oven, dishwasher, gas cooker, coffee machine, microwave and toaster. The two bedrooms are furnished with double beds (160cm x 200cm) and the bathroom, like all the bathrooms in the villa, is complete with shower, wash basin with mirror cabinet and toilet. On the first floor you will find the three remaining bedrooms with double beds (160cm x 200cm), and the two remaining bathrooms. The first floor also hosts a children’s playroom with TV and playstation and a small living room with two sofa beds offering sleeping area of 120cm x 190cm and 90cm x 190cm. The villa has two guest toilets, one on each floor. A bed for a child and a highchair are available. Internet access via WLAN is free of charge.
The nearest shopping facilities are approx. 1.6 km away from your villa, a restaurant is only 100 m away. It’s a 3km distance to the city centre and 2.5 km to the beach. The airport is 38 km away.
The landlord lives on the premises and is always happy to help with any questions you might have.
Basic information
- Pets allowed: 1
- Total number of floors in the building above the ground floor: 2
- size of property: 1100 m²
- year of construction: 1975
- Year of the last complete renovation : 2012
- Owner lives on the property
- meters above sea level: 35
- Number of bedrooms: 6
- Number of bathrooms: 3
Top features
- WiFi
- air conditioning: In part
- balcony
- terrace
- garden: For sole use
- outdoor pool
- ? for sole use
- Total of private car parking spaces: 5
- ? of which garage spaces: None
- ? of which carport spaces: None
- ? of which private outdoor parking spaces: 5
Sleeping
bedroom 11
- double bed (1.80 m width)
bedroom 14
- double bed (1.80 m width)
bedroom 17
- 2x sofa bed for 1 person
bedroom 2
- double bed (1.80 m width)
bedroom 5
- double bed (1.80 m width)
bedroom 8
- double bed (1.80 m width)
Bathroom
bathroom 2
- shower
- basin
- toilet
- daylight
bathroom 5
- shower
- basin
- toilet
- daylight
bathroom 8
- shower
- basin
- toilet
- daylight
Guest toilet (or WC)
- basin
- toilet
Guest toilet (or WC)
- 2x toilet
Sanitary facilities at the property
- shower
- basin
- toilet
- daylight
Cooking/Living
- coffee machine: coffee machine
- fridge/freezer: freezing compartment, fridge
- stove: gas hob
- oven
- toaster
- microwave
- electric kettle
- dishwasher
- number of dining tables: no
- number of seats: no
- fireplace
Entertainment
- TV: cable TV, satellite TV
- DVD player
For children
- high chair
Utility
- washing machine: For sole use in the object
- iron
Outside area
- veranda
- roof terrace
- grill/barbecue: grill/barbecue
- outside shower
Surroundings
- Grocery store: 1,6 km
- restaurant: 100 m
- train station: 87,7 km
- airport: 38,0 km
- beach: 2,5 km
Size of property: 1100m². year of construction: 1975. Owner lives on the property.
The outside area boasts the 24m² private swimming pool which is surrounded by loungers and a sun shade. This is a great place for a nice cool down on a hot day and at night, this area becomes a romantic space where the illuminated swimming pool competes with the starry skies above. The adjacent covered terrace has a spacious outside dining area furnished with two large wooden tables and matching wooden benches providing enough seating for twelve persons. A large walled wood fired oven invites you to enjoy a barbecue get together and provides a cosy atmosphere. Plenty of firewood is available free of charge. Behind the villa there is a children’s playground. Five parking spaces are available in front of the villa.
Set in a fully enclosed plot of land measuring 1100 m², the villa features 160 m² of living space and can accommodate up to 12 persons. It was built in 1975 and has only recently been renovated in 2012, when it was decorated with much attention to detail. Each room has its own identity with individual colour schemes. The villa is spread over two floors which are connected by outdoor staircases. The ground floor hosts the air conditioned living-/dining area, the kitchen, one of the three bathrooms and two of the five bedrooms. The living area has a comfortable cream leather couch with two matching armchairs, coffee table, cable and satellite TV, and DVD player. From the dining area furnished with a large wooden table and twelve chairs you can walk straight into the modern kitchen. The bright and airy kitchen is complete with fridge, oven, dishwasher, gas cooker, coffee machine, microwave and toaster. The two bedrooms are furnished with double beds (160cm x 200cm) and the bathroom, like all the bathrooms in the villa, is complete with shower, wash basin with mirror cabinet and toilet. On the first floor you will find the three remaining bedrooms with double beds (160cm x 200cm), and the two remaining bathrooms. The first floor also hosts a children’s playroom with TV and playstation and a small living room with two sofa beds offering sleeping area of 120cm x 190cm and 90cm x 190cm. The villa has two guest toilets, one on each floor. A bed for a child and a highchair are available. Internet access via WLAN is free of charge.
The nearest shopping facilities are approx. 1.6 km away from your villa, a restaurant is only 100 m away. It’s a 3km distance to the city centre and 2.5 km to the beach. The airport is 38 km away.
The landlord lives on the premises and is always happy to help with any questions you might have.
Basic information
- Pets allowed: 1
- Total number of floors in the building above the ground floor: 2
- size of property: 1100 m²
- year of construction: 1975
- Year of the last complete renovation : 2012
- Owner lives on the property
- meters above sea level: 35
- Number of bedrooms: 6
- Number of bathrooms: 3
Top features
- WiFi
- air conditioning: In part
- balcony
- terrace
- garden: For sole use
- outdoor pool
- ? for sole use
- Total of private car parking spaces: 5
- ? of which garage spaces: None
- ? of which carport spaces: None
- ? of which private outdoor parking spaces: 5
Sleeping
bedroom 11
- double bed (1.80 m width)
bedroom 14
- double bed (1.80 m width)
bedroom 17
- 2x sofa bed for 1 person
bedroom 2
- double bed (1.80 m width)
bedroom 5
- double bed (1.80 m width)
bedroom 8
- double bed (1.80 m width)
Bathroom
bathroom 2
- shower
- basin
- toilet
- daylight
bathroom 5
- shower
- basin
- toilet
- daylight
bathroom 8
- shower
- basin
- toilet
- daylight
Guest toilet (or WC)
- basin
- toilet
Guest toilet (or WC)
- 2x toilet
Sanitary facilities at the property
- shower
- basin
- toilet
- daylight
Cooking/Living
- coffee machine: coffee machine
- fridge/freezer: freezing compartment, fridge
- stove: gas hob
- oven
- toaster
- microwave
- electric kettle
- dishwasher
- number of dining tables: no
- number of seats: no
- fireplace
Entertainment
- TV: cable TV, satellite TV
- DVD player
For children
- high chair
Utility
- washing machine: For sole use in the object
- iron
Outside area
- veranda
- roof terrace
- grill/barbecue: grill/barbecue
- outside shower
Surroundings
- Grocery store: 1,6 km
- restaurant: 100 m
- train station: 87,7 km
- airport: 38,0 km
- beach: 2,5 km
Size of property: 1100m². year of construction: 1975. Owner lives on the property.
Vores gæsteanmeldelser Eksterne anmeldelser
Faciliteter
-
Afstand
-
Lufthavn PUY41,5 km
-
Lufthavn ZAG255,6 km
-
-
Husinfo
-
Aircondition
-
Antal badeværelser3
-
Antal soveværelser6
-
Antal værelser12
-
BBQ
-
Boligareal160 m²
-
Bruser
-
DVD
-
Fryser
-
Have
-
Husdyr1
-
Håndklæder gratis
-
Internet
-
Internet (DSL)
-
Internet (ISDN)
-
Køleskab
-
Linnedfri
-
Mikroovn
-
Opvaskemaskine
-
Ovn
-
Parkering overdækket
-
Pejs
-
Pool
-
Pool privat
-
Terrasse
-
Terrasse
-
Vaskemaskine
-
WLAN
-
-
Tema
-
Natteliv
-
Sol strand
-
Miniferie
Der er begrænset mulighed for miniferie hele året, typisk uden for højsæsonen.
Priser og kalender
Kalender
Varighed
Pris
Periode
- Ankomst
- Afrejse
- Varighed
- 1 uge
Personer
Op til 12 personer
Bemærk
Ankomst er ikke valgt.