Alternative emner
Ferielejlighed - 4 personer - 73600 - Les Belleville
4 personer
Emne nr.: 357-FR-73600-189
- Soverum 1
- Badeværelser 1
- Boligareal 25 m²
- Husdyr Ikke tilladt
- Tilbyder miniferie Nej
- Opvaskemaskine Ja
Beskrivelse
VAL THORENS leje: Studio til 4 personer i et livligt område / LES NEVES
Bolig:
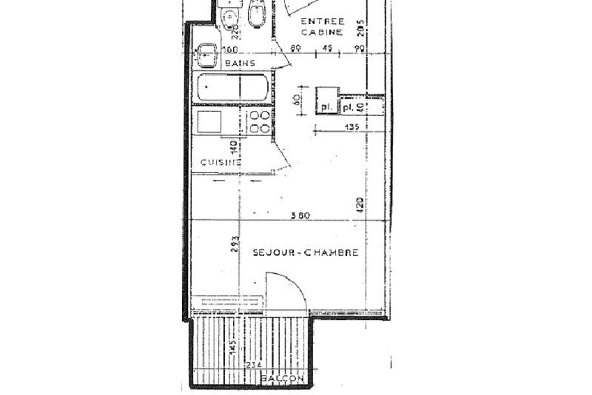
Højt over det pulserende feriested Val Thorens tilbyder dette hyggelige studie i LES NEVES-residensen en plads på første række til den livlige alpine energi. Beliggende i hjertet af aktiviteten, er ejendommen omgivet af barer, natklubber og det travle Péclet-indkøbscenter, hvilket sikrer en dynamisk atmosfære for dem, der søger en spændende ferie. Fra din sydvestvendte balkon kan du nyde udsigten over feriestedet og de livlige gader nedenfor, oplyst af charmen ved denne verdensberømte skisportssted. Dette er det perfekte tilflugtssted for rejsende, der trives i summen af ??afterski og natteliv. Det kompakte, men gennemtænkte studie på 25 m² har komfortabel plads til op til fire gæster. Entréhallen har to køjesenge, mens mezzanin-sengen i opholdsstuen skaber en smart udnyttelse af pladsen med en spiseplads gemt pænt nedenunder. Det åbne køkken er udstyret med mikrobølgeovn og opvaskemaskine, hvilket gør det nemt at tilberede måltider efter en dag på pisterne. Brusebadet har et toilet, hvilket sikrer bekvemmelighed under dit ophold. Bemærk venligst, at sengelinned, håndklæder og slutrengøring ikke er inkluderet og skal reserveres på forhånd. Med pisterne kun 50 meter væk har du ubesværet adgang til noget af det bedste skiløb i verden. Ejendommens førsteklasses beliggenhed giver dig mulighed for at træde ud og straks fordybe dig i Val Thorens' pulserende natteliv og restauranter. Uanset om du er på pisterne eller nyder afterskiing-festlighederne, placerer dette studie dig i hjertet af det hele. For dem, der søger en energisk alpin flugt, tilbyder LES NEVES den ideelle base for at opleve spændingen ved Val Thorens. Fra sin uovertrufne beliggenhed til sit hyggelige interiør er denne ejendom perfekt til eventyrlystne rejsende, der ønsker at få mest muligt ud af deres tid i bjergene.
Bolig:
Højt over det pulserende feriested Val Thorens tilbyder dette hyggelige studie i LES NEVES-residensen en plads på første række til den livlige alpine energi. Beliggende i hjertet af aktiviteten, er ejendommen omgivet af barer, natklubber og det travle Péclet-indkøbscenter, hvilket sikrer en dynamisk atmosfære for dem, der søger en spændende ferie. Fra din sydvestvendte balkon kan du nyde udsigten over feriestedet og de livlige gader nedenfor, oplyst af charmen ved denne verdensberømte skisportssted. Dette er det perfekte tilflugtssted for rejsende, der trives i summen af ??afterski og natteliv. Det kompakte, men gennemtænkte studie på 25 m² har komfortabel plads til op til fire gæster. Entréhallen har to køjesenge, mens mezzanin-sengen i opholdsstuen skaber en smart udnyttelse af pladsen med en spiseplads gemt pænt nedenunder. Det åbne køkken er udstyret med mikrobølgeovn og opvaskemaskine, hvilket gør det nemt at tilberede måltider efter en dag på pisterne. Brusebadet har et toilet, hvilket sikrer bekvemmelighed under dit ophold. Bemærk venligst, at sengelinned, håndklæder og slutrengøring ikke er inkluderet og skal reserveres på forhånd. Med pisterne kun 50 meter væk har du ubesværet adgang til noget af det bedste skiløb i verden. Ejendommens førsteklasses beliggenhed giver dig mulighed for at træde ud og straks fordybe dig i Val Thorens' pulserende natteliv og restauranter. Uanset om du er på pisterne eller nyder afterskiing-festlighederne, placerer dette studie dig i hjertet af det hele. For dem, der søger en energisk alpin flugt, tilbyder LES NEVES den ideelle base for at opleve spændingen ved Val Thorens. Fra sin uovertrufne beliggenhed til sit hyggelige interiør er denne ejendom perfekt til eventyrlystne rejsende, der ønsker at få mest muligt ud af deres tid i bjergene.
Faciliteter
-
Andre
-
Hårtørrer
-
Radiator
-
Terrasse
-
-
Byggestatus
-
Ferielejlighed
-
-
Fritids aktiviteter
-
Skiing
-
-
Generel Information
-
Boligareal25 m²
-
Opvaskemaskine
-
TV
-
-
Køkkenudstyr
-
Elkedel
-
Fade og bestik
-
Kaffemaskine
-
Opvaskemaskine
-
Toaster
-
-
Rundt om huset
-
Elevator
-
-
Type
-
Ferielejlighed
-
-
Værelsesudstyr
-
TV
-
Priser og kalender
Kalender
Varighed
Pris
Periode
- Ankomst
- Afrejse
- Varighed
- 1 uge
Personer
Op til 4 personer
Bemærk
Ankomst er ikke valgt.