Alternative emner
Ferielejlighed - 4 personer - 73600 - Les Belleville
4 personer
Emne nr.: 357-FR-73600-174
- Soverum 1
- Badeværelser 1
- Boligareal 25 m²
- Husdyr 7
- Tilbyder miniferie Nej
Beskrivelse
Feriehus i Val Thorens tæt på skiløjper
Bolig:
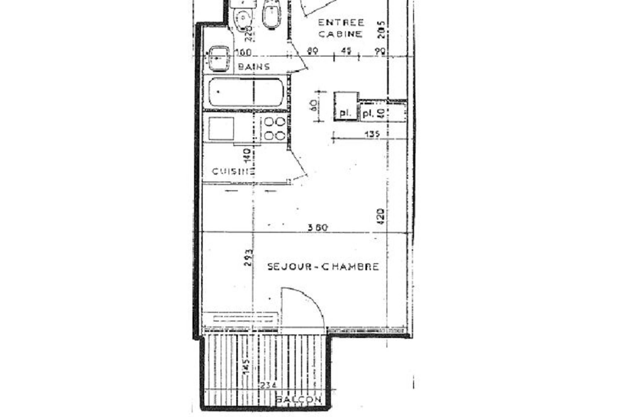
Højt over det pulserende hjerte af Val Thorens tilbyder dette hyggelige studie i LES NEVES-residensen et dynamisk alpint ophold for dem, der søger spænding og bekvemmelighed. Beliggende kun 50 meter fra pisterne er det den perfekte base for skientusiaster, der er ivrige efter at få mest muligt ud af det verdensberømte skiområde Les Trois Vallées. Med Péclet-indkøbscentret lige på den anden side af gaden og et livligt natteliv lige uden for døren er denne beliggenhed ideel for rejsende, der trives i summen af ??et travlt feriested. Dette 25 m² store studie, der ligger på anden sal, har en charmerende nord-/østvendt balkon, hvor du kan nyde morgensolen, mens du nyder en varm kaffe. Rummet er gennemtænkt designet med en funktionel indretning, herunder et åbent køkken udstyret med køleskab, ovn og opvaskemaskine. Entréhallen tilbyder to køjesenge, mens stue-/spisestuen har en udtræksseng og en hyggelig spisekrog, hvilket skaber et indbydende rum at slappe af efter en dag på pisterne. Et separat toilet og badeværelse bidrager til bekvemmeligheden ved dette kompakte, men komfortable tilflugtssted. Træd udenfor, og du finder alt, hvad du behøver, inden for rækkevidde. Fra supermarked og butikker til et udvalg af restauranter og afterski-muligheder sikrer Péclet-indkøbscentret, at du aldrig er langt fra begivenhedernes centrum. For dem, der elsker nattelivet, lover de nærliggende barer og natklubber aftener fyldt med energi og underholdning. Uanset om du er her for at grave dig gennem frisk puddersne, udforske den pulserende feriestedsatmosfære eller blot nyde den betagende udsigt over alperne, er dette studie din indgang til en uforglemmelig Val Thorens-oplevelse. Bemærk venligst, at denne livlige beliggenhed måske ikke er egnet til familier, men det er et paradis for både eventyrere og festdeltagere.
Bolig:
Højt over det pulserende hjerte af Val Thorens tilbyder dette hyggelige studie i LES NEVES-residensen et dynamisk alpint ophold for dem, der søger spænding og bekvemmelighed. Beliggende kun 50 meter fra pisterne er det den perfekte base for skientusiaster, der er ivrige efter at få mest muligt ud af det verdensberømte skiområde Les Trois Vallées. Med Péclet-indkøbscentret lige på den anden side af gaden og et livligt natteliv lige uden for døren er denne beliggenhed ideel for rejsende, der trives i summen af ??et travlt feriested. Dette 25 m² store studie, der ligger på anden sal, har en charmerende nord-/østvendt balkon, hvor du kan nyde morgensolen, mens du nyder en varm kaffe. Rummet er gennemtænkt designet med en funktionel indretning, herunder et åbent køkken udstyret med køleskab, ovn og opvaskemaskine. Entréhallen tilbyder to køjesenge, mens stue-/spisestuen har en udtræksseng og en hyggelig spisekrog, hvilket skaber et indbydende rum at slappe af efter en dag på pisterne. Et separat toilet og badeværelse bidrager til bekvemmeligheden ved dette kompakte, men komfortable tilflugtssted. Træd udenfor, og du finder alt, hvad du behøver, inden for rækkevidde. Fra supermarked og butikker til et udvalg af restauranter og afterski-muligheder sikrer Péclet-indkøbscentret, at du aldrig er langt fra begivenhedernes centrum. For dem, der elsker nattelivet, lover de nærliggende barer og natklubber aftener fyldt med energi og underholdning. Uanset om du er her for at grave dig gennem frisk puddersne, udforske den pulserende feriestedsatmosfære eller blot nyde den betagende udsigt over alperne, er dette studie din indgang til en uforglemmelig Val Thorens-oplevelse. Bemærk venligst, at denne livlige beliggenhed måske ikke er egnet til familier, men det er et paradis for både eventyrere og festdeltagere.
Faciliteter
-
Andre
-
Radiator
-
Terrasse
-
-
Byggestatus
-
Ferielejlighed
-
-
Fritids aktiviteter
-
Skiing
-
-
Generel Information
-
Boligareal25 m²
-
-
Køkkenudstyr
-
Elkedel
-
Fade og bestik
-
Toaster
-
-
Rundt om huset
-
Elevator
-
-
Type
-
Ferielejlighed
-
Priser og kalender
Kalender
Varighed
Pris
Periode
- Ankomst
- Afrejse
- Varighed
- 1 uge
Personer
Op til 4 personer
Bemærk
Ankomst er ikke valgt.