Alternative emner
Ferielejlighed - 4 personer - 73600 - Les Belleville
4 personer
Emne nr.: 357-FR-73600-172
- Soverum 1
- Badeværelser 1
- Boligareal 25 m²
- Husdyr Ikke tilladt
- Tilbyder miniferie Nej
- Opvaskemaskine Ja
Beskrivelse
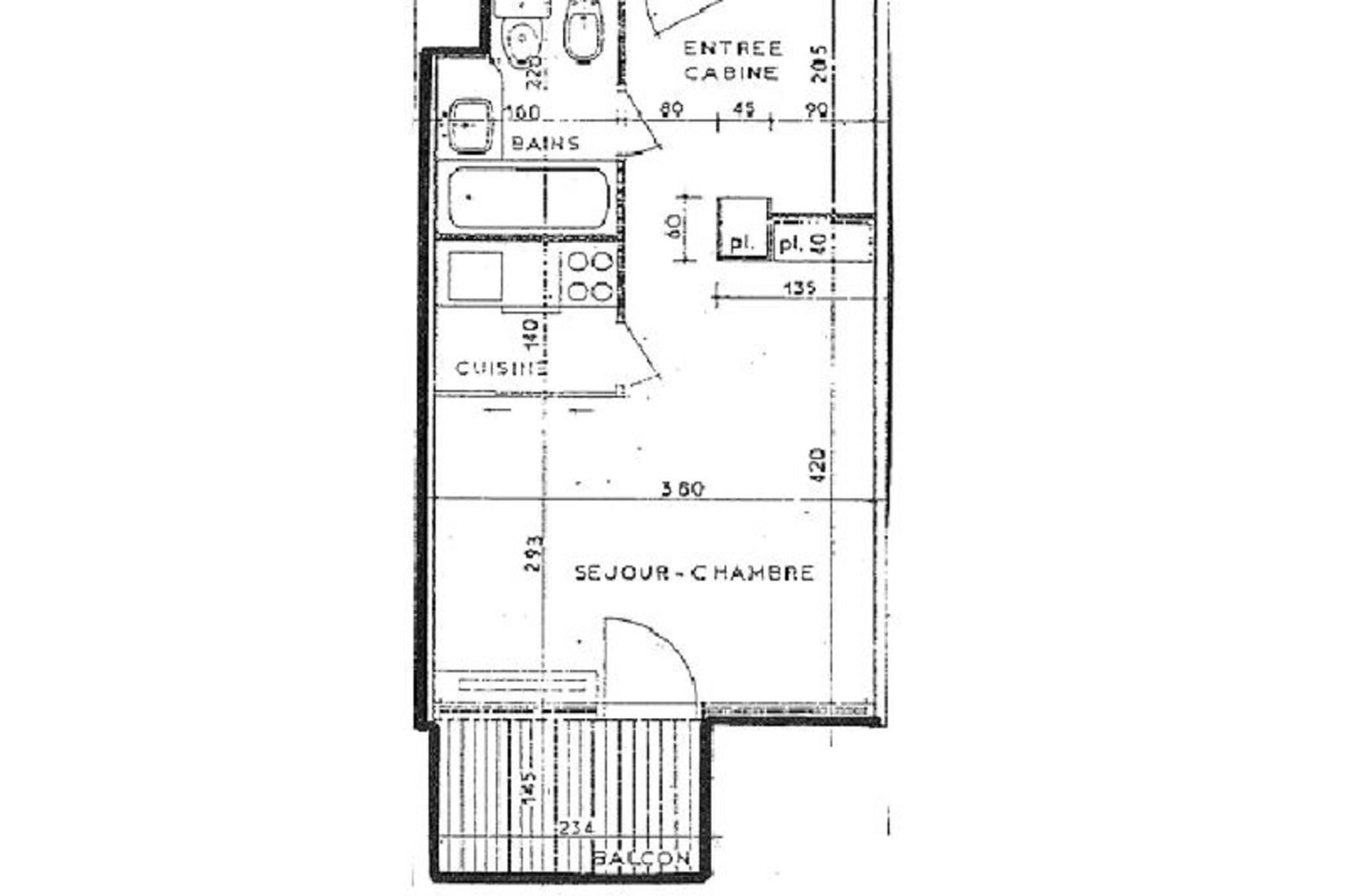
VAL THORENS lejemål: Solrig studiolejlighed til 4 personer i et livligt område (LES NEVES)
Bolig:
I hjertet af Val Thorens, hvor Alpernes pulserende energi møder charmen fra et travlt skisportssted, tilbyder dette hyggelige studie et uforglemmeligt ophold for dem, der søger eventyr og natteliv. Beliggende i LES NEVES-residensen placerer denne ejendom dig på toppen af ??resortet, omgivet af livlige barer, natklubber og lige overfor Péclet-indkøbscentret, hvor du finder supermarkeder, butikker og restauranter, der kan imødekomme alle dine behov. Fra din sydvestvendte balkon kan du nyde den dynamiske udsigt over resortet og de livlige gader nedenfor, der summer af spænding dag og nat. Dette 25 m² store studie er omhyggeligt designet til at maksimere komfort og funktionalitet. Entréhallen har to køjesenge, mens stuen tilbyder en udtræksseng, der giver plads til op til fire gæster. Køkkenet er udstyret med ovn og opvaskemaskine, hvilket gør det nemt at tilberede måltider til servering i den indbydende spisestue. Det kompakte brusebad har et toilet, der sikrer, at alle fornødenheder er dækket for et behageligt ophold. Kun 50 meter fra pisterne tilbyder boligen uovertruffen adgang til verdensklasses skiløb i Val Thorens, en del af det berømte skiområde Les Trois Vallées. Uanset om du cykler gennem frisk puddersne eller udforsker afterski-scenen, er alt inden for rækkevidde. Bemærk venligst, at denne ejendom er bedst egnet til dem, der ønsker at fordybe sig i feriestedets pulserende natteliv, da den ligger oven på barer og natklubber. For en dynamisk og spændende alpin flugt er dette studie din indgang til den ultimative Val Thorens-oplevelse. Book nu for at skabe uforglemmelige minder i en af ??de mest ikoniske skidestinationer i verden.
Bolig:
I hjertet af Val Thorens, hvor Alpernes pulserende energi møder charmen fra et travlt skisportssted, tilbyder dette hyggelige studie et uforglemmeligt ophold for dem, der søger eventyr og natteliv. Beliggende i LES NEVES-residensen placerer denne ejendom dig på toppen af ??resortet, omgivet af livlige barer, natklubber og lige overfor Péclet-indkøbscentret, hvor du finder supermarkeder, butikker og restauranter, der kan imødekomme alle dine behov. Fra din sydvestvendte balkon kan du nyde den dynamiske udsigt over resortet og de livlige gader nedenfor, der summer af spænding dag og nat. Dette 25 m² store studie er omhyggeligt designet til at maksimere komfort og funktionalitet. Entréhallen har to køjesenge, mens stuen tilbyder en udtræksseng, der giver plads til op til fire gæster. Køkkenet er udstyret med ovn og opvaskemaskine, hvilket gør det nemt at tilberede måltider til servering i den indbydende spisestue. Det kompakte brusebad har et toilet, der sikrer, at alle fornødenheder er dækket for et behageligt ophold. Kun 50 meter fra pisterne tilbyder boligen uovertruffen adgang til verdensklasses skiløb i Val Thorens, en del af det berømte skiområde Les Trois Vallées. Uanset om du cykler gennem frisk puddersne eller udforsker afterski-scenen, er alt inden for rækkevidde. Bemærk venligst, at denne ejendom er bedst egnet til dem, der ønsker at fordybe sig i feriestedets pulserende natteliv, da den ligger oven på barer og natklubber. For en dynamisk og spændende alpin flugt er dette studie din indgang til den ultimative Val Thorens-oplevelse. Book nu for at skabe uforglemmelige minder i en af ??de mest ikoniske skidestinationer i verden.
Faciliteter
-
Andre
-
Radiator
-
Terrasse
-
-
Byggestatus
-
Ferielejlighed
-
-
Fritids aktiviteter
-
Skiing
-
-
Generel Information
-
Boligareal25 m²
-
Opvaskemaskine
-
Ovn
-
TV
-
-
Køkkenudstyr
-
Elkedel
-
Fade og bestik
-
Kaffemaskine
-
Opvaskemaskine
-
Ovn
-
Toaster
-
-
Rundt om huset
-
Elevator
-
-
Type
-
Ferielejlighed
-
-
Værelsesudstyr
-
TV
-
Priser og kalender
Kalender
Varighed
Pris
Periode
- Ankomst
- Afrejse
- Varighed
- 1 uge
Personer
Op til 4 personer
Bemærk
Ankomst er ikke valgt.