Alternative emner
Ferielejlighed - 5 personer - 73550 - Les Allues
5 personer
Emne nr.: 357-FR-73550-453
- Soverum 2
- Badeværelser 1
- Boligareal 38 m²
- Husdyr Ikke tilladt
- Tilbyder miniferie Nej
- Vaskemaskine Ja
- Tørretumbler Ja
- Opvaskemaskine Ja
Beskrivelse
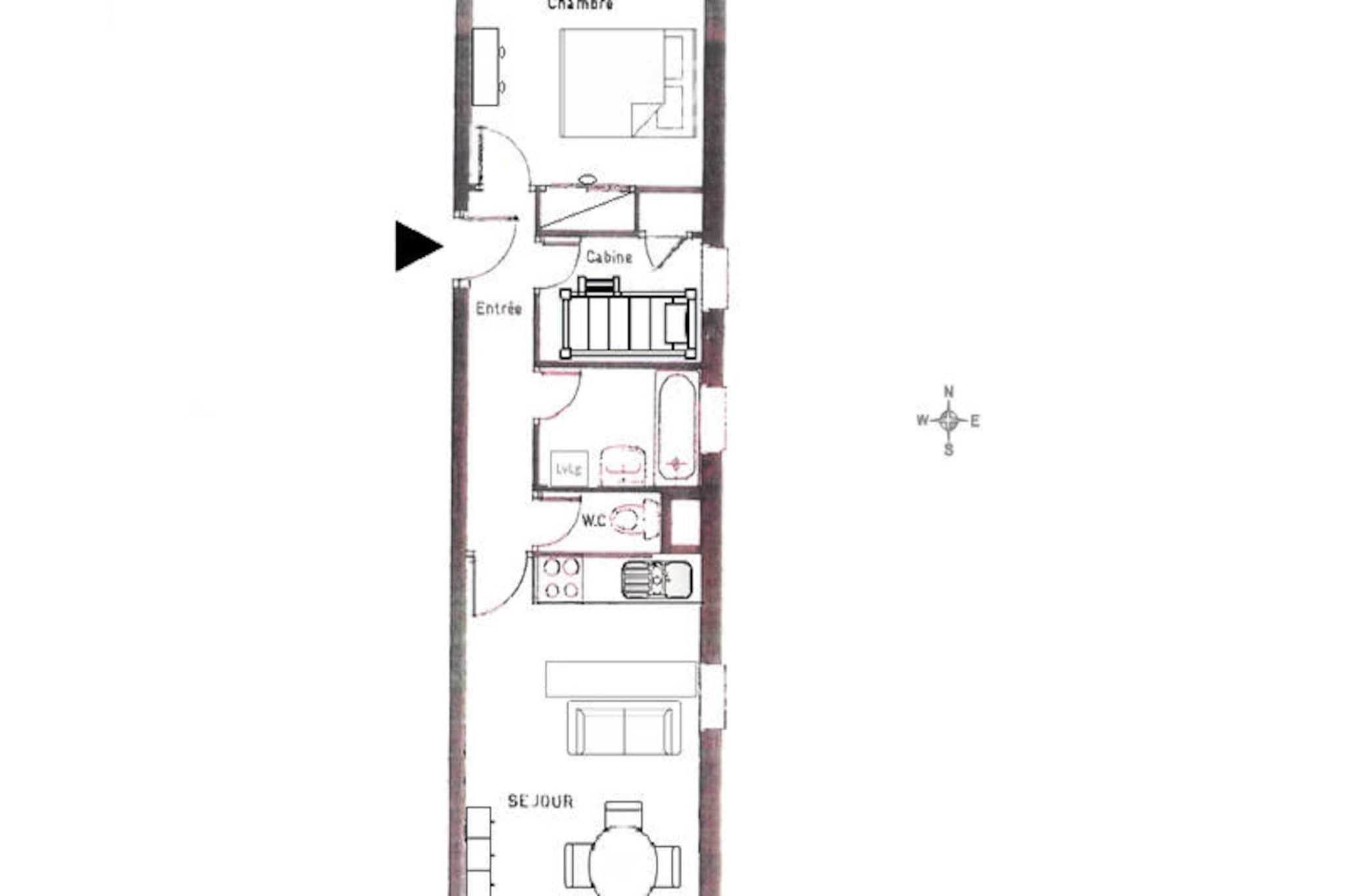
Lejlighed i Méribel med adgang til pisten
Bolig:
Højt over den maleriske Méribel-dal tilbyder dette hyggelige alpine tilflugtssted den perfekte blanding af ro og bekvemmelighed. Forestil dig at vågne op til den friske bjergluft og træde ud på din private sydvendte terrasse, hvor den betagende udsigt over de snedækkede tinder sætter tonen for en dag med eventyr. Denne lejlighed, der ligger på 4. sal i en charmerende bolig med elevator, er et paradis for dem, der søger både afslapning og spænding, lige ved foden af ??pisterne i hjertet af feriestedet. Denne lejlighed på 38 m² er omhyggeligt designet til at rumme op til fem gæster. Soveværelset har en blød dobbeltseng (160 cm), mens stuen tilbyder en komfortabel sovesofa til to (140 cm). Et hyggeligt køjesengsværelse med et sæt køjesenge (90 cm) er perfekt til børn, selvom den øverste køjeseng ikke er egnet til børn under seks år. Det fuldt udstyrede køkken inviterer dig til at tilberede solide måltider efter en dag på pisterne med elektriske kogeplader, ovn, opvaskemaskine og køleskab med fryser til rådighed. Et moderne badeværelse med badekar og separat toilet sikrer komfort og privatliv for alle gæster. Ud over lejligheden venter Méribels pulserende charme. Fra butikker og gourmetrestauranter til spændende skiløjper og naturskønne vandrestier er alt inden for rækkevidde. Ejendommen tilbyder også et skirum for din bekvemmelighed, og liftkort med rabat kan arrangeres for en endnu mere problemfri oplevelse. Om sommeren forvandles dalen til et paradis af frodig grøn natur, perfekt til mountainbiking og vandreture i naturen. Uanset om du er her for at grave dig gennem frisk puddersne eller sole dig i sommersolen, er denne lejlighed din port til uforglemmelige alpine minder. Med sin førsteklasses beliggenhed, gennemtænkte faciliteter og rolige atmosfære er det det ideelle valg til din næste bjergferie.
Bolig:
Højt over den maleriske Méribel-dal tilbyder dette hyggelige alpine tilflugtssted den perfekte blanding af ro og bekvemmelighed. Forestil dig at vågne op til den friske bjergluft og træde ud på din private sydvendte terrasse, hvor den betagende udsigt over de snedækkede tinder sætter tonen for en dag med eventyr. Denne lejlighed, der ligger på 4. sal i en charmerende bolig med elevator, er et paradis for dem, der søger både afslapning og spænding, lige ved foden af ??pisterne i hjertet af feriestedet. Denne lejlighed på 38 m² er omhyggeligt designet til at rumme op til fem gæster. Soveværelset har en blød dobbeltseng (160 cm), mens stuen tilbyder en komfortabel sovesofa til to (140 cm). Et hyggeligt køjesengsværelse med et sæt køjesenge (90 cm) er perfekt til børn, selvom den øverste køjeseng ikke er egnet til børn under seks år. Det fuldt udstyrede køkken inviterer dig til at tilberede solide måltider efter en dag på pisterne med elektriske kogeplader, ovn, opvaskemaskine og køleskab med fryser til rådighed. Et moderne badeværelse med badekar og separat toilet sikrer komfort og privatliv for alle gæster. Ud over lejligheden venter Méribels pulserende charme. Fra butikker og gourmetrestauranter til spændende skiløjper og naturskønne vandrestier er alt inden for rækkevidde. Ejendommen tilbyder også et skirum for din bekvemmelighed, og liftkort med rabat kan arrangeres for en endnu mere problemfri oplevelse. Om sommeren forvandles dalen til et paradis af frodig grøn natur, perfekt til mountainbiking og vandreture i naturen. Uanset om du er her for at grave dig gennem frisk puddersne eller sole dig i sommersolen, er denne lejlighed din port til uforglemmelige alpine minder. Med sin førsteklasses beliggenhed, gennemtænkte faciliteter og rolige atmosfære er det det ideelle valg til din næste bjergferie.
Faciliteter
-
Andre
-
Radiator
-
Terrasse
-
-
Byggestatus
-
Ferielejlighed
-
-
Fritids aktiviteter
-
Skiing
-
-
Generel Information
-
Boligareal38 m²
-
Køleskab
-
Opvaskemaskine
-
Ovn
-
TV
-
Vaskemaskine
-
-
Køkkenudstyr
-
Elkedel
-
Fade og bestik
-
Køleskab
-
Opvaskemaskine
-
Ovn
-
Toaster
-
-
Rundt om huset
-
Elevator
-
Terrasse
-
-
Sanitet / Vask
-
Tørretumbler
-
Vaskemaskine
-
-
Type
-
Ferielejlighed
-
-
Værelsesudstyr
-
Sengetøj
-
Støvsuger
-
TV
-
Priser og kalender
Kalender
Varighed
Pris
Periode
- Ankomst
- Afrejse
- Varighed
- 1 uge
Personer
Op til 5 personer
Bemærk
Ankomst er ikke valgt.