Alternative emner
Stor familieoase med pool tæt ved Vesterhavet
Sommerhus - 14 personer - Gaffelbjergvej - Vester Husby - 6990 - Ulfborg
14 personer
Emne nr.: 121-21-1092
Stort sommerhus tæt på Vesterhavet med indendørs pool, aktivitetsrum og plads til hele familien.
- Soverum 6
- Badeværelser 2
- Boligareal 253 m²
- Grundareal 5.014 m²
- Husdyr 2
- Tilbyder miniferie Ja
- Afstand vand 750 m
- Afstand indkøb 3 km
- Swimmingpool inde Ja
- Spa Ja
- Sauna Ja
- Internet Ja
- Parabol/kabel TV Ja
- Brændeovn Ja
- Aktivitetsrum Ja
- Vaskemaskine Ja
- Tørretumbler Ja
- Opvaskemaskine Ja
- Ikkeryger Ja
- Ladestander til elbil Ja
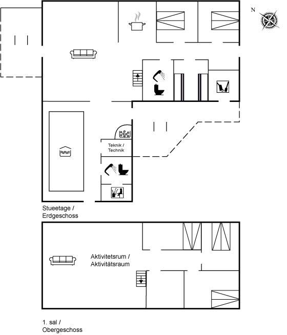
Beskrivelse
På en meget stor grund i rolige omgivelser, ikke langt fra Vesterhavet, ligger dette dejlige sommerhus med bl.a. swimmingpool og aktivitetsrum. Huset er bygget i 2 plan og råder over hele 6 soveværelser.
Indretning
Sommerhuset egner sig til 14 personer samt 1 barn op til 3 år. Ferieboligen er på 253 m², er i 2 plan, og er bygget i 1990. I 2021 gennemgik ferieboligen en delvis renovering. Det er tilladt at medbringe 2 husdyr. Ferieboligen har vaskemaskine. Tørretumbler. Frysekapacitet på 100 liter. Der er desuden brændeovn. Til de små er der 2 stk. barnestole. Puslebord.
Udenfor
Ferieboligen er beliggende på en 5014 m² stor naturgrund. Der er 750 m til havet. Nærmeste forretning er beliggende i en afstand af 3000 m. Der er en golfbane i en afstand af 17000 m. Til ferieboligen hører 30 m² terrasseareal. Der er redskabsrum. Gynge. Sandkasse. Der er installeret stik til opladning af elbil. CEE stik. Parkering ved ferieboligen.
Swimmingpool
I den indendørs swimmingpool med vandrutsjebane er der mulighed for leg og hyggeligt samvær. Swimmingpoolen måler op til 3,2 m i bredden, 6,3 m i længden og den er op til 1,2 m dyb. Vandet er mellem 24 og 28° C varmt. Der er gulvvarme i swimmingpoolområdet.
Aktivitetsrum
I aktivitetsrummet er der følgende udstyr: Billard. Bordfodbold.
Soveforhold
Der er i alt 6 soveværelser. Sovepladserne fordeler sig på: 10 sovepladser i dobbeltsenge. 4 sovepladser i køjesenge. Derudover er der 1 stk. barneseng.
Køkken
Køkkenet er udstyret med 2 køleskabe. Der er 4 keramiske kogeplader, varmluftovn, mikrobølgeovn samt opvaskemaskine.
Toilet og bad
Der er 2 badeværelser med bruseniche og 2 toiletter. Der er gulvvarme på 2 badeværelser. I saunaen er der mulighed for afslapning.
Spa
Der er mulighed for afslapning i indendørs spa til 4 personer.
Multimedier
I ferieboligen er der 2 TV. Radio. CD-afspiller. Playstation 2. Der er mindst 4 danske kanaler. Der er trådløst internet til rådighed.
Værd at vide
Der er installeret CEE stik til opladning af elbiler ved huset. Ingen udlejning til ungdomsgrupper, hvor alle er 15-25 år. Rygning ikke tilladt. Ved overtrædelse af forbuddet opkræves et gebyr på minimum DKK 3.000,-.
Indretning
Sommerhuset egner sig til 14 personer samt 1 barn op til 3 år. Ferieboligen er på 253 m², er i 2 plan, og er bygget i 1990. I 2021 gennemgik ferieboligen en delvis renovering. Det er tilladt at medbringe 2 husdyr. Ferieboligen har vaskemaskine. Tørretumbler. Frysekapacitet på 100 liter. Der er desuden brændeovn. Til de små er der 2 stk. barnestole. Puslebord.
Udenfor
Ferieboligen er beliggende på en 5014 m² stor naturgrund. Der er 750 m til havet. Nærmeste forretning er beliggende i en afstand af 3000 m. Der er en golfbane i en afstand af 17000 m. Til ferieboligen hører 30 m² terrasseareal. Der er redskabsrum. Gynge. Sandkasse. Der er installeret stik til opladning af elbil. CEE stik. Parkering ved ferieboligen.
Swimmingpool
I den indendørs swimmingpool med vandrutsjebane er der mulighed for leg og hyggeligt samvær. Swimmingpoolen måler op til 3,2 m i bredden, 6,3 m i længden og den er op til 1,2 m dyb. Vandet er mellem 24 og 28° C varmt. Der er gulvvarme i swimmingpoolområdet.
Aktivitetsrum
I aktivitetsrummet er der følgende udstyr: Billard. Bordfodbold.
Soveforhold
Der er i alt 6 soveværelser. Sovepladserne fordeler sig på: 10 sovepladser i dobbeltsenge. 4 sovepladser i køjesenge. Derudover er der 1 stk. barneseng.
Køkken
Køkkenet er udstyret med 2 køleskabe. Der er 4 keramiske kogeplader, varmluftovn, mikrobølgeovn samt opvaskemaskine.
Toilet og bad
Der er 2 badeværelser med bruseniche og 2 toiletter. Der er gulvvarme på 2 badeværelser. I saunaen er der mulighed for afslapning.
Spa
Der er mulighed for afslapning i indendørs spa til 4 personer.
Multimedier
I ferieboligen er der 2 TV. Radio. CD-afspiller. Playstation 2. Der er mindst 4 danske kanaler. Der er trådløst internet til rådighed.
Værd at vide
Der er installeret CEE stik til opladning af elbiler ved huset. Ingen udlejning til ungdomsgrupper, hvor alle er 15-25 år. Rygning ikke tilladt. Ved overtrædelse af forbuddet opkræves et gebyr på minimum DKK 3.000,-.
Vores gæsteanmeldelser Eksterne anmeldelser
Faciliteter
-
Adgang til ferieboligen
-
Nøgleboks med kode
-
-
Aktivitetsrum
-
Aktivitetsrum
-
Billard
-
Bordfodbold
-
-
Bemærk
-
Aktivitetshus
-
Ingen håndværkere efter anmodning
-
Ingen ungdomsgrupper efter anmodning
-
Rygning er forbudt
-
-
Indretning
-
2 niveauer
-
Antal børn (0-3 år)1
-
Antal voksne inkl. 4-11 år14
-
Bebygget areal253 m²
-
Brændeovn1
-
Byggeår1990
-
Feriebolig
-
Frysekapacitet (antal liter)100
-
Husdyr2
-
Højstol2
-
Puslebord
-
Renoveringsår2021
-
Tørretumbler1
-
Vaskemaskine1
-
-
Køkken
-
Antal keramiske kogeplader4
-
Køleskab2
-
Mikrobølgeovn1
-
Opvaskemaskine1
-
Varmluftovn1
-
-
Multimedier
-
> 3 danske kanaler
-
Antal tv'er2
-
CD afspiller
-
Download100
-
Playstation 2
-
Radio
-
Trådløst internet
-
Upload100
-
-
Soveforhold
-
Antal soveværelser6
-
Barneseng1
-
Dobbeltseng (antal sovepladser)10
-
Køjeseng (antal sovepladser)4
-
-
Spa
-
Indendørs spabad (antal personer)4
-
-
Swimmingpool
-
Gulvvarme
-
Indendørs swimmingpool
-
Svømmebassinets bredde3,2
-
Svømmebassinets dybde1,2
-
Svømmebassinets længde6,3
-
-
Toilet og bad
-
Antal badeværelser2
-
Antal toiletter2
-
Brusekabine
-
Gulvvarme2
-
Sauna
-
-
Udenfor
-
Butik3 km
-
CEE fatning
-
Elbil hjemmeoplader
-
Golfbane17 km
-
Hav750 m
-
Natursted
-
Parkeringsplads ved huset
-
Redskabsskur
-
Sandkasse
-
Størrelse af grunden5014 m²
-
Swing
-
Terrasse30 m²
-
Miniferie
Der er begrænset mulighed for miniferie hele året, typisk uden for højsæsonen.
Priser og kalender
Kalender
Varighed
Pris
Periode
- Ankomst
- Afrejse
- Varighed
- 1 uge
Personer
Op til 14 personer
Bemærk
Ankomst er ikke valgt.