Charmerende sommerhus tæt på strand og by i Tversted

Sommerhus - 6 personer - Tannisbugtvej - Tversted - 9881 - Bindslev

6 personer
Emne nr.: 102-TV1067
Hyggeligt sommerhus i Tversted med brændeovn, naturgrund og tæt på strand og byliv.
  • Soverum 3
  • Badeværelser 1
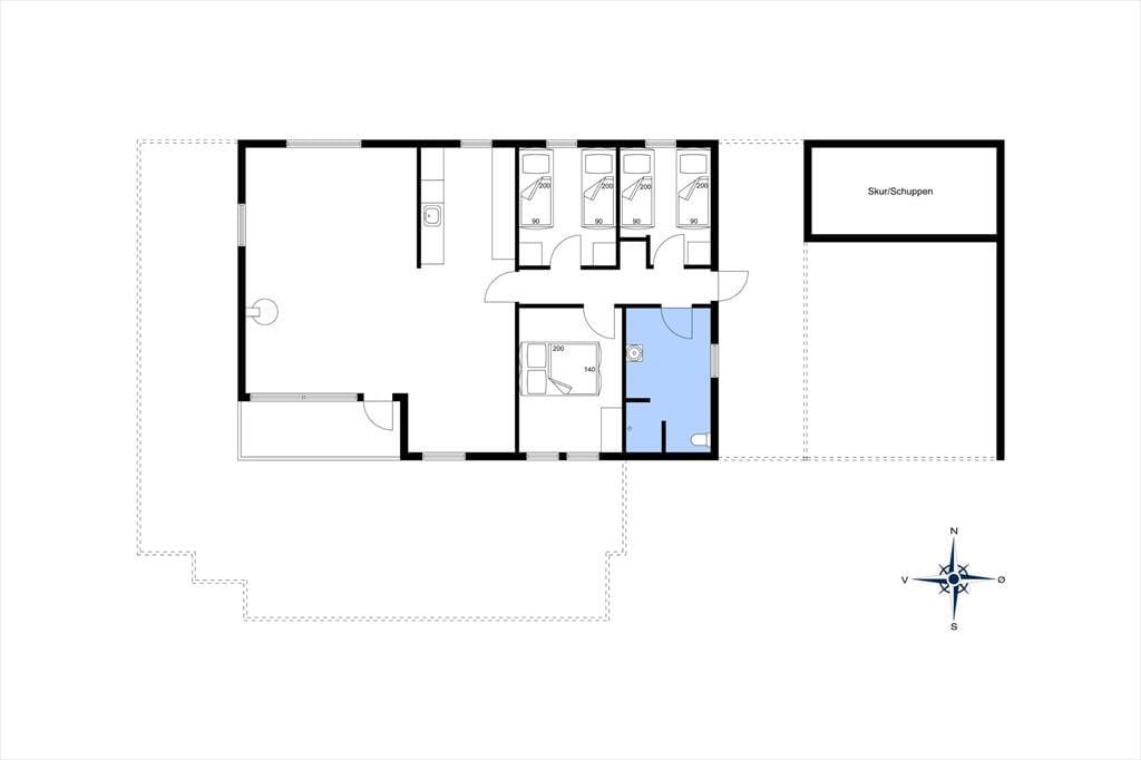
  • Boligareal 77 m²
  • Grundareal 1.365 m²
  • Husdyr Ikke tilladt
  • Tilbyder miniferie Nej
  • Afstand vand 1 km
  • Afstand indkøb 387 m
  • Highspeed internet Ja
  • Parabol/kabel TV Ja
  • Brændeovn Ja
  • Vaskemaskine Ja
  • Opvaskemaskine Ja
  • Ikkeryger Ja
  • Energivenligt Ja

Beskrivelse

Mellem klitplantagen og Vesterhavet venter dette skønne sommerhus på Tannisbugtvej 77. Her kan du nyde en afslappet ferie i hjertet af Tversted, hvor den autentiske stemning og den smukke natur sætter rammen om uforglemmelige feriedage.

Velkommen indenfor
Når du træder ind i sommerhuset, mærker du straks den varme og hyggelige atmosfære, der inviterer til afslapning. Det åbne opholdsrum er samlingspunktet for hele familien, hvor køkken, spiseplads og stue går op i en højere enhed. Med brændeovnen tændt, lyden af popcorn, der popper, og udsigten til naturen gennem de store vinduer er det let at finde sig til rette. Soveværelserne er lyse og indbydende, og de lover gode nætter med masser af ro, så du er klar til nye eventyr, når solen står op over klitterne.

Nyd livet udenfor
Huset ligger på en ugeneret naturgrund, hvor klitter og træer skaber perfekte rammer for afslappede stunder under åben himmel. På terrassen kan du nyde morgenkaffen til fuglesang eller samle familien om grillen, når de lyse sommeraftener kalder på hyggelige måltider. Græsplænen inviterer til boldspil, leg og afslapning, og med en udendørs bruser kan du skylle sandet af efter en tur på stranden, der kun ligger en kort gåtur væk.

Kom tæt på de lokale oplevelser
Fra sommerhuset har du kun få minutters gang til både Tversted Strand og byens hyggelige centrum. Iskioskernes kølige lækkerier, de lokale spisesteder og butikkerne bidrager til den helt særlige feriestemning, som Tversted er kendt for. Hvis du søger eventyr, ligger Tversted Klitplantage lige om hjørnet med masser af stier til cykel- og gåture, og du kan nemt tage på dagsudflugter til Skagen eller Hirtshals for at opleve attraktioner som Ørnereservatet og Nordsøen Oceanarium.

Husk, at du altid kan låne trækvogne, barnestole og barnesenge hos os i Tversted. Du kan hente dem direkte på bureauet og returnere dem til os igen, når din ferie er vel overstået.


Rumindretning

  • Soveværelse
    • Enkelt seng - 90x200
    • Enkelt seng - 90x200
  • Soveværelse
    • Enkelt seng - 90x200
    • Enkelt seng - 90x200
  • Soveværelse
    • Dobbeltseng - 140x200
  • Badeværelse
  • Køkken
  • Stue

Vores gæsteanmeldelser Eksterne anmeldelser

4,0
Baseret på 1 vurdering
Vurderet d. 14-09-2025
5
(0)
4
(1)
3
(0)
2
(0)
1
(0)
Kommentarer
Ingen vurderinger har kommentarer på dansk
1 vurdering har kommentar på et andet sprog.

Faciliteter

  • Hus Info

    • Antal voksne
      6
    • Bruser
    • Byggeår
      1976
    • Grundareal / Have
      1365 m²
    • Husareal
      77 m²
    • Renoveringsår
      2000
    • WC
  • Afstande

    • Afstand golfbane
      9,1 km
    • Afstand indkøb / Helårsbutik
      387 m
    • Afstand restaurant
      505 m
    • Afstand strand / Sandstrand
      1 km
  • Energi / Opvarmning

    • Brændeovn
    • Elvarme
    • Varmepumpe / Uden køl
  • Hårde hvidevarer

    • Elkedel
    • Emhætte
    • Kaffemaskine
    • Komfur
    • Køleskab med frys
      183
    • Mikroovn
    • Opvaskemaskine
    • Vaskemaskine
  • Multimedier

    • Dansk tv
      Inkl. TV2
    • Gratis Wi-Fi - Over 20 Mbit
    • Kabel-TV
    • TV
    • Tysk TV
  • Ekstra

    • Barnestol
    • Golfferie
  • Udenfor

    • Carport
    • Grill
      Kul
    • Gynge
    • Havemøbler
    • Liggestole
      2
    • Overdækket terrasse
    • Parasol
      1
    • Parkering på grunden
    • Sandkasse
    • Åben terrasse
  • Diverse

    • Affaldsforhold
      110
    • Gulvvarme
  • Regler

    • Husdyr ikke tilladt
    • Opladning af elbil ikke tilladt
    • Rygning ikke tilladt
  • Pris inklusiv

    • Slutrengøring inkl.
    • Vand inkl.
  • GAMMEL

    • CD
    • DVD
    • Radio

Priser og kalender

Kalender

Ankomst
Forrige Næste
  • juli 2026
    mationtofr
    2712345
    286789101112
    2913141516171819
    3020212223242526
    312728293031
    32
  • august 2026
    mationtofr
    3112
    323456789
    3310111213141516
    3417181920212223
    3524252627282930
    3631
   Se om emnet er ledigt på den valgte dato
Ledig
Optaget
   Ankomst mulig
Varighed

Pris

Periode
Ankomst
Afrejse
Varighed
1 uge
Personer
Op til 6 personer

Bemærk

Ankomst er ikke valgt.
Aftale- og lejebetingelser