Hyggeligt sommerhus tæt på børnevenlig strand

Sommerhus - 8 personer - Monasvej - Trend - 9670 - Løgstør

8 personer
Emne nr.: 040-LF16183
Hyggeligt sommerhus nær børnevenlig strand i Trend med sauna og stor naturgrund.
  • Soverum 2
  • Badeværelser 1
  • Boligareal 74 m²
  • Grundareal 1.600 m²
  • Husdyr 1
  • Tilbyder miniferie Ja
  • Afstand vand 500 m
  • Afstand indkøb 4 km
  • Sauna Ja
  • Highspeed internet Ja
  • Parabol/kabel TV Ja
  • Brændeovn Ja
  • Gode fiskeforhold Ja
  • Aircondition Ja
  • Vaskemaskine Ja
  • Tørretumbler Ja
  • Opvaskemaskine Ja
  • Ikkeryger Ja
  • Energivenligt Ja

Beskrivelse

Den flotte naturgrund, badeværelsets sauna og den korte afstand til Trends børnevenlige badestrand: Det er tre vidt forskellige, men alle sammen glimrende grunde til, at det er særdeles dejligt at holde ferie her på Monasvej 1. Det spiller også ind, at sommerhuset er et lyst og indbydende eksemplar med en hyggelig indretning.

Velkommen indenfor
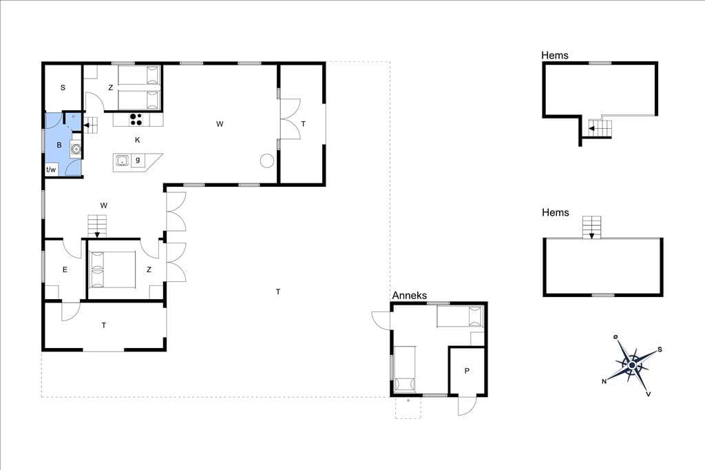
Med loft til kip, lys træbeklædning og brændeovn er sommerhusets opholdsrum sådan et, du straks kan føle dig hjemme i. Der er en komfortabel sofa og lænestole, når det er tid til at flade ud med bøger eller en god film på fladskærmen, og ved spisebordet nær det åbne køkken, kan du samles med dine kære til lækre måltider, brætspil og gode grin. Saunaen, der ligger i forlængelse af badeværelset, er perfekt, når du trænger til at slappe helt af i kroppen og lade feriefreden indfinde sig. Når det er sengetid, er der to soveværelser til rådighed, og derudover kan de to hemse og annekset også bruges til overnatning. Bemærk dog, at sovepladserne på hemsene egner sig bedst til børn og unge.

Nyd livet udenfor
I forlængelse af sommerhuset er der to overdækkede terrasseområder, men hvis du foretrækker at sidde helt ude under åben himmel, er der masser af plads til solbadning, grill og tilbagelænet driverliv på det flisebelagte terrasseområde. En dejlig græsplæne breder sig desuden i læ af grundens randbeplantning, og her har du masser af plads til at lege og spille bold med familien. Børnene kan for øvrigt hygge sig i sandkassen og på gyngerne, så de vil sikkert også blive glade for at opholde sig her i den grønne og ugenerede oase.

Kom tæt på de lokale oplevelser
Fra Monasvej er det nemt at komme rundt via Trends små veje og stier. Der er en bold- og petanquebane i nærheden og bare en kilometer til den lokale kro og campingplads, men det bedste er nu stranden, der venter bare 500 meter væk. Stranden er børnevenlig med sit lave vand og sin rolige atmosfære, og du har også gode muligheder for at surfe og fiske, hvis du er i humør til den slags aktiviteter. Hvis du vil på udflugt, kan turen blandt andet gå til stenaldercentret i Ertebølle og badelandet i Rønbjerg, og det kan også anbefales at tage færgen til den bilfri og naturskønne Limfjords Livø.




OBS: Hems er kun egnet til børn og unge.

Vores gæsteanmeldelser Eksterne anmeldelser

3,3
Baseret på 3 vurderinger
Sidste vurdering fra d. 02-03-2025
5
(0)
4
(1)
3
(2)
2
(0)
1
(0)
Kommentarer
1 vurdering har kommentar på dansk.
2 voksne 0 børn 1 husdyr 7 overnatninger 2025 februar
Dårligt TV signal.

Faciliteter

  • Hus Info

    • Anneksareal
      17 m²
    • Antal husdyr
      1
    • Antal voksne
      8
    • Bruser
    • Byggeår
      2004
    • Grundareal / Naturgrund
      1600 m²
    • Husareal
      74 m²
    • Sauna
    • WC
  • Afstande

    • Afstand fjord
      500 m
    • Afstand indkøb
      4 km
    • Afstand restaurant
      1 km
    • Afstand strand
      500 m
  • Energi / Opvarmning

    • 2 x Elvarme
    • Brændeovn
    • Varmepumpe / Med køl
  • Hårde hvidevarer

    • Elkedel
    • Emhætte
    • Fryser
      40
    • Kaffemaskine
    • Komfur
    • Køleskab
    • Mikroovn
    • Opvaskemaskine
    • Strygebræt
    • Strygejern
    • Tørretumbler
    • Vaskemaskine
  • Multimedier

    • Chromecast
      Google TV
    • Dansk tv
      TV2 + MAX
    • Gratis Wi-Fi - Over 100 Mbit
    • Norsk TV
      NRK1
    • Parabol
    • Svensk TV
      SVT1
    • TV
    • Tysk TV
      ZDF
  • Ekstra

    • Barneseng
    • Barnestol
    • Børnevenlig
    • Gode fiskeforhold
  • Udenfor

    • Grill
      Kul
    • Gynge
    • Havemøbler
    • Liggestole
      4
    • Parasol
    • Parkering på grunden
    • Petanque
    • Sandkasse
    • Terrasse
    • Udendørs bruser
  • Diverse

    • 2 x Enkeltseng 80x200cm
    • 2 x Enkeltseng 90x200cm
    • 4 x Madras
      90x200
    • Dobbeltseng 160x200cm
    • Gulvvarme
    • Træ-/parketgulv
  • Regler

    • Husdyr: alle slags husdyr tilladt
    • Opladning af elbil ikke tilladt
    • Rygning ikke tilladt
  • Pris inklusiv

    • Slutrengøring inkl.
    • Vand inkl.
  • GAMMEL

    • CD
    • DVD

Miniferie

Der er begrænset mulighed for miniferie hele året, typisk uden for højsæsonen.

Priser og kalender

Kalender

Ankomst
Næste
   Se om emnet er ledigt på den valgte dato
Ledig
Optaget
   Ankomst mulig
Varighed

Pris

Periode
Ankomst
Afrejse
Varighed
1 uge
Personer
Op til 8 personer

Bemærk

Ankomst er ikke valgt.
Aftale- og lejebetingelser