Alternative emner
Charmerende landsted med stor have og aktiviteter
Sommerhus - 15 personer - Stoense Udflyttervej - Stoense - 5953 - Tranekær
15 personer
Emne nr.: 121-75-5046
Stort og charmerende landsted på Nordlangeland med aktivitetsrum og stor have, tæt på havet.
- Soverum 7
- Badeværelser 2
- Boligareal 290 m²
- Grundareal 2.200 m²
- Husdyr 2
- Tilbyder miniferie Ja
- Afstand vand 850 m
- Afstand indkøb 3.400 m
- Internet Ja
- Parabol/kabel TV Ja
- Brændeovn Ja
- Aktivitetsrum Ja
- Gode fiskeforhold Ja
- Vaskemaskine Ja
- Tørretumbler Ja
- Opvaskemaskine Ja
- Ikkeryger Ja
- Energivenligt Ja
Beskrivelse
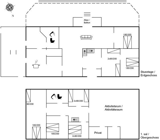
Et stort og rummeligt hus på det naturskønne Nordlangeland - med den skønneste, store og sydvendte have.
Her er der masser af plads såvel ude som inde.
Huset indeholder, ud over soveværelser, køkken og badeværelser, en stor flot stue og et separat aktivitetsrum. I den store have er der mulighed for forskellige udendørs aktiviteter, der er et stort terrasseareal med markise og en yderst hyggelig gårdhave. Her er der er god plads til den helt store familie!
Ejendommen er en del af en større landejendom, men hele huset, haven og arealerne omkring, er lukket af med bl.a. hegn i forhold til resten af ejendommen, så man har det hele for sig selv, og bliver ikke forstyrret af andre! Der er ingen dyrehold på ejendommen, så her er fred og ro.
Vær opmærksom på, at det ene soveværelse i stueplan fungerer som gennemgangsværelse til det bagerste værelse, og at der kun er 2 badeværelser i huset, hvoraf det ene er med badekar.
Indretning
Denne tidligere landejendom egner sig til 15 personer samt 1 barn op til 3 år. Ferieboligen er på 290 m², er i 2 plan, og er bygget i 1907. I 1998 gennemgik ferieboligen en renovering. Det er tilladt at medbringe 2 husdyr. Ferieboligen er udstyret med 1 energivenlig luft til luft varmepumpe. Ferieboligen har vaskemaskine. Tørretumbler. Frysekapacitet på 100 liter. Der er desuden brændeovn. Til de små er der 1 stk. barnestol.
Udenfor
Ferieboligen er beliggende på en 2200 m² stor havegrund. Der er 850 m til havet. Der er en badebro i nærheden. Nærmeste forretning er beliggende i en afstand af 3400 m. Til ferieboligen hører åbent terrasseareal. Gynge. Fodboldmål. Bålsted. Grill til rådighed. Parkering ved ferieboligen.
Aktivitetsrum
I aktivitetsrummet er der følgende udstyr: Bordtennis. Dart. Bordfodbold.
Soveforhold
Der er i alt 7 soveværelser. Sovepladserne fordeler sig på: 8 sovepladser i dobbeltsenge. 7 sovepladser i enkeltsenge. Derudover er der 1 stk. barneseng.
Køkken
Køkkenet er udstyret med 1 køleskab. Der er 4 induktionskogeplader, varmluftovn, mikrobølgeovn samt opvaskemaskine.
Toilet og bad
Der er 2 badeværelser med gulvvarme; 1 med bruseniche og 1 med badekar.
Multimedier
I ferieboligen er der 2 TV. Radio. Der er mindst 4 danske kanaler. Mindst 4 tyske kanaler. Der er trådløst internet til rådighed.
Værd at vide
Ingen udlejning til ungdomsgrupper, hvor alle er 15-25 år. Rygning ikke tilladt. Ved overtrædelse af forbuddet opkræves et gebyr på minimum DKK 3.000,-.
Indretning
Denne tidligere landejendom egner sig til 15 personer samt 1 barn op til 3 år. Ferieboligen er på 290 m², er i 2 plan, og er bygget i 1907. I 1998 gennemgik ferieboligen en renovering. Det er tilladt at medbringe 2 husdyr. Ferieboligen er udstyret med 1 energivenlig luft til luft varmepumpe. Ferieboligen har vaskemaskine. Tørretumbler. Frysekapacitet på 100 liter. Der er desuden brændeovn. Til de små er der 1 stk. barnestol.
Udenfor
Ferieboligen er beliggende på en 2200 m² stor havegrund. Der er 850 m til havet. Der er en badebro i nærheden. Nærmeste forretning er beliggende i en afstand af 3400 m. Til ferieboligen hører åbent terrasseareal. Gynge. Fodboldmål. Bålsted. Grill til rådighed. Parkering ved ferieboligen.
Aktivitetsrum
I aktivitetsrummet er der følgende udstyr: Bordtennis. Dart. Bordfodbold.
Soveforhold
Der er i alt 7 soveværelser. Sovepladserne fordeler sig på: 8 sovepladser i dobbeltsenge. 7 sovepladser i enkeltsenge. Derudover er der 1 stk. barneseng.
Køkken
Køkkenet er udstyret med 1 køleskab. Der er 4 induktionskogeplader, varmluftovn, mikrobølgeovn samt opvaskemaskine.
Toilet og bad
Der er 2 badeværelser med gulvvarme; 1 med bruseniche og 1 med badekar.
Multimedier
I ferieboligen er der 2 TV. Radio. Der er mindst 4 danske kanaler. Mindst 4 tyske kanaler. Der er trådløst internet til rådighed.
Værd at vide
Ingen udlejning til ungdomsgrupper, hvor alle er 15-25 år. Rygning ikke tilladt. Ved overtrædelse af forbuddet opkræves et gebyr på minimum DKK 3.000,-.
Faciliteter
-
Adgang til ferieboligen
-
Nøgleboks med kode
-
-
Aktivitetsrum
-
Aktivitetsrum
-
Bordfodbold
-
Bordtennis
-
Dart
-
-
Bemærk
-
Aktivitetshus
-
Ingen ungdomsgrupper efter anmodning
-
Lystfiskerhus
-
Rygning er forbudt
-
-
Indretning
-
2 niveauer
-
Antal børn (0-3 år)1
-
Antal voksne inkl. 4-11 år15
-
Bebygget areal290 m²
-
Brændeovn1
-
Byggeår1907
-
Frysekapacitet (antal liter)100
-
Husdyr2
-
Højstol1
-
Renovering1998
-
Tidligere gård
-
Tørretumbler1
-
Varmepumpe
-
Varmepumpe luft til luft
-
Vaskemaskine1
-
-
Køkken
-
Antal induktionskogeplader4
-
Køleskab1
-
Mikrobølgeovn1
-
Opvaskemaskine1
-
Varmluftovn1
-
-
Multimedier
-
> 3 danske kanaler
-
> 3 tyske kanaler
-
Antal tv'er2
-
Radio
-
Trådløst internet
-
-
Soveforhold
-
Antal soveværelser7
-
Barneseng1
-
Dobbeltseng (antal sovepladser)8
-
Enkeltseng (antal sovepladser)7
-
-
Toilet og bad
-
Antal badeværelser2
-
Antal toiletter2
-
Badekar
-
Brusekabine
-
Gulvvarme2
-
-
Udenfor
-
Anlagt have
-
Butik3,4 km
-
Bålplads
-
Fodbold mål
-
Grill1
-
Hav850 m
-
Parkeringsplads ved huset
-
Størrelse af grunden2200 m²
-
Swing
-
Terrasse
-
Træmole
-
Miniferie
Der er begrænset mulighed for miniferie hele året, typisk uden for højsæsonen.
Priser og kalender
Kalender
Varighed
Pris
Periode
- Ankomst
- Afrejse
- Varighed
- 1 uge
Personer
Op til 15 personer
Bemærk
Ankomst er ikke valgt.