Charmerende sommerhus tæt på Vestkysten

Sommerhus - 6 personer - Hjortevej - Rubjerg - 9480 - Løkken

6 personer
Emne nr.: 122-LK2016
Nyd en afslappende ferie i et charmerende sommerhus nær Vestkystens smukke natur og strand.
  • Soverum 3
  • Badeværelser 2
  • Boligareal 95 m²
  • Grundareal 1.944 m²
  • Husdyr 2
  • Tilbyder miniferie Nej
  • Afstand vand 425 m
  • Afstand indkøb 5.500 m
  • Spa Ja
  • Sauna Ja
  • Highspeed internet Ja
  • Brændeovn Ja
  • Aircondition Ja
  • Vaskemaskine Ja
  • Opvaskemaskine Ja
  • Ikkeryger Ja
  • Energivenligt Ja

Beskrivelse

Rubjerg er et herligt sted at holde ferie, hvis I holder af flot natur, frisk luft og Vestkystens smukke kyststrækning. Og efter en dag fuld af aktiviteter er det tilsvarende herligt at kunne slappe af i et dejligt spasommerhus som det, I finder her på Hjortevej 13. Velkommen til!

Velkommen indenfor
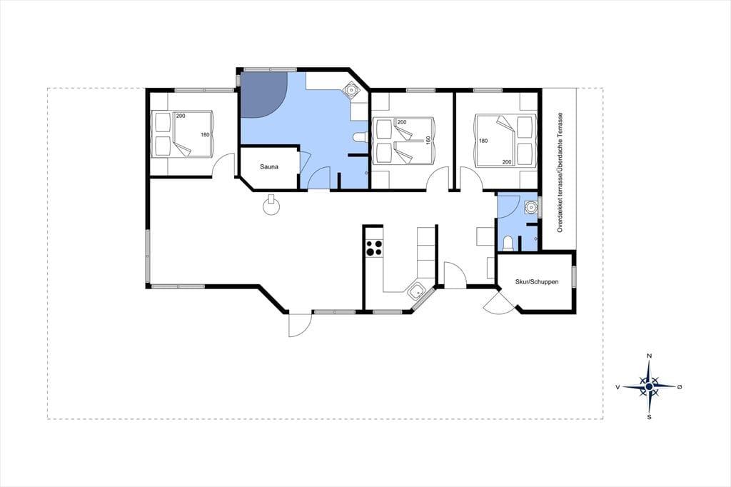
Det 95 m2 store sommerhus har en glimrende planløsning til seks personer. Stue og køkken er forbundne, så I kan nyde samværet hen over halvmuren, mens en del af selskabet laver mad og resten hygger sig med kortspil eller krydsogtværser ved spisebordet. Måske kravler de yngste op for at lege på hemsen, og der er også rig mulighed for at slænge sig med en god bog i stuens sofaafdeling. Der er tre gode soveværelser, og på det største af de to badeværelser er der ikke bare bruser, men også spabad og sauna til livsnyderne.

Nyd livet udenfor
Fra stuen har I direkte adgang til en stor træterrasse, så driverlivet kan nemt flyttes ud i det fri, når vejret er til det. Solforholdene er gode, og der er havemøbler, liggestole, parasol og en grill til rådighed, så I har et glimrende udgangspunkt for at slappe af og nyde ferien under åben himmel. På grunden er der for øvrigt en god græsplæne at lege på, og randbeplantningen skærmer hele herligheden godt af.

Kom tæt på de lokale oplevelser
Ikke langt fra sommerhuset ender vejen blindt, hvilket kun er med til at forstærke den rolige atmosfære, der hviler over området. Vil I helt ud til kysten, kan I følge de små stier ud til den stejle klint, og her kan I blive stående for at nyde panoramaudsigten over Vesterhavet, hvis ikke I finder den nærmeste trappe, der fører jer trykt ned på stranden. Vandreturen til Rubjerg Knude Fyr er næsten obligatorisk, når I holder ferie på disse kanter, og det er også oplagt at sætte kursen mod Lønstrup, der ligger lidt længere nede langs med kysten.

Husk, at du altid kan låne trækvogne, barnestole og barnesenge hos os i Løkken. Du kan hente dem direkte på bureauet og returnere dem til os igen, når din ferie er vel overstået.

Faciliteter

  • Hus Info

    • 2 x Bruser
    • 2 x WC
    • Antal husdyr
      2
    • Antal voksne
      6
    • Byggeår
      1999
    • Grundareal
      1944 m²
    • Husareal
      95 m²
    • Indendørs spabad
    • Sauna
  • Afstande

    • Afstand golfbane
      7,3 km
    • Afstand indkøb / Helårsbutik
      5,5 km
    • Afstand restaurant
      5,5 km
    • Afstand strand
      425 m
  • Energi / Opvarmning

    • Brændeovn
    • Elvarme
    • Varmepumpe / Med køl
  • Hårde hvidevarer

    • Elkedel
    • Emhætte
    • Kaffemaskine
    • Kogeplader
    • Køleskab med frys
    • Mikroovn
    • Opvaskemaskine
    • Ovn
    • Vaskemaskine
  • Multimedier

    • Dansk tv
    • Gratis Wi-Fi - Over 100 Mbit
    • Norsk TV
    • Svensk TV
    • TV
    • Tysk TV
  • Ekstra

    • Golfferie
  • Udenfor

    • Grill
      Trækulgrill
    • Havemøbler
    • Liggestole
    • Parasol
    • Parkering på grunden
    • Terrasse
    • Udendørs bruser
  • Diverse

    • 2 x Dobbeltseng 180x200
    • Dobbeltseng 160x200
  • Regler

    • Husdyr: Kun hunde tilladt
    • Opladning af elbil tilladt / Medbring nødlader/mormorkabel
    • Rygning ikke tilladt
  • Pris inklusiv

    • Slutrengøring inkl.

Priser og kalender

Kalender

Ankomst
Forrige Næste
  • maj 2026
    mationtofr
    18123
    1945678910
    2011121314151617
    2118192021222324
    2225262728293031
    23
  • juni 2026
    mationtofr
    231234567
    24891011121314
    2515161718192021
    2622232425262728
    272930
    28
   Se om emnet er ledigt på den valgte dato
Ledig
Optaget
   Ankomst mulig
Varighed

Pris

Periode
Ankomst
Afrejse
Varighed
1 uge
Personer
Op til 6 personer

Bemærk

Ankomst er ikke valgt.
Aftale- og lejebetingelser