Charmerende feriehus nær sandstrand i Nykøbing

Sommerhus - 8 personer - Fasanvej - Nordstrand - 4500 - Nykøbing Sj

8 personer
Emne nr.: 035-11147
Lækkert feriehus med anneks og sauna kun 200 m fra sandstrand i Nykøbing Sjælland.
  • Soverum 5
  • Badeværelser 2
  • Boligareal 70 m²
  • Grundareal 2.500 m²
  • Husdyr Ikke tilladt
  • Tilbyder miniferie Nej
  • Afstand vand 200 m
  • Afstand indkøb 300 m
  • Sauna Ja
  • Highspeed internet Ja
  • Brændeovn Ja
  • Aircondition Ja
  • Vaskemaskine Ja
  • Tørretumbler Ja
  • Opvaskemaskine Ja
  • Ikkeryger Ja
  • Energivenligt Ja

Beskrivelse

Dette hus med 2 annekser og børnevenlig have beliggende 200m fra pragtfuld sandstrand, indbyder til dejlige ophold for flere familier hele året rundt.

Indretning
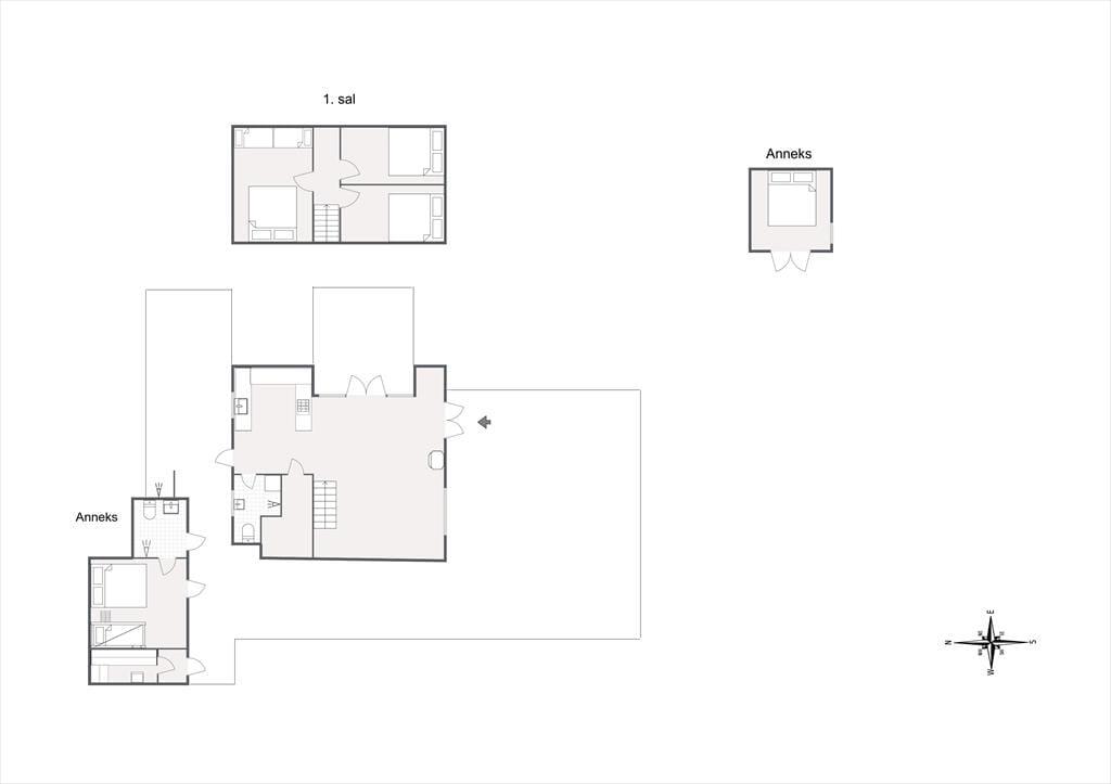
Huset, der er i 2 etager, indeholder i stueplan kombineret spise- og opholdsstue med brændeovn og varmepumpe samt lækkert køkken med opvaskemaskine. Der er udgang til stor flot træterrasse med udsigt til den hyggelige have hvor rådyrene krydser jævnligt.Derudover er der i stueplan badeværelse med brus. På 1. sal er 3 soveværelser, alle med dobbeltsenge samt 1 sovesofa til 2 i det ene. NB! Trappen til 1. sal er lidt stejl.
Fra terrassen er der direkte adgang til dejligt anneks med dobbeltseng, eget toilet og badeværelse med brus. I det fine anneks længst fra huset, er der ligeledes dobbeltseng. Via terrassen, er der adgang til saunaen.
På den store terrasse bagved huset, er der udendørs bruser og fra denne terrasse fører en lille gangsti direkte ned til den dejlige sandstrand
Beliggenhed/området
Feriehuset er beliggende i et meget attraktivt område kun 5min gang fra perfekt sandstrand med klitter og bagvedliggende skov og 5 min gang fra lokal købmand med helårsåbent samt minigolf og restaurant. Nykøbing Sjælland er en del af den skønne Geopark Odsherred, som er Danmarks første UNESCO Geopark. Her finder du et utal af spændende seværdigheder og fantastiske oplevelses-ruter på cykel eller til fods i det unikke landskab. Prøv f.eks. en gåtur til Skansehage eller rundt om den smukke Dybesø. På havnen i Rørvig kan børnene fiske krabber, mens du handler friske fisk, og I kan tage den hyggelige færge til Hundested. Der er mange virkelig gode restauranter i Rørvig og om sommeren løber det yndede loppemarked af stablen hver søndag. I Nykøbing Sjælland er der virkelig gode shopping-muligheder med flere specialbutikker med lokale råvarer og kunst. Hempel Glasmuseum på Anneberg med GlasSpiren til børn, Anneberg Kulturpark med kunst og koncerter eller Odsherreds Museum med områdets historie er bestemt også et besøg værd. Børnene vil elske en dag i Sommerland Sjælland, som har været kåret til Danmarks bedste aktivitet for børn.

Sælsafari, tangsafari eller aftentur på havet arrangeret af den lokale naturskole, er også aktiviteter der varmt kan anbefales

Vores gæsteanmeldelser Eksterne anmeldelser

3,5
Baseret på 2 vurderinger
Sidste vurdering fra d. 07-08-2022
5
(0)
4
(1)
3
(1)
2
(0)
1
(0)
Kommentarer
1 vurdering har kommentar på dansk.
5 voksne 2 børn 0 husdyr 14 overnatninger 2021 juli
Lækkert hus med plads til hele familien. Eneste minus,; tv virker ikke.

Faciliteter

  • Hus Info

    • 2 x Bruser
    • 2 x WC
    • Anneksareal
      26 m²
    • Antal etager i lejemålet
      2
    • Antal voksne
      8
    • Byggeår
      1952
    • Grundareal
      2500 m²
    • Husareal
      70 m²
    • Renoveringsår
      2020
    • Sauna
  • Afstande

    • Afstand golfbane
      8 km
    • Afstand indkøb
      300 m
    • Afstand restaurant
      300 m
    • Afstand strand
      200 m
    • Afstand svømmehal
      4 km
  • Energi / Opvarmning

    • Brændeovn
    • Elvarme
    • Varmepumpe / Med køl
  • Hårde hvidevarer

    • Elkedel
    • Emhætte
    • Kaffemaskine
    • Kogeplader
      Induktion
    • Køleskab med frys
    • Mikroovn
    • Opvaskemaskine
    • Ovn
    • Tørretumbler
    • Vaskemaskine
  • Multimedier

    • Gratis Wi-Fi - Over 20 Mbit
    • TV
      Chromecast
  • Ekstra

    • Barnestol
    • Børnevenlig
    • Golfferie
  • Udenfor

    • Bålsted
    • Grill
    • Havemøbler
    • Legehus
    • Liggestole
      2
    • Parasol
    • Parkering på grunden
    • Sandkasse
    • Terrasse
      130 m²
    • Trampolin
    • Udendørs bruser
  • Diverse

    • 2 x enkeltseng
    • 4 x Dobbeltseng
    • Køjeseng
    • Sovesofa dobbelt
  • Regler

    • Husdyr ikke tilladt
    • Opladning af elbil tilladt / Medbring nødlader/mormorkabel
    • Rygning ikke tilladt
  • Pris inklusiv

    • Slutrengøring inkl.
    • Vand inkl.

Priser og kalender

Kalender

Ankomst
Næste
   Se om emnet er ledigt på den valgte dato
Ledig
Optaget
   Ankomst mulig
Varighed

Pris

Periode
Ankomst
Afrejse
Varighed
1 uge
Personer
Op til 8 personer

Bemærk

Ankomst er ikke valgt.
Aftale- og lejebetingelser