Alternative emner
Hyggelig ferielejlighed i naturskønne omgivelser
Ferielejlighed - 6 personer - Føltvedvej 12, th. - Melholt - 9362 - Gandrup
6 personer
Emne nr.: 121-43-1019
Hyggelig ferielejlighed i Øster Hassing med modern komfort og skøn natur tæt på børnevenlige sandstrande.
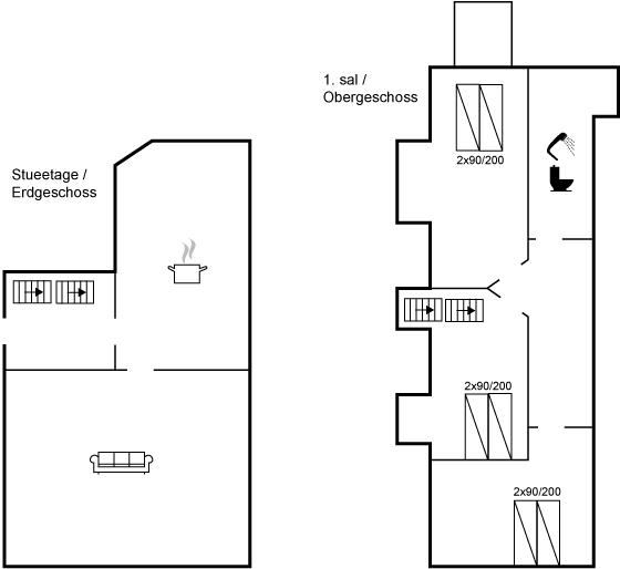
- Soverum 3
- Badeværelser 1
- Boligareal 180 m²
- Grundareal 2.925 m²
- Husdyr Ikke tilladt
- Tilbyder miniferie Ja
- Afstand vand 9 km
- Afstand indkøb 2.500 m
- Internet Ja
- Opvaskemaskine Ja
- Ikkeryger Ja
- Energivenligt Ja
Beskrivelse
Velkommen til denne hyggelige ferielejlighed beliggende i Øster Hassings smukke, landlige omgivelser. Her finder I roen og pladsen til at nyde jeres ferie, uanset om I søger afslapning eller aktiviteter. Lejligheden er én af to i boligen, hvor I deler en dejlig terrasse og gårdhave – perfekte rammer til afslapning og samvær.
Lejligheden er lys og indbydende med moderne faciliteter, der gør opholdet komfortabelt. Start dagen med morgenkaffen på terrassen, mens solen stiger op, og planlæg jeres oplevelser i den skønne nordjyske natur.
Inden for kort afstand finder I kilometervis af børnevenlige sandstrande langs den jyske østkyst. Besøg Hals, hvor Limfjorden møder Kattegat, og nyd en frokost på havnen. I kan også tage på eventyr i Dronninglund Storskov med vandreskoene på eller tage en kort køretur til Aalborg, der byder på masser af kultur, shopping og attraktioner som Utzon Centret, Aalborghus og zoologisk have.
Lejligheden er det perfekte udgangspunkt for en ferie fyldt med oplevelser og nordjysk charme.
Indretning
Denne tidligere landejendom egner sig til 6 personer. Ferieboligen er på 180 m² og er bygget i 1902. I 2010 gennemgik ferieboligen en renovering. Det er ikke tilladt at medbringe husdyr. Ferieboligen er udstyret med 1 energivenlig luft til vand varmepumpe. Frysekapacitet på 40 liter. Til de små er der 1 stk. barnestol. Puslebord.
Udenfor
Ferieboligen er beliggende på en 2925 m² stor naturgrund. Der er 9000 m til havet. Nærmeste forretning er beliggende i en afstand af 2500 m. Der er en golfbane i en afstand af 15000 m. Grill til rådighed. Parkering ved ferieboligen.
Soveforhold
Der er i alt 3 soveværelser. Sovepladserne fordeler sig på: 6 sovepladser i enkeltsenge.
Køkken
Køkkenet er udstyret med 1 køleskab. Der er 4 keramiske kogeplader, varmluftovn samt opvaskemaskine.
Toilet og bad
Der er 1 badeværelse med bruseniche og 1 toilet.
Multimedier
I ferieboligen findes 1 Smart-TV. Ingen TV-kanaler - kun streaming. Der er trådløst internet til rådighed.
Værd at vide
Ingen udlejning til ungdomsgrupper, hvor alle er 15-25 år. Rygning ikke tilladt. Ved overtrædelse af forbuddet opkræves et gebyr på minimum DKK 3.000,-. WIFI-kode: 12345678
Lejligheden er lys og indbydende med moderne faciliteter, der gør opholdet komfortabelt. Start dagen med morgenkaffen på terrassen, mens solen stiger op, og planlæg jeres oplevelser i den skønne nordjyske natur.
Inden for kort afstand finder I kilometervis af børnevenlige sandstrande langs den jyske østkyst. Besøg Hals, hvor Limfjorden møder Kattegat, og nyd en frokost på havnen. I kan også tage på eventyr i Dronninglund Storskov med vandreskoene på eller tage en kort køretur til Aalborg, der byder på masser af kultur, shopping og attraktioner som Utzon Centret, Aalborghus og zoologisk have.
Lejligheden er det perfekte udgangspunkt for en ferie fyldt med oplevelser og nordjysk charme.
Indretning
Denne tidligere landejendom egner sig til 6 personer. Ferieboligen er på 180 m² og er bygget i 1902. I 2010 gennemgik ferieboligen en renovering. Det er ikke tilladt at medbringe husdyr. Ferieboligen er udstyret med 1 energivenlig luft til vand varmepumpe. Frysekapacitet på 40 liter. Til de små er der 1 stk. barnestol. Puslebord.
Udenfor
Ferieboligen er beliggende på en 2925 m² stor naturgrund. Der er 9000 m til havet. Nærmeste forretning er beliggende i en afstand af 2500 m. Der er en golfbane i en afstand af 15000 m. Grill til rådighed. Parkering ved ferieboligen.
Soveforhold
Der er i alt 3 soveværelser. Sovepladserne fordeler sig på: 6 sovepladser i enkeltsenge.
Køkken
Køkkenet er udstyret med 1 køleskab. Der er 4 keramiske kogeplader, varmluftovn samt opvaskemaskine.
Toilet og bad
Der er 1 badeværelse med bruseniche og 1 toilet.
Multimedier
I ferieboligen findes 1 Smart-TV. Ingen TV-kanaler - kun streaming. Der er trådløst internet til rådighed.
Værd at vide
Ingen udlejning til ungdomsgrupper, hvor alle er 15-25 år. Rygning ikke tilladt. Ved overtrædelse af forbuddet opkræves et gebyr på minimum DKK 3.000,-. WIFI-kode: 12345678
Faciliteter
-
Adgang til ferieboligen
-
Nøgleboks med kode
-
-
Bemærk
-
Ingen håndværkere efter anmodning
-
Ingen ungdomsgrupper efter anmodning
-
Rygning er forbudt
-
-
Indretning
-
Antal voksne inkl. 4-11 år6
-
Bebygget areal180 m²
-
Byggeår1902
-
Frysekapacitet (antal liter)40
-
Højstol1
-
Puslebord
-
Renovering2010
-
Tidligere gård
-
Varmepumpe
-
Varmepumpe luft til vand
-
-
Køkken
-
Antal keramiske kogeplader4
-
Køleskab1
-
Opvaskemaskine1
-
Varmluftovn1
-
-
Multimedier
-
Antal tv'er1
-
Ingen tv-kanaler - kun streaming
-
Smart-Tv1
-
Trådløst internet
-
-
Soveforhold
-
Antal soveværelser3
-
Enkeltseng (antal sovepladser)6
-
-
Toilet og bad
-
Antal badeværelser1
-
Antal toiletter1
-
Brusekabine
-
-
Udenfor
-
Butik2,5 km
-
Golfbane15 km
-
Grill1
-
Hav9 km
-
Natursted
-
Parkeringsplads ved huset
-
Størrelse af grunden2925 m²
-
Miniferie
Der er begrænset mulighed for miniferie hele året, typisk uden for højsæsonen.
Priser og kalender
Kalender
Varighed
Pris
Periode
- Ankomst
- Afrejse
- Varighed
- 1 uge
Personer
Op til 6 personer
Bemærk
Ankomst er ikke valgt.