Rummeligt fritidshus med spa og aktivitetsrum

Sommerhus - 14 personer - Bæverstien - Marielyst - 4873 - Væggerløse

14 personer
Emne nr.: 103-M187
Stort fritidshus i Marielyst med spa, sauna og aktivitetsrum tæt på strand og indkøb.
  • Soverum 5
  • Badeværelser 2
  • Boligareal 151 m²
  • Grundareal 1.080 m²
  • Husdyr 1
  • Tilbyder miniferie Ja
  • Afstand vand 650 m
  • Afstand indkøb 350 m
  • Spa Ja
  • Sauna Ja
  • Internet Ja
  • Brændeovn Ja
  • Aktivitetsrum Ja
  • Vaskemaskine Ja
  • Tørretumbler Ja
  • Opvaskemaskine Ja
  • Ikkeryger Ja

Beskrivelse

Indendørs
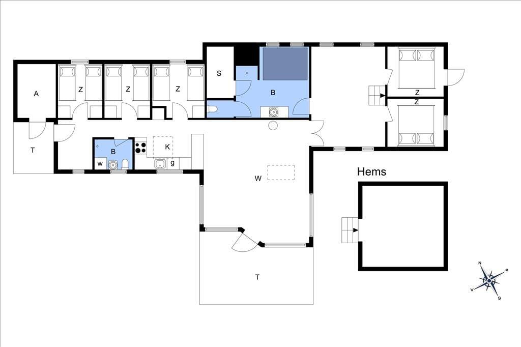
Fritidshuset indeholder: entre, 5 soveværelser: 2 soveværelser med dobbeltseng og 3 soveværelser med enkeltsenge i, samt 4 madrasser på hemsen. Endvidere indeholder fritidshuset 2 badeværelser, hvor det ene er med spa og sauna, køkken-alrum og en stor stue med spiseafdeling og sofaområde, samt aktivitetsrum med billard, bordtennis og dart.

Udendørs
Fritidshuset er beliggende på en 1080 m² stor grund. Til fritidshuset er der 192 m² åbent terrasseareal, samt 20 m² overdækket terrasse. Der er redskabsrum, gynge og sandkasse.

Beliggenhed

Fritidshuset er beliggende tæt på købmand, golf, golf&fun, Middelaldercentret, Put & Take fiskesø og Zoo, samt Marielyst Torv og Marielyst badestrand.

Turbo opvarmning til spabadet. I dette hus er der 3 varmtvandsbeholdere, og derfor kan man fylde spabadet op med varmt vand, så det er klar til brug inden for ca. 30 minutter. Bemærk at spabadet ikke er med varmelegeme, og derfor skal genfyldes ved hvert brug.


Rumindretning

  • Soveværelse
    • Dobbeltseng
  • Soveværelse
    • Enkelt seng
    • Enkelt seng
  • Soveværelse
    • Enkelt seng
    • Enkelt seng
  • Soveværelse
    • Enkelt seng
    • Enkelt seng
  • Soveværelse
    • Dobbeltseng
  • Badeværelse
  • Badeværelse
  • Stue
  • Aktivitetsrum
  • Entre
  • Skur
  • Sovehems
    • Enkelt madras
    • Enkelt madras
    • Enkelt madras
    • Enkelt madras
  • Køkken-alrum

Vores gæsteanmeldelser Eksterne anmeldelser

3,8
Baseret på 13 vurderinger
Sidste vurdering fra d. 28-10-2025
5
(2)
4
(7)
3
(4)
2
(0)
1
(0)
Kommentarer
8 vurderinger har kommentarer på dansk.
6 voksne 0 børn 0 husdyr 4 overnatninger 2025 september
Det var generelt et lidt skidt hus. Der kunne godt trænge til opgradering af f.eks stikkontakter, service og generel køkkengrej.
14 voksne 0 børn 1 husdyr 3 overnatninger 2025 april
Madrasserne i enkeltsengene er alt for bløde og virker udtjente. Nogle af stolene omkring spisebordet trænger også til at blive udskiftet. I et af værelserne faldt rullegardinet ned straks det blev brugt. En af sengelamperne på et værelse virkede ikke. Der var ingen dartpile til dartspillet. Sommerhuset er stort og et godt sted at være det antal personer vi var - 12 overnattende.
10 voksne 4 børn 0 husdyr 7 overnatninger 2024 juli
Meget tynde vægge, hvilket betød at det var meget lydt

Faciliteter

  • Hus Info

    • 2 x Bruser
    • 2 x WC
    • Antal husdyr
      1
    • Antal voksne
      14
    • Byggeår
      2005
    • Grundareal
      1080 m²
    • Husareal
      151 m²
    • Indendørs spabad
    • Sauna
  • Afstande

    • Afstand indkøb
      350 m
    • Afstand strand
      650 m
  • Energi / Opvarmning

    • Brændeovn
    • Oliefyr
  • Hårde hvidevarer

    • Elkedel
    • Emhætte
    • Fryser
    • Kaffemaskine
    • Kogeplader
    • Komfur
    • Køleskab
    • Mikroovn
    • Opvaskemaskine
    • Ovn
    • Tørretumbler
    • Vaskemaskine
  • Multimedier

    • Dansk tv
    • Gratis Wi-Fi - Under 20 Mbit
    • Norsk TV
    • Svensk TV
    • TV
    • Tysk TV
  • Ekstra

    • Aktivitetshus
    • Barnestol
    • Bordtennis
    • Dart
    • Pool/billard
  • Udenfor

    • Grill
    • Havemøbler
    • Liggestole
    • Parasol
    • Parkering på grunden
    • Sandkasse
    • Terrasse
  • Regler

    • Opladning af elbil ikke tilladt
    • Rygning ikke tilladt
  • Pris inklusiv

    • Slutrengøring inkl.

Miniferie

Der er begrænset mulighed for miniferie hele året, typisk uden for højsæsonen.

Priser og kalender

Kalender

Ankomst
Forrige Næste
  • april 2026
    mationtofr
    1412345
    156789101112
    1613141516171819
    1720212223242526
    1827282930
    19
  • maj 2026
    mationtofr
    18123
    1945678910
    2011121314151617
    2118192021222324
    2225262728293031
    23
   Se om emnet er ledigt på den valgte dato
Ledig
Optaget
   Ankomst mulig
Varighed

Pris

Periode
Ankomst
Afrejse
Varighed
1 uge
Personer
Op til 14 personer

Bemærk

Ankomst er ikke valgt.
Aftale- og lejebetingelser