Hyggeligt sommerhus tæt på strand og golf

Sommerhus - 8 personer - Regnfangvej - Marielyst - 4873 - Væggerløse

8 personer
heraf 4 børn (0-11 år)
Emne nr.: 103-M16004
Hyggeligt sommerhus med overdækket terrasse, tæt på strand, golf og Marielyst centrum, perfekt til familieferie.
  • Soverum 4
  • Badeværelser 1
  • Boligareal 68 m²
  • Grundareal 1.305 m²
  • Husdyr 2
  • Tilbyder miniferie Ja
  • Afstand vand 800 m
  • Afstand indkøb 900 m
  • Internet Ja
  • Opvaskemaskine Ja
  • Ikkeryger Ja
  • Energivenligt Ja

Beskrivelse

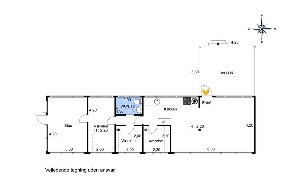
Indretning

Adgang til huset via den skønne overdækkede terrasse, som skaber den perfekte scene for mange gode stunder med hele familien, enten om det er et spil kort eller bare et måltid mad.

Videre ind i huset kommer man til husets stue, som fremtræder i lys og pæn stand, og er opdelt i en spiseafdeling nær køkkenet, og en sofa- og tv afdeling i den anden ende. Køkkenet, som ligger i åben forlængelse af stuen indeholder både køleskab, ovn, komfur, mikroovn og meget mere. Videre ligger husets badeværelse, som indeholder WC, bruser og håndvask.

Derudover har huset 4 soveværelser: 2 værelser med 1 dobbeltseng i hver og 2 værelser med 2 enkeltsenge/køjesenge i hver.

Udendørs

Dejlig overdækket terrasse, og dejlig baghave med havemøbler, gyngestativ og liggestole, hvor solen står på fra morgen til aften. Foran huset er der også god plads til boldspil og leg.

Beliggenhed

Beliggende i dejligt sommerhusområde, tæt på Lupintorvets købmand som har åbent hele året, og kun ca. 800 meters gå gang til den fantastiske badestrand. Derudover er der kun 2 kilometer op til Marielyst Golf & Fun Park, hvor familien kan dyste i alle slags boldspil samt minigolf, og kun 3,5 kilometer til Marielyst centrum med dets mange butikker og indkøbsmuligheder.


Rumindretning

  • Soveværelse
    • Dobbeltseng - 140x190
  • Soveværelse
    • Køjeseng - 70x190
  • Soveværelse
    • Dobbeltseng - 140x190
  • Soveværelse
    • Køjeseng - 70x190
  • Badeværelse
  • Køkken
  • Stue

Vores gæsteanmeldelser Eksterne anmeldelser

2,5
Baseret på 2 vurderinger
Sidste vurdering fra d. 29-08-2021
5
(0)
4
(0)
3
(1)
2
(1)
1
(0)
Kommentarer
1 vurdering har kommentar på dansk.
2 voksne 1 barn 1 husdyr 3 overnatninger 2021 juni
En rigtigt godt sommerhus, der er super børnevenligt. Men der er en del små reparationer her og der (som man ikke ser før man bor der) såsom at kun en tredjedel af vandet kommer ud af bruseren, så det er noget nær umuligt at bade. Og fjernsynet kommer over kogepunktet i løbet af 15 min. Men det er bare småting, sommerhuset er alt i alt tilfredsstillende.

Faciliteter

  • Hus Info

    • Antal børn
      4
    • Antal husdyr
      2
    • Antal voksne
      4
    • Bruser
    • Byggeår
      1969
    • Grundareal / Have
      1305 m²
    • Husareal
      68 m²
    • Renoveringsår
      2004
    • WC
  • Afstande

    • Afstand indkøb / Helårsbutik
      900 m
    • Afstand strand / Sandstrand
      800 m
  • Energi / Opvarmning

    • Elvarme
    • Varmepumpe / Uden køl
  • Hårde hvidevarer

    • Elkedel
    • Emhætte
    • Kaffemaskine
    • Komfur
    • Køleskab med frys
    • Mikroovn
    • Opvaskemaskine
    • Ovn
  • Multimedier

    • Chromecast
    • Dansk tv
    • Spillekonsol
    • TV
    • Tysk TV
    • Wi-FI
  • Udenfor

    • Grill
    • Havemøbler
    • Liggestole
      2
    • Parasol
    • Parkering på grunden
    • Terrasse
  • Regler

    • Opladning af elbil ikke tilladt
    • Rygning ikke tilladt
  • Pris inklusiv

    • Slutrengøring inkl.

Miniferie

Der er mulighed for miniferie hele året.

Priser og kalender

Kalender

Ankomst
Næste
   Se om emnet er ledigt på den valgte dato
Ledig
Optaget
   Ankomst mulig
Varighed

Pris

Periode
Ankomst
Afrejse
Varighed
1 uge
Personer
Op til 8 personer
heraf 4 børn (0-11 år)

Bemærk

Ankomst er ikke valgt.
Aftale- og lejebetingelser