Nybygget sommerhus med spa og havudsigt

Sommerhus - 12 personer - Sommerhaven - Mørkholt - 7080 - Børkop

12 personer
Emne nr.: 121-61-1085
Stort, moderne sommerhus fra 2022 tæt på vandet og med spa, aktivitetsrum og stor terrasse.
  • Soverum 4
  • Badeværelser 2
  • Boligareal 184 m²
  • Grundareal 1.231 m²
  • Husdyr 1
  • Tilbyder miniferie Ja
  • Afstand vand 450 m
  • Afstand indkøb 1.500 m
  • Spa Ja
  • Internet Ja
  • Parabol/kabel TV Ja
  • Aktivitetsrum Ja
  • Udsigt til vand Ja
  • Vaskemaskine Ja
  • Tørretumbler Ja
  • Opvaskemaskine Ja
  • Ikkeryger Ja
  • Energivenligt Ja

Beskrivelse

Stort og fantastisk, nybygget sommerhus (2022) beliggende i attraktivt ferieområde og med blot ca. 450 meter til vandet. Sommerhuset er oplagt til en eller to familier, som ønsker sig god plads i disse flotte og moderne omgivelser. Tilmed findes der en fantastisk terrasse, som også delvist er overdækket.

Indretning
Sommerhuset egner sig til 12 personer samt 1 barn op til 3 år. Ferieboligen er på 184 m² og er bygget i 2022. Det er tilladt at medbringe 1 husdyr. Ferieboligen er udstyret med 1 energivenlig luft til vand varmepumpe. Hele ferieboligen har gulvvarme. Ferieboligen har vaskemaskine. Tørretumbler. Frysekapacitet på 146 liter fordelt på 2 frysere á 73 liter.

Udenfor
Ferieboligen er beliggende på en 1231 m² stor naturgrund. Der er 450 m til havet. Nærmeste forretning er beliggende i en afstand af 1500 m. Til ferieboligen hører åbent terrasseareal. Desuden er der overdækket terrasse. Grill til rådighed. Parkering ved ferieboligen.

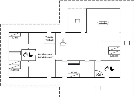
Aktivitetsrum
I aktivitetsrummet er der følgende udstyr: Poolbord. Bordfodbold.

Soveforhold
Der er i alt 4 soveværelser. Sovepladserne fordeler sig på: 8 sovepladser i enkeltsenge. 4 sovepladser i køjesenge. 2 af disse sovepladser befinder sig på husets hems. Derudover er der 1 stk. barneseng.

Køkken
Køkkenet er udstyret med 2 køleskabe. Der er 4 induktionskogeplader, varmluftovn, mikrobølgeovn samt opvaskemaskine.

Toilet og bad
Der er 2 badeværelser med bruseniche og 2 toiletter. Der er gulvvarme på 2 badeværelser.

Spa
Der er mulighed for afslapning i indendørs spa til 2 personer.

Multimedier
I ferieboligen er der 2 Smart-TV. Der er mindst 4 danske kanaler. 1-3 norske kanaler. 1-3 tyske kanaler. Der er trådløst internet til rådighed.

Værd at vide
Ingen udlejning til ungdomsgrupper, hvor alle er 15-25 år. Rygning ikke tilladt. Ved overtrædelse af forbuddet opkræves et gebyr på minimum DKK 3.000,-. Byggelarm må påregnes, da der opføres nye huse i området.

Vores gæsteanmeldelser Eksterne anmeldelser

4,3
Baseret på 3 vurderinger
Sidste vurdering fra d. 10-11-2025
5
(1)
4
(2)
3
(0)
2
(0)
1
(0)
Kommentarer
1 vurdering har kommentar på dansk.
1 vurdering har kommentar på et andet sprog.
5 voksne 0 børn 0 husdyr 10 overnatninger 2023 januar
Dejligt veludstyret skønt nyt sommerhus. Dog ærgrer det mig, at der ikke havde være nogle forbi og tjekke varmen inden vi ankom. Alle gulvvarme termostaterne stod på 22 grader, men der var bare ingen varme... Der var en fejl på anlægget, som skulle trykkes væk. Det var nok derfor at varmen kun var 16 grader da vi ankom? Det tog 2 døgn inden temperaturen var oppe på 20 grader. Det synes jeg simpelthent er alt alt for dårligt. Der var ingen informationsbog, der kunne fortælle om hvad man skulle gøre i det tilfælde, at der ingen varme var. Jeg kunne knapt finde teknikrummet!! Og så med et monstum, som jeg ikke tænker er for gæsterne at skulle pille ved?? Hvorfor er der ingen der er ude og tjekke inden man ankommer - eller et anlæg som dette må da kunne sende trådløs information til nogle som kunne tjekke temperaturen inden ankomst?? ÆV for 2 kolde døgn!
4,4
Generelt:
4,4
Service på stedet:
4,5
Værdi for pengene:
4,3
Beliggenhed:
4,3
3 eksterne anmeldelser
3,8
Generelt:
4
Service på stedet:
3
Værdi for pengene:
4
Beliggenhed:
4
Generel:
Wir hatten schöne Tage in dem Haus. Viel Platz für 8 Personen, sehr gut ausgestattet (Billard, Tischtennis). Umgebung sehr ruhig, Fredericia nicht weit entfernt - hat uns gut gefallen. Leider war das Haus bei Bezug nicht sehr gut gereinigt, haben wir dann selber gemacht. Haben dafür eine großzügige Kompensation erhalten. Wir würden wieder buchen
4,3
Generelt:
4
Service på stedet:
5
Værdi for pengene:
4
Beliggenhed:
4
5,0
Generelt:
5
Service på stedet:
5
Værdi for pengene:
5
Beliggenhed:
5

Faciliteter

  • Adgang til ferieboligen

    • Nøgleboks med kode
  • Aktivitetsrum

    • Aktivitetsrum
    • Bordfodbold
    • Poolbord
  • Bemærk

    • Ingen håndværkere efter anmodning
    • Ingen ungdomsgrupper efter anmodning
    • Rygning er forbudt
  • Indretning

    • Antal børn (0-3 år)
      1
    • Antal voksne inkl. 4-11 år
      12
    • Bebygget areal
      184 m²
    • Byggeår
      2022
    • Feriebolig
    • Frysekapacitet (antal liter)
      146
    • Gulvvarme
    • Husdyr
      1
    • Tørretumbler
      1
    • Varmepumpe
    • Varmepumpe luft til vand
    • Vaskemaskine
      1
  • Køkken

    • Antal induktionskogeplader
      4
    • Køleskab
      2
    • Mikrobølgeovn
      1
    • Opvaskemaskine
      1
    • Varmluftovn
      1
  • Multimedier

    • > 3 danske kanaler
    • 0-3 norske kanaler
    • 0-3 tyske kanaler
    • Antal tv'er
      2
    • Download
      200
    • Smart-Tv
      2
    • Trådløst internet
    • Upload
      200
  • Soveforhold

    • Antal soveværelser
      4
    • Barneseng
      1
    • Enkeltseng (antal sovepladser)
      8
    • Hems (antal sovepladser)
    • Køjeseng (antal sovepladser)
      4
    • Soveplads ikke i soveværelset
  • Spa

    • Indendørs spabad (antal personer)
      2
  • Toilet og bad

    • Antal badeværelser
      2
    • Antal toiletter
      2
    • Brusekabine
    • Gulvvarme
      2
  • Udenfor

    • Butik
      1,5 km
    • Grill
      1
    • Hav
      450 m
    • Natursted
    • Overdækket terrasse
    • Parkeringsplads ved huset
    • Størrelse af grunden
      1231 m²
    • Terrasse
  • Udsigt

    • Havudsigt fra feriehuset
    • Havudsigt fra pladsen

Miniferie

Der er begrænset mulighed for miniferie hele året, typisk uden for højsæsonen.

Priser og kalender

Kalender

Ankomst
Forrige Næste
   Se om emnet er ledigt på den valgte dato
Ledig
Optaget
   Ankomst mulig
Varighed

Pris

Periode
Ankomst
Afrejse
Varighed
1 uge
Personer
Op til 12 personer

Bemærk

Ankomst er ikke valgt.
Aftale- og lejebetingelser