Alternative emner
Charmerende sommerhus i naturen
Sommerhus - 5 personer - Skovlyvej - Lyngby, Thy - 7755 - Bedsted
5 personer
Emne nr.: 121-18-2004
Velkommen til dette charmerende sommerhus i Nationalpark Thy, perfekt for naturelskere.
- Soverum 2
- Badeværelser 1
- Boligareal 82 m²
- Grundareal 6.000 m²
- Husdyr Ikke tilladt
- Tilbyder miniferie Nej
- Afstand vand 6 km
- Afstand indkøb 8 km
- Internet Ja
- Parabol/kabel TV Ja
- Brændeovn Ja
- Vaskemaskine Ja
- Opvaskemaskine Ja
- Ikkeryger Ja
- Energivenligt Ja
Beskrivelse
Dejligt sommerhus beliggende på en skøn stor naturgrund i Nationalpark thy. Her kan man drikke morgenkaffen på terrassen og bare nyde stilheden. Der er et rigt dyreliv i området med bl.a. rådyr, traner, harer og andet vildt. Virkelig en perle for naturelskere. Huset ligger tæt på Cold Hawaii kysten samt det gamle fiskerleje Lyngby Thy. Huset er et perfekt udgangspunkt for cykelture i området.
Indretning
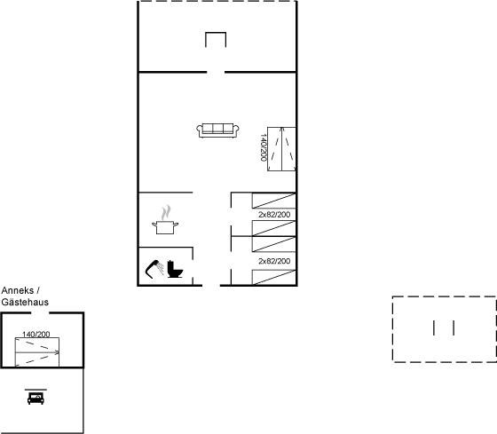
Sommerhuset egner sig til 5 personer. Ferieboligen er på 82 m² og er bygget i 1977. I 2003 gennemgik ferieboligen en renovering. Det er ikke tilladt at medbringe husdyr. Ferieboligen er udstyret med energibesparende varmepumpe. Der er gulvvarme i alle klinkegulve. Ferieboligen har vaskemaskine. Frysekapacitet på 50 liter. Der er desuden brændeovn.
Udenfor
Ferieboligen er beliggende på en 6000 m² stor naturgrund. Der er 6000 m til havet. Der er en sø i en afstand af 3000 m. Nærmeste forretning er beliggende i en afstand af 8000 m. Til ferieboligen hører 38 m² terrasseareal. Desuden er der 18 m² overdækket terrasse. Der er redskabsrum. Grill til rådighed. Der er carport til rådighed. Parkering ved ferieboligen.
Soveforhold
Der er i alt 2 soveværelser. Sovepladserne fordeler sig på: 4 sovepladser i enkeltsenge. 4 sovepladser i sovesofa (dobbelt).- 2 af disse sovepladser befinder sig i et anneks.
Køkken
Køkkenet er udstyret med 1 køleskab. Der er 4 keramiske kogeplader, varmluftovn, mikrobølgeovn samt opvaskemaskine.
Toilet og bad
Der er 1 badeværelse med bruseniche og 1 toilet.. Der er gulvvarme på 1 badeværelse.
Multimedier
I ferieboligen er der 1 TV. Radio. Der er mindst 4 danske kanaler. Mindst 4 tyske kanaler. Der er gratis internet via kabel til rådighed. Der er trådløst internet til rådighed.
Værd at vide
Ingen udlejning til ungdomsgrupper, hvor alle er 15-25 år. Rygning ikke tilladt. Ved overtrædelse af forbuddet opkræves et gebyr på minimum DKK 3.000,-.
Indretning
Sommerhuset egner sig til 5 personer. Ferieboligen er på 82 m² og er bygget i 1977. I 2003 gennemgik ferieboligen en renovering. Det er ikke tilladt at medbringe husdyr. Ferieboligen er udstyret med energibesparende varmepumpe. Der er gulvvarme i alle klinkegulve. Ferieboligen har vaskemaskine. Frysekapacitet på 50 liter. Der er desuden brændeovn.
Udenfor
Ferieboligen er beliggende på en 6000 m² stor naturgrund. Der er 6000 m til havet. Der er en sø i en afstand af 3000 m. Nærmeste forretning er beliggende i en afstand af 8000 m. Til ferieboligen hører 38 m² terrasseareal. Desuden er der 18 m² overdækket terrasse. Der er redskabsrum. Grill til rådighed. Der er carport til rådighed. Parkering ved ferieboligen.
Soveforhold
Der er i alt 2 soveværelser. Sovepladserne fordeler sig på: 4 sovepladser i enkeltsenge. 4 sovepladser i sovesofa (dobbelt).- 2 af disse sovepladser befinder sig i et anneks.
Køkken
Køkkenet er udstyret med 1 køleskab. Der er 4 keramiske kogeplader, varmluftovn, mikrobølgeovn samt opvaskemaskine.
Toilet og bad
Der er 1 badeværelse med bruseniche og 1 toilet.. Der er gulvvarme på 1 badeværelse.
Multimedier
I ferieboligen er der 1 TV. Radio. Der er mindst 4 danske kanaler. Mindst 4 tyske kanaler. Der er gratis internet via kabel til rådighed. Der er trådløst internet til rådighed.
Værd at vide
Ingen udlejning til ungdomsgrupper, hvor alle er 15-25 år. Rygning ikke tilladt. Ved overtrædelse af forbuddet opkræves et gebyr på minimum DKK 3.000,-.
Faciliteter
-
Adgang til ferieboligen
-
Nøgleboks med kode
-
-
Bemærk
-
Ingen ungdomsgrupper efter anmodning
-
Rygning er forbudt
-
-
Indretning
-
Antal voksne inkl. 4-11 år5
-
Bebygget areal82 m²
-
Brændeovn1
-
Byggeår1977
-
Feriebolig
-
Frysekapacitet (antal liter)50
-
Gulvvarme i alle klinkegulve
-
Renovering2003
-
Varmepumpe
-
Vaskemaskine1
-
-
Køkken
-
Antal keramiske kogeplader4
-
Køleskab1
-
Mikrobølgeovn1
-
Opvaskemaskine1
-
Varmluftovn1
-
-
Multimedier
-
> 3 danske kanaler
-
> 3 tyske kanaler
-
Antal tv'er1
-
Internet via kabel
-
Radio
-
Trådløst internet
-
-
Soveforhold
-
Anneks (antal sovepladser)
-
Antal soveværelser2
-
Enkeltseng (antal sovepladser)4
-
Soveplads ikke i soveværelset
-
Sovesofa, dobbelt (antal sovepladser)4
-
-
Toilet og bad
-
Antal badeværelser1
-
Antal toiletter1
-
Brusekabine
-
Gulvvarme1
-
-
Udenfor
-
Butik8 km
-
Carport
-
Grill1
-
Hav6 km
-
Natursted
-
Overdækket terrasse18 m²
-
Parkeringsplads ved huset
-
Redskabsskur
-
Størrelse af grunden6000 m²
-
Sø3 km
-
Terrasse38 m²
-
Priser og kalender
Kalender
Ankomst
-
januar 2026
ma ti on to fr lø sø 1 1 2 3 4 2 5 6 7 8 9 10 11 3 12 13 14 15 16 17 18 4 19 20 21 22 23 24 25 5 26 27 28 29 30 31 6 -
februar 2026
ma ti on to fr lø sø 5 1 6 2 3 4 5 6 7 8 7 9 10 11 12 13 14 15 8 16 17 18 19 20 21 22 9 23 24 25 26 27 28 10
Se om emnet er ledigt på den valgte dato
Ledig
Optaget
Ankomst mulig
Varighed
Pris
Periode
- Ankomst
- Afrejse
- Varighed
Personer
Op til 5 personer
Bemærk
Kan ikke bookes på nuværende tidspunkt.