Charmerende sommerhus med sauna og strandnærhed

Sommerhus - 10 personer - Gludvej - 7130 - Juelsminde

10 personer
heraf 2 børn (0-11 år)
Emne nr.: 014-40117
Charmerende sommerhus tæt på strand og golfbane med sauna, vildmarksbad og aktivitetsrum.
  • Soverum 4
  • Badeværelser 2
  • Boligareal 274 m²
  • Grundareal 4.018 m²
  • Husdyr Ikke tilladt
  • Tilbyder miniferie Ja
  • Afstand vand 450 m
  • Afstand indkøb 1.800 m
  • Sauna Ja
  • Highspeed internet Ja
  • Aktivitetsrum Ja
  • Vaskemaskine Ja
  • Tørretumbler Ja
  • Opvaskemaskine Ja
  • Ikkeryger Ja
  • Ladestander til elbil Ja

Beskrivelse

Indendørs
Velkommen til et sommerhus som er mere end velegnet til det årlige familietræf, forlænget weekend eller sommerferie for flere familier sammen.
Huset rummer mange fine faciliteter for alle aldre, så her har I de ideelle rammer til et godt ophold.

Der er plads til 8 voksne og 2 børn fordelt i 4 soverum og på en repos. Der er fire dobbeltsenge med gode boksmadrasser og to enkelte senge. Så I kan fordele jer, som det lige passer ind i jeres familie.
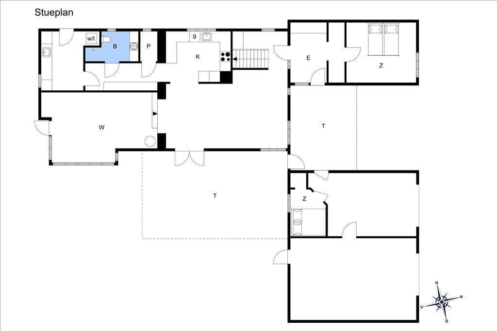
Stueplan:
Husets hjerte er det store køkkenalrum med spisestue, hvor der er god plads til jer alle rundt om bordet. I direkte forbindelse til spisestuen, er der stue med dejlig stor sofa og en fantastisk udsigt over haven og omkringliggende marker.
Der er TV med danske, tyske, svensk og norske kanaler + Chromecast, hvorfra I kan streame eget TV abonnement. Internethastigheden er 100/100.
I stuen er der i øvrigt træpille brændeovn, som kan bruges på de kølige dage, når der skal hygges i sofaen med en god bog eller en god film.
Fra spisestuen er der direkte adgang ud til en af huset terrasser, hvor der er en dejlig spiseplads og stor gasgrill, hvor I kan tilberede dagens måltider.
Det flotte køkken indeholder alt, hvad I får brug for under jeres ophold af moderne faciliteter. Husets bryggers er med vaskemaskine og tørretumbler og desuden en fryser. Så der er mulighed for rene håndklæder og forfriskende is i fryseren.

Der et desuden et rigtig godt aktivitetsrum med bordtennis, dart og wii spillekonsol. Vi er ikke i tvivl om, at alle legesyge sjæle vil elske at tilbringe tid her og måske afvikle den årlig familiedyst i diverse spil.
I forbindelse med aktivitetsrummet er det hyggeligste soverum med høj dobbeltseng og ved indgangen til huset et andet soverum med dobbeltseng.

Der er i stueplan badeværelse med toilet og brus.

1. sal:
Her er der 6 sovepladser fordelt i 2 skønne soverum og 2 fine enkelte senge på reposen.
Soverummene er med højt til loftet og flot udsigt. Fra det ene soverum er der direkte adgang til badeværelset med toilet og brus. Badeværelset kan tilgået fra to sider.

Udendørs
Huset beliggenhed er helt unik. Tæt på by, strand, skov og med naturen lige uden for døren. Huset er beliggende på en 4000 m2 stor grund, hvor der er god plads til det meste.
Her er flere terrasser både åbne og overdækkede. Her er havemøbler, liggestole og hyggekroge hvor tiden går i stå og livet bare kan nydes. Der er naturligvis både parasol og markise, hvis I trænger til et hvil i skyggen.
Til de aktive er der stor græsplæne med 2 fodboldmål, stor trampolin, masser af plads til fri leg, bål sted hvor familien kan hygge med snobrød og røverhistorie på de sene nattetimer.
Der er vildmarksbad og en fantastisk udendørs sauna med en pragtfuld udsigt over landskab.
Det er balsam for sjæl og krop.
Der er god plads til parkering af biler i indkørslen.

Beliggenhed
Sommerhuset ligger i roligt område kun 450 meter fra den dejlige sandstrand. Stranden er oplagt til badeture, afslapning, leg eller lange gåture året rundt.

Mulighederne for indkøb af dagligvarer er store i området og en række at dagligvarer butikker ligger kun 2 km. fra huset.

5 minutters kørsel i bil fra sommerhuset ligger Juelsminde, som er kendetegnet ved den hyggelige maritime havn, de børnevenlige strande og den hyggelige bymidte med flere spændende forretninger, gode indkøbsmuligheder, spisesteder og attraktioner.

På havnen kan I opleve den hyggelige stemning på lystbådehavnen og måske nyde en frisktilberedt fisk på restauranten og besøge isboden.

Der er også mulighed for at udforske familien i minigolf, fange krabber på badebroen eller blot nyde udsigten og den maritime stemning.

Oplev den helt nye Naturlegepark i Juelsminde med 8 meter høje legetårne placeret op ad Odelsbjerget, et væld af legeredskaber, faciliteter, baner og udfordringer samt 2 nye padel tennis baner. Det varierede udvalg af aktiviteter betyder, der kan leges og udfordres i timevis.

Vil I nyde en runde golf, så ligger Juelsminde Golfbane kun 850 m. fra dette sommerhus.

Desuden ligger Juelsminde også tæt på mange af Jyllands største attraktioner såsom Legoland og Givskud Zoo.

Vores gæsteanmeldelser Eksterne anmeldelser

4,3
Baseret på 4 vurderinger
Sidste vurdering fra d. 26-12-2024
5
(2)
4
(1)
3
(1)
2
(0)
1
(0)
Kommentarer
1 vurdering har kommentar på dansk.
1 vurdering har kommentar på et andet sprog.
7 voksne 3 børn 0 husdyr 3 overnatninger 2021 oktober
Rengøringen før ankomst kunne være lidt bedre

Faciliteter

  • Hus Info

    • 2 x Bruser
    • 2 x WC
    • Antal børn
      2
    • Antal etager i lejemålet
      2
    • Antal voksne
      8
    • Byggeår
      1930
    • Delvis renoveret år
      2021
    • Grundareal / Have
      4018 m²
    • Husareal
      274 m²
    • Renoveringsår
      1990
    • Sauna
      Udendørs sauna i haven
    • Udsigt over landskab
    • Vildmarksbad
  • Afstande

    • Afstand golfbane
      850 m
    • Afstand hav
      450 m
    • Afstand indkøb / Helårsbutik
      1,8 km
    • Afstand kyst
      450 m
    • Afstand restaurant
      2 km
    • Afstand strand / Sandstrand
      450 m
    • Afstand svømmehal
      15 km
  • Hårde hvidevarer

    • Elkedel
    • Emhætte
    • Fryser
    • Kaffemaskine
    • Kogeplader
    • Køleskab
    • Mikroovn
    • Opvaskemaskine
    • Ovn
    • Tørretumbler
    • Vaskemaskine
  • Multimedier

    • Chromecast
      • Det er muligt at se egne TV- og streamingtjenester via husets Chromecast og egen mobil/tablet.
    • Dansk tv
      Min. DR gratis kanaler og TV2
    • Gratis Wi-Fi - Over 20 Mbit
    • Norsk TV
      Min. NRK1
    • Spillekonsol
      Wii
    • Svensk TV
      • Min. SVT1
    • TV
      Ingen tv-kanaler
    • Tysk TV
      Min. ZDF, ARD
  • Ekstra

    • Aktivitetshus
    • Barnestol
    • Bordtennis
    • Dart
    • Golfferie
  • Udenfor

    • 2 x Terrasse / Åben terrasse
    • Bålsted
      1
    • Grill
      Kulgrill
    • Gynge
    • Havemøbler
    • Liggestole
      2
    • Overdækket terrasse
    • Parasol
      1
    • Parkering på grunden
    • Trampolin
  • Diverse

    • 3 x Dobbeltseng 180 x 200
    • Dobbeltseng 2 x 90 x 200
    • Enkeltseng 80 x 200
    • Enkeltseng 90 X 200
    • Enkeltseng Daybed 80 x 200
    • Gulvvarme
    • Træ-/parketgulv
  • Regler

    • Husdyr ikke tilladt
    • Opladning af elbil tilladt / Lader til elbil forefindes (Type 2-stik, medbring kabel)
    • Rygning ikke tilladt
  • Pris inklusiv

    • Slutrengøring inkl.
  • GAMMEL

    • 4 x Væg-til-væg tæppe

Miniferie

Der er begrænset mulighed for miniferie hele året, typisk uden for højsæsonen.

Priser og kalender

Kalender

Ankomst
Forrige Næste
   Se om emnet er ledigt på den valgte dato
Ledig
Optaget
   Ankomst mulig
Varighed
Personer

Pris

Periode
Ankomst
Afrejse
Varighed
1 uge
Personer
Ingen personer er valgt

Bemærk

Ankomst er ikke valgt.
Der er ikke valgt personer.
Aftale- og lejebetingelser