Rummeligt feriehus tæt på strand og havn

Sommerhus - 8 personer - Stormgade - 6960 - Hvide Sande

8 personer
Emne nr.: 328-360779
Stort feriehus i Hvide Sande med lukket terrasse, aktivitetsrum og kun 200 m til stranden.
  • Soverum 4
  • Badeværelser 2
  • Boligareal 235 m²
  • Grundareal 571 m²
  • Husdyr 1
  • Tilbyder miniferie Nej
  • Afstand vand 200 m
  • Afstand indkøb 200 m
  • Highspeed internet Ja
  • Parabol/kabel TV Ja
  • Aktivitetsrum Ja
  • Indhegnet område Ja
  • Vaskemaskine Ja
  • Tørretumbler Ja
  • Opvaskemaskine Ja
  • Ikkeryger Ja
  • Energivenligt Ja

Beskrivelse

I dette 235 kvadratmeter store feriehus kan op til 8 personer have en skøn ferie i hjertet af havnebyen Hvide Sande. En hund kan komme med i sommerhuset og fornøjes over lange gåture ved strand og fjord. Slutrengøring er inkluderet i lejen, så du kan også slappe af på afrejsedagen.

Selv når vejret er dårligt, er der mulighed for masser af action her, takket være aktivitetsrummet med bordtennis og bordfodbold.

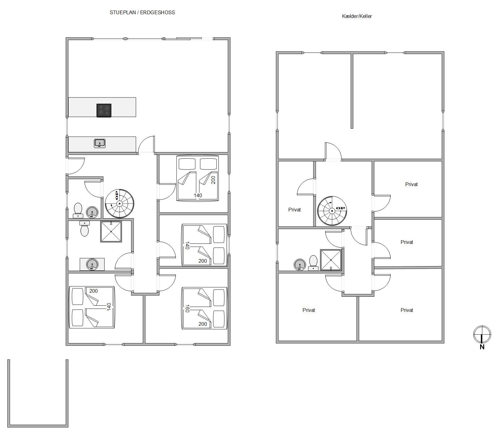
Praktisk opdeling i 2 etager

Den praktiske opdeling i 2 etager gør, at man altid kan trække sig tilbage og rekreere lidt for sig selv. I øverste etage er 4 soveværelser med dobbeltsenge, 1 gæstetoilet og 1 badeværelse med bruser. På etagen ovenover er endnu et badeværelse med bruser. Alle toiletter og badeværelser har gulvvarme.

Sommerhuset er opdelt i en soveafdeling og en opholdsafdeling. I opholdsafdelingen er køkkenet åbent i forbindelse med alrum og stue. I det veludstyrede køkken finder du opvaskemaskine, mikroovn, køleskab og induktionskomfur. Lystfiskere vil blive glade for en 60 liters fryser. Her kan I sammen fremtrylle et lækkert måltid i det åbne køkken, eller se en film i stuen senere om aftenen. Det fine lysindfald giver et smukt og lyst udtryk, og indbyder til at hygge sig her.

I den nederste etage finder du det andet badeværelse med vaskemaskine og tørretumbler, samt endnu en stue med en behagelig sofa og tv. Praktisk, hvis I vil se forskellige tv-programmer samtidig. For dem, der gerne vil bruge ekstra energi på ferien, findes også aktivitetsrummet hernede.

Feriehuset opvarmes med både fjernvarme og energibesparende varmepumpe.

Afslapning på afskærmet og lukket terrasse

Det smukke terrasseområde er ideelt for hundeejere eller småbørnsfamilier, da man trygt kan lade de små færdes der. Her kan du altid finde en rolig plet til en kop kaffe i den friske luft. Komfortable havemøbler og liggestole står til din rådighed. Du kan parkere din bil i carporten. Om aftenen er en lækker BBQ på grillen en god måde at afslutte dagen på.

Top beliggenhed midt i Hvide Sande

I hjertet af Hvides Sande og kun få minutters gang fra havnen er dit sommerhus ideelt placeret for opdagelsesture i området. Sandstranden er kun 200 meter væk, så du har let adgang til en forfriskende dukkert i Vesterhavet. Slusen er heller ikke langt væk. Her kan du fiske og måske være heldig at se sæl på jagt.

Kun en kort gåtur herfra finder du butikker, restauranter, caféer og købmandsforretninger. Friske rundstykker om morgenen skulle således ikke være noget problem. For vandsportsfans kan et besøg på vandskianlægget anbefales og du kan kitesurfe på Ringkøbing Fjord samt i Vesterhavet.

Faciliteter

  • Opholdsrum

    • Radio
    • Fladskærms-TV
      2
    • Dock/Bluetooth enhed
    • Kork/Vinyl gulv
    • Ekstra varmekilder
  • Soverum

    • Dobbeltsenge
      4
    • Sovepladser
      8
    • Soverum
      4
    • Kork/Vinyl gulv
    • 1. soverum/sengestørrelser
      160x200
    • 2. soverum/sengestørrelser
      140x200
    • 3. soverum/sengestørrelser
      140x200
    • 4. soverum/sengestørrelser
      140x200
  • Køkken

    • Komfur: Induktion m. ovn
    • Køleskab
    • Opvaskemaskine
    • Mikroovn
    • Separat fryser /L
      60
  • Baderum

    • Gulvvarme bad
    • Gulvvarme gæstetoilet
    • Antal badeværelser
      2
    • Antal gæstetoiletter
      1
  • Objektinfo - Inde

    • Areal: Hus m²
      235
    • Bordtennis
    • Byggeår
      1969
    • Barneseng
      1
    • Højstol
      1
    • Husdyr tilladt
    • Husdyr antal, max
      1
    • Ikke ryger hus
    • Personantal
      8
    • Renoveret
      2017
    • Danske TV-kanaler (Betalingskanaler)
    • Tyske tv-programmer
    • Tørretumbler
    • Varme: Fjernvarme
    • Varme: Varmepumpe luft til luft
    • Vaskemaskine
    • Parabol (enkelte danske og tyske kanaler)
    • Gratis fiber Internet
    • Aktivitetshus
    • Jubilæumsmønt er udleveret
  • Objektinfo - ude

    • Afstand hav
      200 m
    • Afstand indkøb
      200 m
    • Areal: Grund m²
      571
    • Grill
    • Havemøbler
    • Solvogne
    • Parasol
    • Parkering: Carport
    • Terrasse: Afskærmet
    • Terrasse: Lukket
    • Affald hentes:
      Tirsdag
    • Affald: Helårstømning
    • Affald: Liter
      360
    • Indhegnet grund
  • Koncepter

    • Skiftedag: Fredag
    • Vandaflæsning

Priser og kalender

Kalender

Ankomst
Næste
  • januar 2026
    mationtofr
    11234
    2567891011
    312131415161718
    419202122232425
    5262728293031
    6
  • februar 2026
    mationtofr
    51
    62345678
    79101112131415
    816171819202122
    9232425262728
    10
   Se om emnet er ledigt på den valgte dato
Ledig
Optaget
   Ankomst mulig
Varighed

Pris

Periode
Ankomst
Afrejse
Varighed
1 uge
Personer
Op til 8 personer

Bemærk

Ankomst er ikke valgt.
Aftale- og lejebetingelser