Hyggeligt sommerhus med vildmarksbad og sauna

Sommerhus - 6 personer - Dortheasvej - Bjerregård - 6960 - Hvide Sande

6 personer
Emne nr.: 328-827972
Hyggeligt sommerhus nær Vesterhavet med vildmarksbad, sauna og lukket terrasse, perfekt til familier og hunde.
  • Soverum 3
  • Badeværelser 1
  • Boligareal 73 m²
  • Grundareal 1.313 m²
  • Husdyr 2
  • Tilbyder miniferie Nej
  • Afstand vand 650 m
  • Afstand indkøb 750 m
  • Sauna Ja
  • Highspeed internet Ja
  • Parabol/kabel TV Ja
  • Brændeovn Ja
  • Vaskemaskine Ja
  • Opvaskemaskine Ja
  • Ikkeryger Ja

Beskrivelse

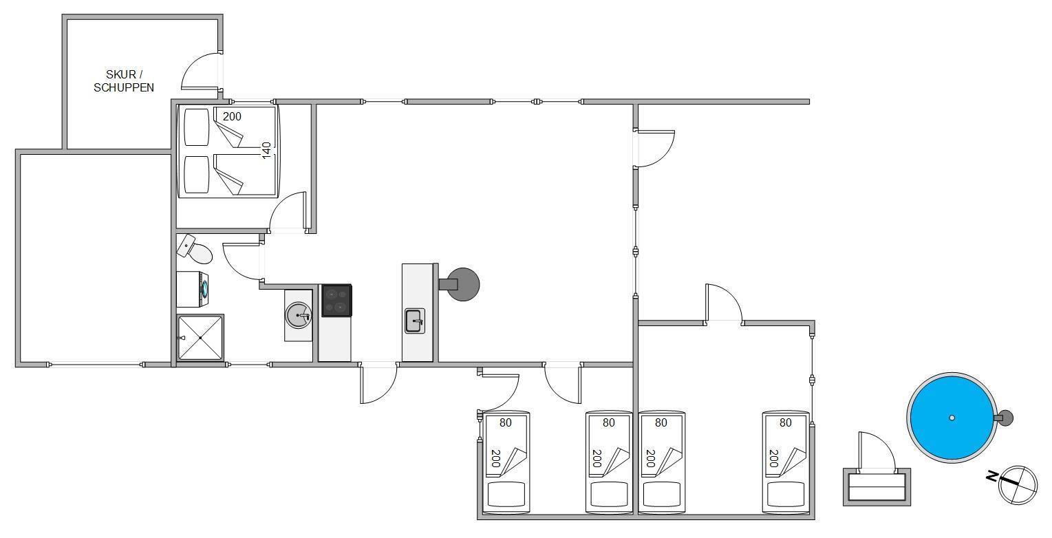
I bunden af en lukket lomme finder I dette fine 2-stjernede sommerhus på Dortheasvej 33. Feriehuset er holdt i klassisk stil, hyggeligt indrettet og her er plads til 6 gæster. Udenfor finder I både vildmarksbad, udesauna og udebruser på en fin delvist overdækket og lukket terrasse, hvor hundene kan gå frit. Herfra er der hverken langt til Vesterhavet eller den lokale købmand.

Åbent opholdsrum med knitrende brændeovn

Velkommen indenfor i dette klassiske sommerhus på 73 m2. Her er et åbent opholdsrum, som kombinerer køkken, spisestue og stue. Her er komfortable møbler og en skøn brændeovn, der spreder varme og hygge. Her er plads til alt fra fællesmadlavning i køkkenet til brætspilsaftner og afslappende stunder i sofaen. Sid her med en god bog, en friskbrygget kop kaffe og mærk brændeovnens varme brede sig - dét er ægte sommerhushygge! Her er desuden et Chromecast, således I har mulighed for at se jeres yndlingsprogrammer, når det passer.

Feriehuset er praktisk udstyret med opvaskemaskine, vaskemaskine og gulvvarme på badeværelset. Soveværelserne med vinyltrægulve er fordelt på 3 soverum, 1 med dobbeltseng og de sidste med 2 enkeltsenge. Bemærk venligst, at 1 af soveværelserne kun kan tilgås fra terrassen.

Lukket og delvist overdækket terrasse med vildmarksbad

Fra stuen er der direkte adgang til feriehusets fine terrasse med vildmarksbad, sauna og udebruser (udebruseren kan benyttes fra april til november). Her kan hele flokken nyde de solrige sommerdage – uanset om det er i solen eller i skyggen på terrassen overdækkede del. Praktisk er terrassen lukket, så småbørn og hundene kan bevæge sig frit omkring. Til familiens mindste gemmer sig både sandkasse og gynge.

De lune sommeraftner skal bestemt også nydes her! Tænd op i gasgrillen, og lad familiens grillmester trylle et skønt måltid frem. Nyd maden med et køligt glas rosé, spil kort og planlæg morgendagens program. Måske I skal have ristede skumfiduser til dessert?

Beliggenhed mellem hav og fjord – tæt på Hvide Sande

Tæt på sommerhuset finder I både den lokale købmand, vandet og fine cykelstier, der snor sig gennem landskabet. Tag derfor gerne cyklerne med – der er anlagt cykelsti fra Nymindegab i syd til Søndervig i nord og igennem den hyggelige fiskerby, Hvide Sande.

I Hvide Sande har I mulighed for at prøve kræfter med diverse vandsportsaktiviteter og her er selvfølgelig også mulighed for shopping i de lokale butikker. Den hyggelige havneby byder desuden på et bredt udvalg af lækre restauranter med udsigt over slusen.

Vores gæsteanmeldelser Eksterne anmeldelser

5,0
Baseret på 1 vurdering
Vurderet d. 29-12-2024
5
(1)
4
(0)
3
(0)
2
(0)
1
(0)
Kommentarer
Ingen vurderinger har kommentarer.

Faciliteter

  • Opholdsrum

    • Gulv: Trælaminat
    • Radio
    • Brændeovn
    • Fladskærms-TV
      2
    • Dock/Bluetooth enhed
  • Soverum

    • Gulv: Tæppe
    • Dobbeltsenge
      1
    • Enkeltsenge
      4
    • Sovepladser
      6
    • Soverum
      3
    • 1. soverum/sengestørrelser
      140x200
    • 2. soverum/sengestørrelser
      2x80x200
    • 3. soverum/sengestørrelser
      2x80x200
  • Køkken

    • Komfur: El m. ovn
    • Køleskab
    • Opvaskemaskine
    • Mikroovn
    • Separat fryser /L
      30
  • Baderum

    • Gulvvarme bad
    • Antal badeværelser
      1
  • Objektinfo - Inde

    • Areal: Hus m²
      73
    • Byggeår
      1967
    • Barneseng
      1
    • Højstol
      1
    • Husdyr tilladt
    • Husdyr antal, max
      2
    • Ikke ryger hus
    • Personantal
      6
    • Renoveret
      2007
    • Tyske tv-programmer
    • Varme: Elvarme
    • Vaskemaskine
    • Parabol (enkelte danske og tyske kanaler)
    • Gratis fiber Internet
    • Chromecast
  • Objektinfo - ude

    • Afstand hav
      650 m
    • Afstand indkøb
      750 m
    • Areal: Grund m²
      1313
    • Gynge
    • Sandkasse
    • Grill
    • Havemøbler
    • Solvogne
    • Terrasse: åben
    • Terrasse: Afskærmet
    • Terrasse: Lukket
    • Terrasse: Overdækket
    • Redskabsrum
    • Naturgrund
    • Plænegrund
    • Affald hentes:
      Onsdag
    • Affald: Liter
      240
    • Vildmarksbad, antal pers
      8
    • Gasgrill
    • Udesauna
    • Udebruser (April - 1. november)
  • Koncepter

    • Skiftedag: Lørdag

Priser og kalender

Kalender

Ankomst
Forrige Næste
  • januar 2026
    mationtofr
    11234
    2567891011
    312131415161718
    419202122232425
    5262728293031
    6
  • februar 2026
    mationtofr
    51
    62345678
    79101112131415
    816171819202122
    9232425262728
    10
   Se om emnet er ledigt på den valgte dato
Ledig
Optaget
   Ankomst mulig
Varighed

Pris

Periode
Ankomst
Afrejse
Varighed
1 uge
Personer
Op til 6 personer

Bemærk

Ankomst er ikke valgt.
Aftale- og lejebetingelser