Moderne sommerhus med spa og nær Vesterhavet

Sommerhus - 10 personer - Bjerregårdsvej - Bjerregård - 6960 - Hvide Sande

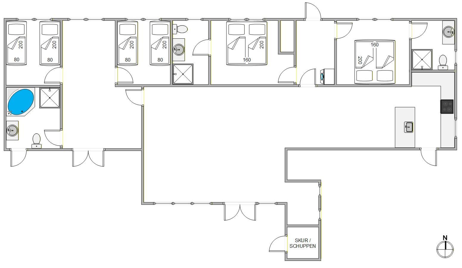
10 personer
Emne nr.: 328-195445
Moderne sommerhus fra 2025 på 160 m² nær Vesterhavet og indkøb i Bjerregård.
  • Soverum 4
  • Badeværelser 3
  • Boligareal 160 m²
  • Grundareal 2.500 m²
  • Husdyr Ikke tilladt
  • Tilbyder miniferie Nej
  • Afstand vand 1.100 m
  • Afstand indkøb 250 m
  • Spa Ja
  • Highspeed internet Ja
  • Vaskemaskine Ja
  • Tørretumbler Ja
  • Opvaskemaskine Ja
  • Ikkeryger Ja
  • Ladestander til elbil Ja
  • Energivenligt Ja

Beskrivelse

På Bjerregårdsvej 49 vil I med udgangspunkt i et dejligt sommerhus fra 2025 få en skøn base for vesterhavsferie for op til 10 personer. Herfra har I kun 1100 meter til det brusende Vesterhav, og med indkøbsmuligheder kun 250 meter væk, har I alt det nødvendige inden for rækkevidde. Feriehuset er med sine 160 m² placeret på en bekvem klitgrund og med en frisk gåtur til Vesterhavet, har I her alle muligheder for at opleve vestkystens charme.

Feriestemning for hele familien på Bjerregårdsvej 49

Den lyse stemning og praktiske rumfordelig byder jer velkommen straks, I træder ind over dørtrinnet. Køkkenet indeholder alt, hvad I behøver, for at forkæle hinanden med hjemmelavede måltider og snacks, herunder induktionskomfur, opvaskemaskine og en separat 80 l fryser.

I stuen kan I hygge jer sammen, eventuelt se jeres yndlingsserie via Chromecast eller Apple TV. Der står vaskemaskine og tørretumbler til rådighed for jer, så I kan opfriske garderoben i løbet af ferien. Alle rum har gulvvarme, så I kan nyde samværet i behagelige temperaturer året rundt.

I de 4 soverum finder I 8 komfortable sovepladser, fordelt på 2 dobbeltsenge og 4 enkeltsenge, som har opbevaringspladsen til børnenes legetøj. Derudover byder både hemsen og alkoven samt en sovesofa i aktivitetsrummet på ekstra sovepladser. 

3 rummelige badeværelser forebygger kø til morgenbadet, og med en afslappende tømmespa kan I give jer selv mulighed for den afslapning, I fortjener efter en lang dag fuld af aktiviteter.

Et ladestik til el-bil er tilgængeligt for jer, og med en obligatorisk slutrengøring, kan I slappe helt af fra begyndelsen til slutningen af jeres ophold.

Udelivet i den vestjyske natur

Med både en åben- og en overdækket terrasse kan I nyde udelivet i alle vejrforhold. Tag solbad, læs en god bog i en hyggelig krog eller nyd en dejlig grillaften sammen i de lune sommeraftener, mens børnene leger på den fine klitgrund på 2500 m². Bagefter kan I gå en frisk tur til stranden og opleve solnedgangen i Vesterhavet.

Charmerende Bjerregård

Bjerregård ligger i et idyllisk klitlandskab på den smalle landtange mellem Ringkøbing Fjord og Vesterhavet. Her finder I fantastiske muligheder for både afslapning og aktiviteter i naturen. I kan tage på lange gåture langs de naturskønne stier, opleve den friske havluft, og måske endda spotte noget af de lokale dyreliv i dets naturlige habitat. Der er fine cykelstier til cykelture – de hardcore kører måske Ringkøbing Fjord rundt, ca. 100 km. Og adskillige tilbud om vandsport på fjorden såvel som ved Vesterhavet. På udflugter til nærliggende turistattraktioner og hyggelige kystbyer kan I opleve både kultur og gæstfrihed, og undervejs få enestående naturoplevelser.

Faciliteter

  • Opholdsrum

    • Gulv: Trælaminat
    • Gulvvarme
    • Fladskærms-TV
      1
    • Dock/Bluetooth enhed
    • Ekstra varmekilder
  • Soverum

    • Ekstra sovepl. alkove
      1
    • Ekstra sovepl. Hems
      1
    • Gulv: Trælaminat
    • Gulvvarme
    • Dobbeltsenge
      2
    • Enkeltsenge
      4
    • Sovepladser
      8
    • Soverum
      4
    • Ekstra sovepl. DB-sovesofa
      1
    • 1. soverum/sengestørrelser
      160x200
    • 2. soverum/sengestørrelser
      160x200
    • 3. soverum/sengestørrelser
      2x80x200
    • 4. soverum/sengestørrelser
      2x80x200
  • Køkken

    • Komfur: Induktion m. ovn
    • Køleskab
    • Opvaskemaskine
    • Mikroovn
    • Separat fryser /L
      80
  • Baderum

    • Gulvvarme bad
    • Antal badeværelser
      3
    • Tømmespa, antal pers.
      2
  • Objektinfo - Inde

    • Areal: Hus m²
      160
    • Byggeår
      2025
    • Barneseng
      1
    • Højstol
      1
    • Ikke ryger hus
    • Personantal
      10
    • Tyske tv-programmer
    • Tørretumbler
    • Vaskemaskine
    • Gratis fiber Internet
    • Varmepumpe luft til vand
    • Chromecast
    • Apple TV
    • Jubilæumsmønt er udleveret
  • Objektinfo - ude

    • Afstand hav
      1,1 km
    • Afstand indkøb
      250 m
    • Areal: Grund m²
      2500
    • Havemøbler
    • Solvogne
    • Terrasse: åben
    • Terrasse: Overdækket
    • Naturgrund
    • Klitgrund
    • Affald hentes:
      Mandag
    • Affald: Helårstømning
    • Affald: Liter
      360
    • Gasgrill
    • Ladestik til el-bil
  • Koncepter

    • Skiftedag: Fredag
    • Vandaflæsning
    • Varme: 48 timer før ankomst

Priser og kalender

Kalender

Ankomst
Forrige Næste
  • januar 2026
    mationtofr
    11234
    2567891011
    312131415161718
    419202122232425
    5262728293031
    6
  • februar 2026
    mationtofr
    51
    62345678
    79101112131415
    816171819202122
    9232425262728
    10
   Se om emnet er ledigt på den valgte dato
Ledig
Optaget
   Ankomst mulig
Varighed

Pris

Periode
Ankomst
Afrejse
Varighed
1 uge
Personer
Op til 10 personer

Bemærk

Ankomst er ikke valgt.
Aftale- og lejebetingelser