Feriehus tæt på strand og natur i Begtrup Vig

Sommerhus - 7 personer - Agersnerlevej - Begtrup Vig - 8420 - Knebel

7 personer
heraf 1 barn (0-11 år)
Emne nr.: 048-8241
Skønt feriehus tæt på den børnevenlige sandstrand i Begtrup Vig med ny tilbygning og smuk naturudsigt.
  • Soverum 3
  • Badeværelser 1
  • Boligareal 139 m²
  • Grundareal 1.600 m²
  • Husdyr Ikke tilladt
  • Tilbyder miniferie Ja
  • Afstand vand 200 m
  • Afstand indkøb 4 km
  • Highspeed internet Ja
  • Vaskemaskine Ja
  • Tørretumbler Ja
  • Opvaskemaskine Ja
  • Ikkeryger Ja

Beskrivelse

Kun 200 meter fra den smukke og børnevenlige sandstrand i Begtrup Vig finder du denne skønne ferieperle, der gennemgik en total renovering med en ny tilbygning i 2024. Huset og terrasserne ligger godt i læ af træer og buske og man kan allerede tidlig forår opleve en dejlig varme på syd-terrassen. Med sine store vinduer, lyse rum og kvalitetsbevidste indretning byder huset på en helt særlig charme i sine 3 plan niveauer omgivet af naturgrund. Du har fra huset udsigten over smukke Begtrup Vig i selve Mols Bjerge.

Velkommen indenfor
Når du træder indenfor, møder du et indbydende smagfuldt hjem med skønne detaljer. Her er de gamle træbjælker bevaret i stue- og køkkenalrum som giver rummet sit helt særlige særpræg. De dussede farver i husets gange og værelser komplimenter smukt hinanden og står i smuk kontrast til de massive ege-planker på gulvene. Det at huset har 3 niveauer kombineret med ovenlys-vinduer, skråvinduer samt vinduer til kip, giver et smukt lysindfald i alle husets rum, fra morgen til aften.
Huset rummer et nyt køkken (med opvaskemaskine) og en hyggelig spiseplads. Fra køkkenet har du direkte adgang til nord-øst terrasse med udsigt til skoven, hvor egern hopper rundt, og rådyr af og til kigger forbi. Stuen er åben og lys med store vinduer og adgang til endnu en sydlig terrasse, hvor du kan lytte til fuglene eller nyde synet af børnene, der leger på naturgrunden.
Huset har tre soveværelser med dobbeltsenge og plads til i alt seks voksne og ét barn. På 1. salen venter en hyggelig krog med panoramaudsigt – perfekt til afslapning med en god bog. Badeværelset er rummeligt og indeholder bruseniche, vaskemaskine og tørretumbler, samt adgang til endnu en sydvendt terrasse, hvor du finder en udendørs bruser – ideel til et frisk bad efter en tur på stranden.

Nyd livet udenfor
Med flere skønne terrasser omkring huset er der rig mulighed for at nyde udelivet. På den ene terrasse kan du slappe af med udsigt til skoven, mens den anden indbyder til hyggelige måltider og lange sommeraftener. Naturgrunden giver plads til fordybelse og afslapning. Blot 2 minutters gang har du næsten hele stranden for dig selv med den smukke udsigt over Vigen og mulighed for en dukkert, gåtur, leg, eller bare afslapning.

Kom tæt på de lokale oplevelser
Begtrup Vig Strand er et idyllisk ferieområde med den fineste sandstrand og lavvandet badeforhold, der gør den ideel for børnefamilier. Området ligger tæt på Nationalpark Mols Bjerge, hvor du kan tage på vandre- og cykelture i den betagende natur. I cykelafstand kan du ligeledes komme rundt til steder som Helgenæs, Isgård Gods, Skødshoved hvor naturen er formet smukt og dramatisk fra den sidste is-tid i Danmark. Pak picnic-kurven og ellers dukker der i ny og næ ishuse, gårdbutikker og mad-caféer op. En kort køretur på ca. 20 km bringer dig til Ebeltoft, hvor du kan besøge Det Gamle Rådhus, shoppe i de hyggelige gader eller spise på en af de lokale restauranter. På havnen kan du købe friskfanget fisk eller opleve moderne glaskunst på Glasmuseet. For børnefamilier er Ree Park Safari, Kattegatcentret og Djurs Sommerland fantastiske udflugtsmål – alle inden for en halv times kørsel fra huset. Se mange flere udflugtsmål til din ferie: https://issuu.com/erhverv_djursland/docs/djursland_turistguide_2025

Dette feriehus er det perfekte valg for dig, der drømmer om en ferie i skønne omgivelser, tæt på strand, natur og spændende oplevelser.




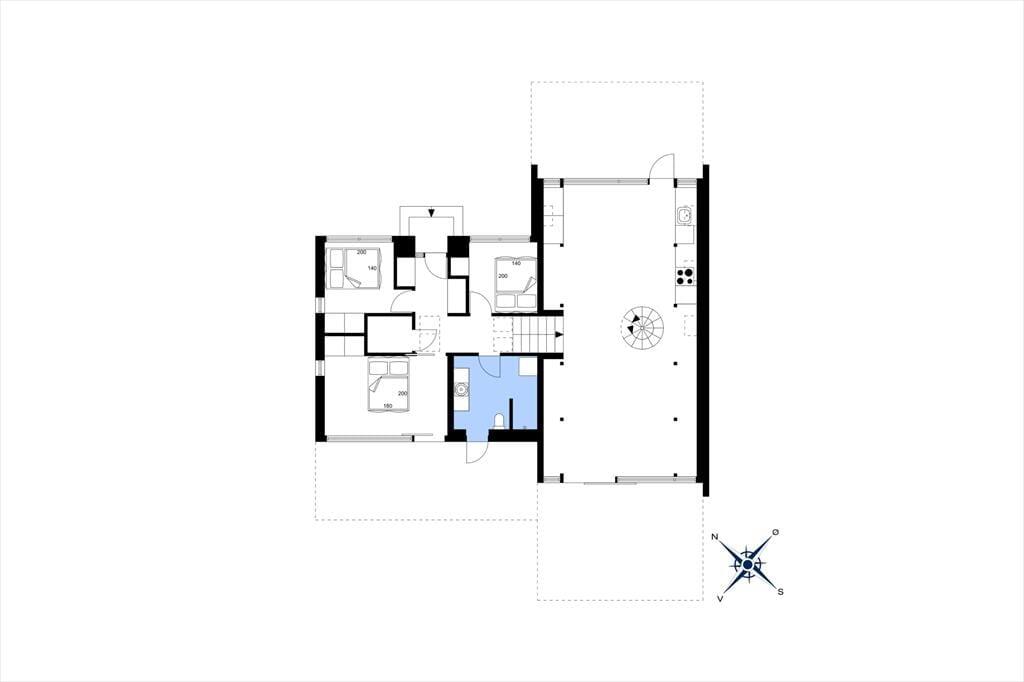
Rumindretning

  • Soveværelse
    • Dobbeltseng - 140*200
  • Soveværelse
    • Dobbeltseng - 180*200
  • Soveværelse
    • Dobbeltseng - 140*200
  • Badeværelse
  • Stue
  • Stue
  • Entre
  • Skur
  • Køkken-alrum

Vores gæsteanmeldelser Eksterne anmeldelser

5,0
Baseret på 1 vurdering
Vurderet d. 20-07-2025
5
(1)
4
(0)
3
(0)
2
(0)
1
(0)
Kommentarer
Ingen vurderinger har kommentarer.

Faciliteter

  • Hus Info

    • Antal børn
      1
    • Antal etager i lejemålet
      3
    • Antal voksne
      6
    • Bruser
    • Byggeår
      2024
    • Grundareal / Naturgrund
      1600 m²
    • Husareal
      139 m²
    • Panorama
      Fra 1 sal er der udsigt til vand
    • WC
  • Afstande

    • Afstand golfbane
      17 km
    • Afstand hav
      200 m
    • Afstand indkøb / Helårsbutik
      4 km
    • Afstand kyst
      200 m
    • Afstand restaurant
      6 km
    • Afstand strand / Sandstrand
      200 m
    • Afstand svømmehal
      19 km
  • Hårde hvidevarer

    • Elkedel
    • Emhætte
    • Kaffemaskine
    • Komfur
    • Køleskab
    • Køleskab med frys
    • Mikroovn
    • Opvaskemaskine
    • Ovn
    • Tørretumbler
    • Vaskemaskine
  • Multimedier

    • Chromecast
    • Gratis Wi-Fi - Over 100 Mbit
    • TV
    • Tysk TV
      ZDF og ARD
  • Udenfor

    • Grill
      Gasgrill
    • Havemøbler
    • Liggestole
    • Parasol
    • Parkering på grunden
    • Udendørs bruser
    • Åben terrasse
      30 m²
  • Diverse

    • 7 x Træ-/parketgulv
    • 9 x Gulvvarme
    • Sovesofa enkelt
    • Åbent køkken
  • Regler

    • Husdyr ikke tilladt
    • Opladning af elbil ikke tilladt
    • Rygning ikke tilladt
  • Pris inklusiv

    • Slutrengøring inkl.

Miniferie

Der er begrænset mulighed for miniferie hele året, typisk uden for højsæsonen.

Priser og kalender

Kalender

Ankomst
Forrige Næste
  • juni 2026
    mationtofr
    231234567
    24891011121314
    2515161718192021
    2622232425262728
    272930
    28
  • juli 2026
    mationtofr
    2712345
    286789101112
    2913141516171819
    3020212223242526
    312728293031
    32
   Se om emnet er ledigt på den valgte dato
Ledig
Optaget
   Ankomst mulig
Varighed

Pris

Periode
Ankomst
Afrejse
Varighed
1 uge
Personer
Op til 7 personer
heraf 1 barn (0-11 år)

Bemærk

Ankomst er ikke valgt.
Aftale- og lejebetingelser