Alternative emner
Flot bjælkehus med spa nær strand i Bagenkop
Sommerhus - 10 personer - Kløvervænget - 5935 - Bagenkop
10 personer
Emne nr.: 121-75-1506
Flot finsk bjælkehus med spa og nærhed til strand i hyggelige Bagenkop.
- Soverum 4
- Badeværelser 2
- Boligareal 186 m²
- Grundareal 700 m²
- Husdyr Ikke tilladt
- Tilbyder miniferie Ja
- Afstand vand 450 m
- Afstand indkøb 600 m
- Spa Ja
- Sauna Ja
- Internet Ja
- Parabol/kabel TV Ja
- Vaskemaskine Ja
- Tørretumbler Ja
- Opvaskemaskine Ja
- Ikkeryger Ja
Beskrivelse
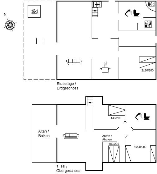
Flot finsk bjælkehus i 2 plan beliggende i hyggelige Bagenkop. Huset er lyst og med god plads. På grunden er der god plads til udendørs aktiviteter. På terrassen er der indbygget stort udespa, og fra altanen er der udsigt ud over området og kig til vandet.
Huset ligger centralt i byen, og der er både indkøb, legeplads, marina og strand i kort gåafstand. Ved stranden er der i sommerhalvåret opsat badebro.
Bemærk at der på hemsene er to boxmadrasser og, at de to af sovepladserne er i alkove på 1. salen.
Indretning
Sommerhuset egner sig til 10 personer samt 1 barn op til 3 år. Ferieboligen er på 186 m², er i 2 plan, og er bygget i 2010. Det er ikke tilladt at medbringe husdyr. Hele ferieboligen har gulvvarme. Ferieboligen har vaskemaskine. Tørretumbler. Frysekapacitet på 70 liter. Til de små er der 1 stk. barnestol.
Udenfor
Ferieboligen er beliggende på en 700 m² stor havegrund. Der er 450 m til havet. Der er en badebro i nærheden. Nærmeste forretning er beliggende i en afstand af 600 m. Der er en golfbane i en afstand af 6400 m. Til ferieboligen hører åbent terrasseareal. Udgang til altan. Gynge. Legetårn. Rutchebane. Der ligger en legeplads i en afstand af 375 m.
Soveforhold
Der er i alt 4 soveværelser. Sovepladserne fordeler sig på: 6 sovepladser i dobbeltsenge. 4 sovepladser i enkeltsenge. 2 sovepladser i alkove.- 4 af disse sovepladser befinder sig på husets hemse. Derudover er der 1 stk. barneseng.
Køkken
Køkkenet er udstyret med 1 køleskab. Der er 4 induktionskogeplader, varmluftovn, mikrobølgeovn samt opvaskemaskine.
Toilet og bad
Der er 2 badeværelser med bruseniche og 2 toiletter. Der er gulvvarme på 2 badeværelser. I saunaen er der mulighed for afslapning.
Spa
Der er mulighed for afslapning i indendørs spa til 2 personer. Der er mulighed for afslapning i udendørs standvandsspa til 6 personer.
Multimedier
I ferieboligen findes 1 Smart-TV. Der er mindst 4 danske kanaler. 1-3 svenske kanaler. 1-3 norske kanaler. Mindst 4 tyske kanaler. Der er trådløst internet til rådighed.
Værd at vide
Ingen udlejning til ungdomsgrupper, hvor alle er 15-25 år. Rygning ikke tilladt. Ved overtrædelse af forbuddet opkræves et gebyr på minimum DKK 3.000,-.
Indretning
Sommerhuset egner sig til 10 personer samt 1 barn op til 3 år. Ferieboligen er på 186 m², er i 2 plan, og er bygget i 2010. Det er ikke tilladt at medbringe husdyr. Hele ferieboligen har gulvvarme. Ferieboligen har vaskemaskine. Tørretumbler. Frysekapacitet på 70 liter. Til de små er der 1 stk. barnestol.
Udenfor
Ferieboligen er beliggende på en 700 m² stor havegrund. Der er 450 m til havet. Der er en badebro i nærheden. Nærmeste forretning er beliggende i en afstand af 600 m. Der er en golfbane i en afstand af 6400 m. Til ferieboligen hører åbent terrasseareal. Udgang til altan. Gynge. Legetårn. Rutchebane. Der ligger en legeplads i en afstand af 375 m.
Soveforhold
Der er i alt 4 soveværelser. Sovepladserne fordeler sig på: 6 sovepladser i dobbeltsenge. 4 sovepladser i enkeltsenge. 2 sovepladser i alkove.- 4 af disse sovepladser befinder sig på husets hemse. Derudover er der 1 stk. barneseng.
Køkken
Køkkenet er udstyret med 1 køleskab. Der er 4 induktionskogeplader, varmluftovn, mikrobølgeovn samt opvaskemaskine.
Toilet og bad
Der er 2 badeværelser med bruseniche og 2 toiletter. Der er gulvvarme på 2 badeværelser. I saunaen er der mulighed for afslapning.
Spa
Der er mulighed for afslapning i indendørs spa til 2 personer. Der er mulighed for afslapning i udendørs standvandsspa til 6 personer.
Multimedier
I ferieboligen findes 1 Smart-TV. Der er mindst 4 danske kanaler. 1-3 svenske kanaler. 1-3 norske kanaler. Mindst 4 tyske kanaler. Der er trådløst internet til rådighed.
Værd at vide
Ingen udlejning til ungdomsgrupper, hvor alle er 15-25 år. Rygning ikke tilladt. Ved overtrædelse af forbuddet opkræves et gebyr på minimum DKK 3.000,-.
Vores gæsteanmeldelser Eksterne anmeldelser
Faciliteter
-
Adgang til ferieboligen
-
Nøgleboks med kode
-
-
Bemærk
-
Ingen ungdomsgrupper efter anmodning
-
Rygning er forbudt
-
-
Indretning
-
2 niveauer
-
Antal børn (0-3 år)1
-
Antal voksne inkl. 4-11 år10
-
Bebygget areal186 m²
-
Byggeår2010
-
Feriebolig
-
Frysekapacitet (antal liter)70
-
Gulvvarme
-
Højstol1
-
Tørretumbler1
-
Vaskemaskine1
-
-
Køkken
-
Antal induktionskogeplader4
-
Køleskab1
-
Mikrobølgeovn1
-
Opvaskemaskine1
-
Varmluftovn1
-
-
Multimedier
-
> 3 danske kanaler
-
> 3 tyske kanaler
-
0-3 norske kanaler
-
0-3 svenske kanaler
-
Antal tv'er1
-
Smart-Tv1
-
Trådløst internet
-
-
Soveforhold
-
Alkove (antal sovepladser)2
-
Antal soveværelser4
-
Barneseng1
-
Dobbeltseng (antal sovepladser)6
-
Enkeltseng (antal sovepladser)4
-
Hems (antal sovepladser)
-
Soveplads ikke i soveværelset
-
-
Spa
-
Indendørs spabad (antal personer)2
-
Udendørs forfyldt spabad (antal personer)6
-
-
Toilet og bad
-
Antal badeværelser2
-
Antal toiletter2
-
Brusekabine
-
Gulvvarme2
-
Sauna
-
-
Udenfor
-
Anlagt have
-
Butik600 m
-
Glide
-
Golfbane6,4 km
-
Hav450 m
-
Legeplads375
-
Legetårn
-
Størrelse af grunden700 m²
-
Swing
-
Terrasse
-
Terrasse
-
Træmole
-
Miniferie
Der er begrænset mulighed for miniferie hele året, typisk uden for højsæsonen.
Priser og kalender
Kalender
Varighed
Pris
Periode
- Ankomst
- Afrejse
- Varighed
- 1 uge
Personer
Op til 10 personer
Bemærk
Ankomst er ikke valgt.