Alternative emner
Sommerhus med pool, sauna og stor terrasse
Sommerhus - 10 personer - Furvej - Amtoft - 7742 - Vesløs
10 personer
Emne nr.: 121-30-2023
Lækkert sommerhus med indendørs pool, sauna og stor terrasse tæt på Limfjorden og børnevenlig strand.
- Soverum 4
- Badeværelser 2
- Boligareal 163 m²
- Grundareal 1.800 m²
- Husdyr 2
- Tilbyder miniferie Ja
- Afstand vand 300 m
- Afstand indkøb 700 m
- Swimmingpool inde Ja
- Spa Ja
- Sauna Ja
- Internet Ja
- Parabol/kabel TV Ja
- Brændeovn Ja
- Vaskemaskine Ja
- Tørretumbler Ja
- Opvaskemaskine Ja
- Ikkeryger Ja
- Ladestander til elbil Ja
- Energivenligt Ja
Beskrivelse
Et lækkert sommerhus med swimmingpool beliggende i fredelige omgivelser ikke langt fra Limfjorden og den børnevenlige strand. Her er god plads til udendørs aktiviteter og leg og den store terrasse byder på rig mulighed for at grille og spise udendørs.
Huset har i 2025 gennemgået en omfattende renovering, hvor værelserne er renoverede med nye gulve og der er opsat nye kommoder, hylder samt belysning.
Der findes et helt nyt køkken med induktionskogeplade, varmluftovn, opvaskemaskine og køle-/fryseskab samt mikrobølgeovn.
Udvendig er huset nymalet og hele grunden er indhegnet. Desuden findes der en ny grill.
Huset er udstyret med 2 energibesparende varmepumper, hvoraf den ene opvarmer vandet i swimmingpoolen og den anden opvarmer huset.
Der findes ekstra TV, som kan bruges til diverse spil (egen spillekonsol medbringes). Der er installeret fiberbredbånd – TV2 og TV3 kan modtages.
Bemærk, at der findes 2 gode hemse, som begge er indrettet med 1 soveplads.
Indretning
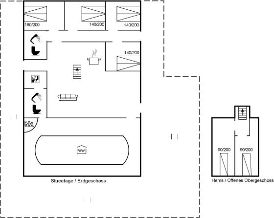
Sommerhuset egner sig til 10 personer. Ferieboligen er på 163 m² og er bygget i 1993. I 2025 gennemgik ferieboligen en delvis renovering. Det er tilladt at medbringe 2 husdyr. Ferieboligen er udstyret med energibesparende varmepumpe. Ferieboligen har vaskemaskine. Tørretumbler. Frysekapacitet på 100 liter. Der er desuden brændeovn. Til de små er der 1 stk. barnestol.
Udenfor
Ferieboligen er beliggende på en 1800 m² stor naturgrund. Der er 15000 m til havet. Der er 300 m til fjorden. Nærmeste forretning er beliggende i en afstand af 700 m. Til ferieboligen hører 100 m² terrasseareal. Gynge. Sandkasse. Grill til rådighed. Der er installeret stik til opladning af elbil. Parkering ved ferieboligen.
Swimmingpool
I den indendørs swimmingpool er der mulighed for leg og hyggeligt samvær. Swimmingpoolen måler op til 3 m i bredden, 8 m i længden og den er op til 1,2 m dyb. Vandet er mellem 24 og 28° C varmt.
Soveforhold
Der er i alt 4 soveværelser. Sovepladserne fordeler sig på: 8 sovepladser i dobbeltsenge. 2 sovepladser i enkeltsenge. 2 af disse sovepladser fordeler sig på 2 hemse. Derudover er der 1 stk. barneseng.
Køkken
Køkkenet er udstyret med 1 køleskab. Der er 4 induktionskogeplader, varmluftovn, mikrobølgeovn samt opvaskemaskine.
Toilet og bad
Der er 2 badeværelser med bruseniche og 2 toiletter I saunaen er der mulighed for afslapning.
Spa
Der er mulighed for afslapning i indendørs spa til 2 personer.
Multimedier
I ferieboligen er der 1 TV. Stereoanlæg. CD-afspiller. Der er mindst 4 danske kanaler. Mindst 4 tyske kanaler. Der er gratis internet via kabel til rådighed. Der er trådløst internet til rådighed.
Værd at vide
Ingen udlejning til ungdomsgrupper, hvor alle er 15-25 år. Rygning ikke tilladt. Ved overtrædelse af forbuddet opkræves et gebyr på minimum DKK 3.000,-.
Huset har i 2025 gennemgået en omfattende renovering, hvor værelserne er renoverede med nye gulve og der er opsat nye kommoder, hylder samt belysning.
Der findes et helt nyt køkken med induktionskogeplade, varmluftovn, opvaskemaskine og køle-/fryseskab samt mikrobølgeovn.
Udvendig er huset nymalet og hele grunden er indhegnet. Desuden findes der en ny grill.
Huset er udstyret med 2 energibesparende varmepumper, hvoraf den ene opvarmer vandet i swimmingpoolen og den anden opvarmer huset.
Der findes ekstra TV, som kan bruges til diverse spil (egen spillekonsol medbringes). Der er installeret fiberbredbånd – TV2 og TV3 kan modtages.
Bemærk, at der findes 2 gode hemse, som begge er indrettet med 1 soveplads.
Indretning
Sommerhuset egner sig til 10 personer. Ferieboligen er på 163 m² og er bygget i 1993. I 2025 gennemgik ferieboligen en delvis renovering. Det er tilladt at medbringe 2 husdyr. Ferieboligen er udstyret med energibesparende varmepumpe. Ferieboligen har vaskemaskine. Tørretumbler. Frysekapacitet på 100 liter. Der er desuden brændeovn. Til de små er der 1 stk. barnestol.
Udenfor
Ferieboligen er beliggende på en 1800 m² stor naturgrund. Der er 15000 m til havet. Der er 300 m til fjorden. Nærmeste forretning er beliggende i en afstand af 700 m. Til ferieboligen hører 100 m² terrasseareal. Gynge. Sandkasse. Grill til rådighed. Der er installeret stik til opladning af elbil. Parkering ved ferieboligen.
Swimmingpool
I den indendørs swimmingpool er der mulighed for leg og hyggeligt samvær. Swimmingpoolen måler op til 3 m i bredden, 8 m i længden og den er op til 1,2 m dyb. Vandet er mellem 24 og 28° C varmt.
Soveforhold
Der er i alt 4 soveværelser. Sovepladserne fordeler sig på: 8 sovepladser i dobbeltsenge. 2 sovepladser i enkeltsenge. 2 af disse sovepladser fordeler sig på 2 hemse. Derudover er der 1 stk. barneseng.
Køkken
Køkkenet er udstyret med 1 køleskab. Der er 4 induktionskogeplader, varmluftovn, mikrobølgeovn samt opvaskemaskine.
Toilet og bad
Der er 2 badeværelser med bruseniche og 2 toiletter I saunaen er der mulighed for afslapning.
Spa
Der er mulighed for afslapning i indendørs spa til 2 personer.
Multimedier
I ferieboligen er der 1 TV. Stereoanlæg. CD-afspiller. Der er mindst 4 danske kanaler. Mindst 4 tyske kanaler. Der er gratis internet via kabel til rådighed. Der er trådløst internet til rådighed.
Værd at vide
Ingen udlejning til ungdomsgrupper, hvor alle er 15-25 år. Rygning ikke tilladt. Ved overtrædelse af forbuddet opkræves et gebyr på minimum DKK 3.000,-.
Vores gæsteanmeldelser Eksterne anmeldelser
Faciliteter
-
Adgang til ferieboligen
-
Nøgleboks med kode
-
-
Bemærk
-
Ingen ungdomsgrupper efter anmodning
-
Rygning er forbudt
-
-
Indretning
-
Antal voksne inkl. 4-11 år10
-
Bebygget areal163 m²
-
Brændeovn1
-
Byggeår1993
-
Feriebolig
-
Frysekapacitet (antal liter)100
-
Husdyr2
-
Højstol1
-
Renoveringsår2025
-
Tørretumbler1
-
Varmepumpe
-
Vaskemaskine1
-
-
Køkken
-
Antal induktionskogeplader4
-
Køleskab1
-
Mikrobølgeovn1
-
Opvaskemaskine1
-
Varmluftovn1
-
-
Multimedier
-
> 3 danske kanaler
-
> 3 tyske kanaler
-
Antal tv'er1
-
CD afspiller
-
Internet via kabel
-
Stereo sæt
-
Trådløst internet
-
-
Soveforhold
-
Antal soveværelser4
-
Barneseng1
-
Dobbeltseng (antal sovepladser)8
-
Enkeltseng (antal sovepladser)2
-
Hems (antal sovepladser)
-
Soveplads ikke i soveværelset
-
-
Spa
-
Indendørs spabad (antal personer)2
-
-
Swimmingpool
-
Indendørs swimmingpool
-
Svømmebassinets bredde3
-
Svømmebassinets dybde1,2
-
Svømmebassinets længde8
-
-
Toilet og bad
-
Antal badeværelser2
-
Antal toiletter2
-
Brusekabine
-
Sauna
-
-
Udenfor
-
Butik700 m
-
Elbil hjemmeoplader
-
Fjord300 m
-
Grill1
-
gynge
-
Hav15 km
-
Natursted
-
Parkeringsplads ved huset
-
Sandkasse
-
Størrelse af grunden1800 m²
-
Terrasse100 m²
-
Miniferie
Der er begrænset mulighed for miniferie hele året, typisk uden for højsæsonen.
Priser og kalender
Kalender
Varighed
Pris
Periode
- Ankomst
- Afrejse
- Varighed
- 1 uge
Personer
Op til 10 personer
Bemærk
Ankomst er ikke valgt.