Charmerende sommerhus tæt på strand i Øster Hurup

Sommerhus - 8 personer - Granly - Øster Hurup - 9560 - Hadsund

8 personer
Emne nr.: 053-OH406
Charmerende sommerhus i Øster Hurup med stor terrasse og kort afstand til børnevenlig sandstrand.
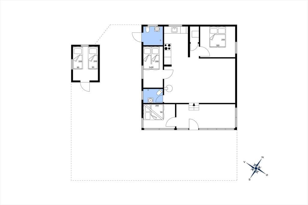
  • Soverum 4
  • Badeværelser 2
  • Boligareal 69 m²
  • Grundareal 841 m²
  • Husdyr 2
  • Tilbyder miniferie Ja
  • Afstand vand 220 m
  • Afstand indkøb 1.480 m
  • Internet Ja
  • Parabol/kabel TV Ja
  • Brændeovn Ja
  • Aircondition Ja
  • Vaskemaskine Ja
  • Opvaskemaskine Ja
  • Ikkeryger Ja
  • Energivenligt Ja

Beskrivelse

Ferieidyllen får fine betingelser i dette charmerende sommerhus med plads til 8 personer. Huset ligger på en stor afskærmet grund med skønne terrasser, og det tager blot tre minutter at ned til den dejlige sandstrand.

Indretning

Huset emmer af ”rigtig” sommerhuscharme med sin sortmalede træfacade og hvide vinduesrammer. Indenfor er der lyst og indbydende, og indretningen sætter ferieturens hyggelige samvær godt i scene. Husets hjerte er det store opholdsrum i forskudte niveauer, der ligger i åben forbindelse med køkkenet. Lyset strømmer ind gennem de mange vinduespartier, og der er fint kig til det grønne udenfor. En brændeovn sørger for at tilføre ekstra hygge og varme på de kølige aftener. Der er tre dobbeltværelser i huset samt to badeværelser. I tillæg er der et anneks med endnu to sovepladser.

Udendørs

Når man ankommer til den fredfyldte grund, mærker man med det samme freden og roen sænke sig. Grunden er omkranset af høje træer og tæt beplantning, så man virkelig får oplevelsen af at være i sin egen private oase i sommerlandet. Rul et tæppe på græsplænen og lad dig varme igennem af sommersolen, eller slå dig ned i en liggestol på terrassen med en god krimi. På det store sammenhængende terrasseareal kan I servere frokost i det grønne og tænde op i grillen, når dagen går på hæld. Det er sommerhusliv, når det er bedst.

Beliggenhed

Fra huset er der blot 300 meter ned til en dejlig børnevenlig badestrand – her behøver I bare at kaste et håndklæde over skulderen og gå de få skridt ned til vandet, når I får lyst til en dukkert. Huset ligger i udkanten af Øster Hurup, som man hurtigt når til fods eller på cykel. Her er der om sommeren er en helt enestående feriestemning med masser af liv og hyggelige cafeer og spisesteder. Dagligvareindkøbene kan også klares her. Skal der tankes mere op på oplevelseskontoen, kommer I let til Lille Vildmose, Djurs Sommerland eller Randers Regnskov - mulighederne er mange med feriebase i Øster Hurup.

GRATIS! Udlån af trækvogne, barnestole og barnesenge (kan hentes og afleveres på det nærmeste bureau).

Vores gæsteanmeldelser Eksterne anmeldelser

3,3
Baseret på 6 vurderinger
Sidste vurdering fra d. 13-07-2025
5
(1)
4
(2)
3
(2)
2
(0)
1
(1)
Kommentarer
4 vurderinger har kommentarer på dansk.
6 voksne 1 barn 0 husdyr 7 overnatninger 2025 juli
Hyggeligt hus. Dog er det som det fleste steder umuligt at finde en kniv der ikke er sløv.
8 voksne 0 børn 2 husdyr 3 overnatninger 2021 oktober
pladsen omkring spisebordet er virkelig dårlig. Man skal op og gå i vindueskarmen for at komme omkring bordet , og dette til trods for at vi er meget slanke. Trappetrinnet op i stuen sidder løs og der er “ nærved ulykke”. Der mangler knage og hylder til toilettasker , der mangler sengeborde, termokande til the, skæreknive og sakse er dårlige, Brændeovnen skal udskiftes og både kaffemaskine samt elkedel bør renses. Der mangler gulv og fliseskraber til baderummet især da vandet løber ud over hele gulvet. Huset trænger til et ordentligt eftersyn før annonceret udlejning. Belysning over til toiletter som har dør fra terrassen er virkelig dårlig, og en lommelygte er nødvendig når huset lejes ud året rundt.
6 voksne 2 børn 2 husdyr 7 overnatninger 2021 juli
For lidt skabsplads i værelser og på badeværelserne.

Faciliteter

  • Hus Info

    • 2 x Bruser
    • 2 x WC
    • Anneksareal
      10 m²
    • Antal husdyr
      2
    • Antal voksne
      8
    • Byggeår
      1962
    • Grundareal / Have
      841 m²
    • Husareal
      69 m²
    • Renoveringsår
      2020
  • Afstande

    • Afstand fjord
      10 km
    • Afstand golfbane
      15,6 km
    • Afstand indkøb / Helårsbutik
      1,5 km
    • Afstand restaurant
      1,4 km
    • Afstand strand / Sandstrand
      220 m
  • Energi / Opvarmning

    • 3 x Elvarme
    • Brændeovn
    • Varmepumpe / Med køl
  • Hårde hvidevarer

    • Elkedel
    • Emhætte
    • Fryser
      110
    • Kaffemaskine
    • Kogeplader
    • Køleskab
    • Mikroovn
    • Opvaskemaskine
    • Ovn
    • Vaskemaskine
  • Multimedier

    • Dansk tv
      Inkl. TV2
    • Kabel-TV
      Stofa
    • TV
    • Tysk TV
    • Wi-FI
  • Ekstra

    • Barneseng
  • Udenfor

    • Grill
    • Gynge
    • Havemøbler
    • Liggestole
      2
    • Parkering på grunden
    • Terrasse
  • Diverse

    • 2 x Dobbeltseng 2x90x200
    • 2 x Enkeltseng 90x200
    • Affaldsforhold
    • Gulvvarme
    • Køjeseng //90x200
  • Regler

    • Opladning af elbil ikke tilladt
    • Rygning ikke tilladt
  • Pris inklusiv

    • Slutrengøring inkl.
    • Vand inkl.

Miniferie

Der er begrænset mulighed for miniferie hele året, typisk uden for højsæsonen.

Priser og kalender

Kalender

Ankomst
Næste
   Se om emnet er ledigt på den valgte dato
Ledig
Optaget
   Ankomst mulig
Varighed

Pris

Periode
Ankomst
Afrejse
Varighed
1 uge
Personer
Op til 8 personer

Bemærk

Ankomst er ikke valgt.
Aftale- og lejebetingelser