Hyggeligt og rustikt sommerhus i Ørby på Samsø

Sommerhus - 6 personer - Bakkevej - Ørby - 8305 - Samsø

6 personer
heraf 2 børn (0-11 år)
Emne nr.: 101-20322
Hyggeligt ældre sommerhus i Ørby på Samsø med rolig have og unikke, rustikke detaljer.
  • Soverum 3
  • Badeværelser 1
  • Boligareal 70 m²
  • Grundareal 280 m²
  • Husdyr Ikke tilladt
  • Tilbyder miniferie Ja
  • Afstand vand 2 km
  • Afstand indkøb 4.300 m
  • Internet Ja
  • Vaskemaskine Ja
  • Opvaskemaskine Ja
  • Ikkeryger Ja
  • Ladestander til elbil Ja
  • Energivenligt Ja

Beskrivelse

Her i udkanten af landsbyen Ørby ligger dette hyggelige, men ældre sommerhus. I haven er der ro og åben for sol fra tidligt på dagen til de sidste stråler om aftenen. Huset deler grund med en anden feriebolig, men I kan være her helt uforstyrret.

Velkommen indenfor
Det gamle landsbyhus har sin helt egen atmosfære med sprossede vinduer, gamle døre, rustikke vægge og niveauforskel fra rum til rum. Huset er delvis renoveret, og der er smukt trægulv i stuer og soverum. Stuen vender mod vest, og her er plads til at sætte sig godt til rette i sofaen og tænde for TV´et eller slappe helt af med en god bog. Her er også en ekstra sengeplads.
Spisestuen ligger lige ved siden af køkkenet, der er renoveret i landlig stil og veludstyret med bl.a. opvaskemaskine. Køkkenet fungerer altså fint til, når I skal tilberede feriens måltider, inden I begiver jer ud for at opleve Samsø.
Udover en sengeplads i stuen, er der yderligere tre soveværelser, så der er god plads til, at op til 4 voksne og 2 børn kan fordele sig i huset. Det ene soverum har to enkeltsenge, mens de andre soverum er mindre og derfor indrettet med en enkeltseng. Dette hus er ideelt til dig, der gerne vil opleve landsbyidyl i et hyggeligt, ældre sommerhus.
I huset finder du plads til fordybelse, så det egner sig også perfekt til, hvis du skal til Samsø for at skrive eller studere. Her kan du regne med uforstyrret ro samtidig med, at du er tæt på landsbyen og flere af Samsøs seværdigheder.

Nyd livet udenfor
Ferieboligen er sammenbygget med ejers egen feriebolig, så grunden deles med en anden bolig. Udendørsarealerne er naturligvis delt op, så du kan være uforstyrret i haven mod vest omgivet af hæk og på en lille terrasse, hvor du kan benytte dig af en grill og gode havemøbler. Her kan du nyde de rolige omgivelser helt uforstyrret, og så kan du også følge årets gang på markerne, der omkranser huset mod øst. Der er parkeringsmuligheder nord for huset, og du finder sommerhuset i udkanten af Ørby på en lille grusvej. Huset ligger altså både roligt i den hyggelige landsby og naturskønne omgivelser.

Kom tæt på de lokale oplevelser
Ørby ligger på den sydlige del af Samsø, og herfra er det oplagt at gå en tur i Brattingsborg Skov mellem de imponerende høje bøgetræer og ud til vandet. Det er smukt at gå en tur i skoven året rundt. Det er også oplagt at besøge Vesborg Fyr, der ligger på den aller sydligste del af Samsø. Kommer du helt op i fyrtårnet kan du nyde den enestående udsigt til både Jylland, Sjælland og Fyn.
De små, bakkede veje kan også føre dig til Brundby, hvor Brundby Hotel byder på god mad og musik. Længere nordpå finder du den flot beliggende 18-hullers golfbane lige ud til vandet. Året rundt og særlig i sommermånederne er der jævnligt kulturelle oplevelser lige om hjørnet, f.eks. kunstudstillinger og diverse festivaler med opera, jazz og rock/pop.
Ballen lystbådehavn ligger kun 4,5 kilometer fra huset, og her finder du også et bredt udvalg af restauranter, butikker og en dejlig badestrand.

På det nordlige Samsø må du ikke snyde dig selv for en gåtur i Nordby Bakker, der altid byder på smukke naturoplevelser. I Nordby er det også oplagt at spise en frokost eller is ved det hyggelige gadekær.


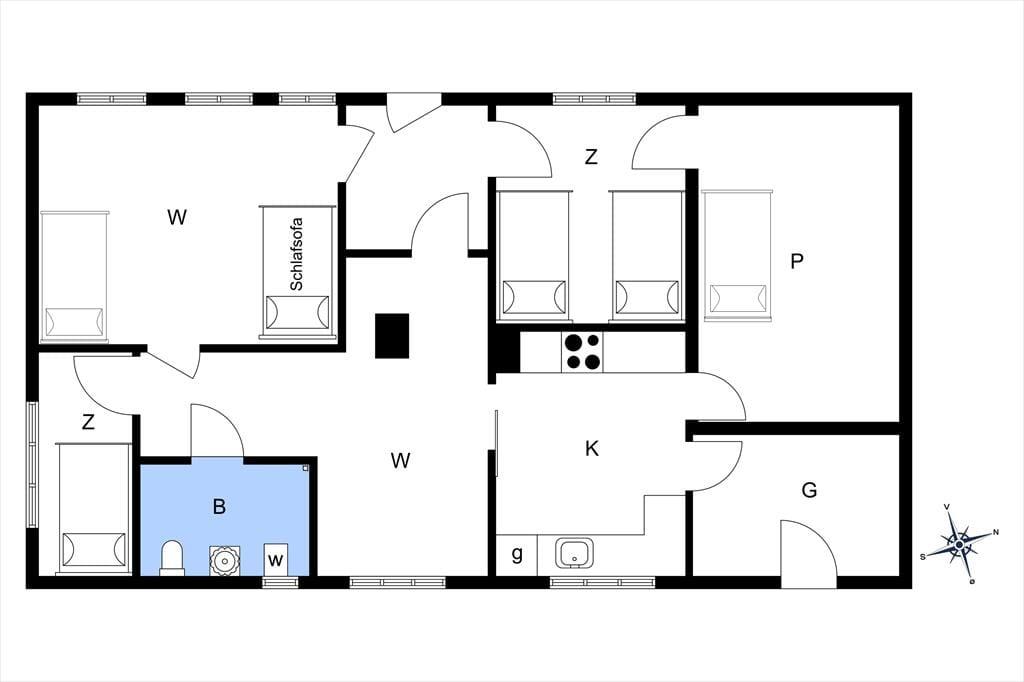
Rumindretning

  • Soveværelse
    • Enkelt seng - 90 x 200
    • Enkelt seng - 90 x 200
  • Soveværelse
    • Enkelt seng - 90x200
  • Soveværelse
    • Enkelt seng - 90x200
  • Stue
    • Enkelt seng - 90 x 200 cm

Vores gæsteanmeldelser Eksterne anmeldelser

2,6
Baseret på 8 vurderinger
Sidste vurdering fra d. 24-08-2024
5
(0)
4
(1)
3
(4)
2
(2)
1
(1)
Kommentarer
4 vurderinger har kommentarer på dansk.
2 voksne 0 børn 0 husdyr 7 overnatninger 2022 september
Meget utæt, døre kan ikke åbnes/lukkes. Selv om huset er forsøgt renoveret er det ikke godt lavet. Badeværelses brusekabine har fald i forkert retning så der står vand i bruser kabinen, gulv fliser ujævnt lagt ned,- et lille udplug af mange andre ting.
4 voksne 1 barn 0 husdyr 7 overnatninger 2021 august
Huset kunne godt have været bedre rengjort - der trænger til en hovedrengøring og så lugtede der meget sf fugt. Men et dejligt sted med skønne omgivelser.
4 voksne 0 børn 0 husdyr 7 overnatninger 2021 august
Rigtig dejlig bolig til prisen. Rådyr og harer i haven og kig til havet. Fem stjerner hvis der havde været tv.

Faciliteter

  • Hus Info

    • Antal børn
      2
    • Antal etager i lejemålet
      1
    • Antal voksne
      4
    • Byggeår
      1900
    • Grundareal / Delvis indhegnet grund
      280 m²
    • Husareal
      70 m²
    • Udsigt over landskab
  • Afstande

    • Afstand færge
      4 km
    • Afstand golfbane
      8,8 km
    • Afstand hav
      2 km
    • Afstand indkøb / Helårsbutik
      4,3 km
    • Afstand restaurant
      2,3 km
    • Afstand strand / Sand-/stenstrand
      2,7 km
    • Afstand tennis
      2,7 km
  • Energi / Opvarmning

    • Elvarme
    • Varmepumpe / Uden køl
      Uden køl
  • Hårde hvidevarer

    • Elkedel
    • Kaffemaskine
    • Komfur
      Keramisk - IKKE emhætte
    • Køleskab med frys
    • Opvaskemaskine
    • Strygebræt
    • Strygejern
    • Vaskemaskine
  • Multimedier

    • Chromecast
    • Dansk tv
      DR, TV2. TV5
    • Gratis Wi-Fi - Under 20 Mbit
    • TV
      Der er danske og tyske TV-kanaler. Derudover er det muligt at streame eget TV via mobil/tablet.
    • Tysk TV
      ZDF, NDR via Chromecast4
  • Ekstra

    • Barnestol
    • Golfferie
  • Udenfor

    • Grill
      Gasgrill
    • Havemøbler
    • Liggestole
      2
    • Parasol
    • Parkering på grunden
  • Diverse

    • 3 x Flise-/klinkegulv
    • 3 x Træ-/parketgulv
    • Separat køkken
    • Sovesofa dobbelt
      180X200
  • Regler

    • Husdyr ikke tilladt
    • Opladning af elbil tilladt / CEE-stik med 16 ampere forefindes, medbring kabel
    • Rygning ikke tilladt
  • Pris inklusiv

    • Slutrengøring inkl.

Miniferie

Der er begrænset mulighed for miniferie hele året, typisk uden for højsæsonen.

Priser og kalender

Kalender

Ankomst
Forrige Næste
   Se om emnet er ledigt på den valgte dato
Ledig
Optaget
   Ankomst mulig
Varighed
Personer

Pris

Periode
Ankomst
Afrejse
Varighed
1 uge
Personer
Ingen personer er valgt

Bemærk

Ankomst er ikke valgt.
Der er ikke valgt personer.
Aftale- og lejebetingelser