Alternative emner
Ferielejlighed - 6 personer - Ramsauerstraße - 8970 - Schladming
6 personer
Emne nr.: 532-274294
- Soverum 2
- Badeværelser 2
- Boligareal 63 m²
- Husdyr Ikke tilladt
- Tilbyder miniferie Ja
- Sauna Ja
- Internet Ja
- Parabol/kabel TV Ja
- Opvaskemaskine Ja
- Ikkeryger Ja
Beskrivelse
Beskrivelsen foreligger desværre ikke på Dansk. Se teksten på Tysk nedenfor, eller se den maskinoversatte tekst på Dansk.
Gustav by Schladming-Appartements, TOP 4 "Gust" FOR 6 - SMART
GUSTAV APARTMENTS – LIKE A LOCAL. STADT ODER BERGE - BEIDES DA. BEIDES GANZ NAH
Einschlafen mit dem Leben in der Stadt, Aufwachen inmitten neuer Erinnerungen. Gustav de Vernouillet, einer der Pioniere des Schladminger Tourismus, wusste dies schon vor mehr als 150 Jahren. Genieß die (Vor)Stadt wie ein Einheimischer, es gibt nichts was Sie nicht hat. Sei es der Duft des selbst hergestellten Wacholderspecks des benachbarten, ältesten Metzgers oder das Frühstücksemmel vom nahen Bäcker, ein Weidmannsheil der einheimischen Jäger oder ein Mahlzeit in den umliegenden Restaurants. Kurz gesagt: Von den Gustav Apartments kann man jederzeit ins Treiben der Stadt aufbrechen, während man sich selbst einmal treiben lässt.
Hey Neighbour:
-700 Meter zum Planet Planai
-700 Meter zum Planai West
-300 Meter bis zur Bushaltestelle Lendplatz
-300 Meter zu den Supermärkten
-100 Meter zum Minigolf Platz
-100 Meter zum Friseur oder Kosmetik Studio
-200 Meter zur Shopping Meile
-1100 Meter zum Kongress Schladming
-50 Meter ins Zentrum
Eben alles was man so braucht. By the way: Das Auto kannst du in der Tiefgarage lassen. Servus im Gustav – 8 Appartements von Smart bis Sky – außerdem mit dabei: Private Sauna im Appartement, eigene Terrasse oder Balkon Top 8 hat keine Balkon, komplett ausgestattete Küchen mit allem PiPaPo, 1-2 Schlafzimmer und Bäder sowie eine Aussicht nach Westen auf die Hochwurzen und das eine oder andere Chi-Chi.
Habediehre Gustav!
Einschlafen mit dem Leben in der Stadt, Aufwachen inmitten neuer Erinnerungen. Gustav de Vernouillet, einer der Pioniere des Schladminger Tourismus, wusste dies schon vor mehr als 150 Jahren. Genieß die (Vor)Stadt wie ein Einheimischer, es gibt nichts was Sie nicht hat. Sei es der Duft des selbst hergestellten Wacholderspecks des benachbarten, ältesten Metzgers oder das Frühstücksemmel vom nahen Bäcker, ein Weidmannsheil der einheimischen Jäger oder ein Mahlzeit in den umliegenden Restaurants. Kurz gesagt: Von den Gustav Apartments kann man jederzeit ins Treiben der Stadt aufbrechen, während man sich selbst einmal treiben lässt.
Hey Neighbour:
-700 Meter zum Planet Planai
-700 Meter zum Planai West
-300 Meter bis zur Bushaltestelle Lendplatz
-300 Meter zu den Supermärkten
-100 Meter zum Minigolf Platz
-100 Meter zum Friseur oder Kosmetik Studio
-200 Meter zur Shopping Meile
-1100 Meter zum Kongress Schladming
-50 Meter ins Zentrum
Eben alles was man so braucht. By the way: Das Auto kannst du in der Tiefgarage lassen. Servus im Gustav – 8 Appartements von Smart bis Sky – außerdem mit dabei: Private Sauna im Appartement, eigene Terrasse oder Balkon Top 8 hat keine Balkon, komplett ausgestattete Küchen mit allem PiPaPo, 1-2 Schlafzimmer und Bäder sowie eine Aussicht nach Westen auf die Hochwurzen und das eine oder andere Chi-Chi.
Habediehre Gustav!
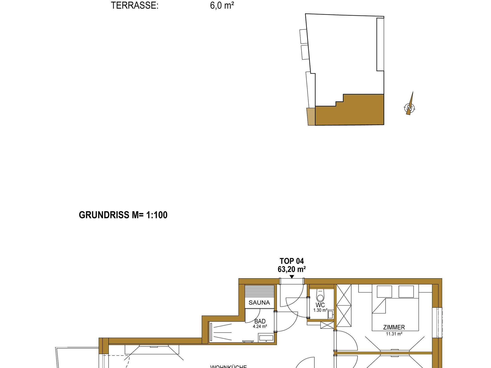
TOP 4 Gust for 6 – Smart
Für 4-6 Personen, 63,2 m² Wohnfläche, 1. OG
- 3-Raum Appartement mit Wohnküche
- 2 Schlafzimmer mit Doppelbett
- 1 Doppelschlafsofa im Wohnbereich
- 2 Bäder mit Regendusche und Waschtisch
- 1 separates WC
- Indoor Sauna
- 6 m² Balkon mit Balkonmöbel
Für 4-6 Personen, 63,2 m² Wohnfläche, 1. OG
- 3-Raum Appartement mit Wohnküche
- 2 Schlafzimmer mit Doppelbett
- 1 Doppelschlafsofa im Wohnbereich
- 2 Bäder mit Regendusche und Waschtisch
- 1 separates WC
- Indoor Sauna
- 6 m² Balkon mit Balkonmöbel
Vores gæsteanmeldelser Eksterne anmeldelser
Faciliteter
-
Børnefaciliteter
-
Familievenlig
-
-
Grundlæggende faciliteter
-
Størrelse63 m²
-
-
Indkvartering Faciliteter
-
Cykelvenlig
-
Elevator/elevator
-
Ikke-ryger hus
-
Internet i det offentlige område
-
Kreditkort
-
Sauna
-
Skirum
-
-
Mad faciliteter
-
Brødservice
-
-
Omgivende faciliteter
-
Cykelrum
-
Parkeringskælder
-
Parkeringsplads
-
-
Servicefaciliteter
-
Bad / WC
-
Balkon
-
Bruser
-
Brødservice
-
Dobbeltseng
-
Dyr på forespørgsel
-
Emhætte
-
Flere soveværelser
-
Husdyr tilladt eller efter anmodning
-
Højstol
-
Håndklæder
-
Hårtørrer
-
Ikke-rygere
-
Internet - WiFi
-
Kabel/Sat
-
Kaffemaskine
-
Kombineret stue/soveværelse
-
Komfur
-
Køleskab
-
Mulighed for fryser
-
Opvarmet
-
Opvaskemaskine
-
Ovn
-
Radio
-
Rindende vand
-
Sengetøj
-
Separat køkken
-
Siddegruppe
-
Sofa seng
-
Toaster
-
TV
-
Vandvarmer
-
WC-toilet
-
Miniferie
Der er begrænset mulighed for miniferie hele året, typisk uden for højsæsonen.
Priser og kalender
Kalender
Varighed
Personer
Pris
Periode
- Ankomst
- Afrejse
- Varighed
- 1 uge
Personer
Ingen personer er valgt
Bemærk
Ankomst er ikke valgt.
Der er ikke valgt personer.